| Číslo zakázky: | 25203 | ![]() Karta nemovitosti |
|---|---|---|
| Typ zakázky: | prodej |
Pokud sníte o místě, kde panuje klid, pohoda a harmonie, kde nemusíte nic rekonstruovat a chcete se jen nastěhovat, pak Vás určitě zaujme tato nabídka. Představujeme Vám na prodej rodinný dům o dispozici 5+kk s obytnou plochou cca 122,5 m2 na pozemku 1607 m2 v obci Hrobce, okr. Litoměřice s nádherným výhledem.
Dům je cihlový, zateplený a v roce 2014 zde proběhla kompletní rekonstrukce. Nové rozvody, střešní krytina je betonová, okna plastová, chytrá domácnost a příprava zabezpečovacího zařízení. V roce 2015 byla přistavena nová část domu ? dva pokoje a koupelna. Vytápění domu je plynovým kotlem, který byl nově vyměněný v roce 2023, vodovod a kanalizace je veřejná. Na dvorku je místo pro dvě parkovací stání.
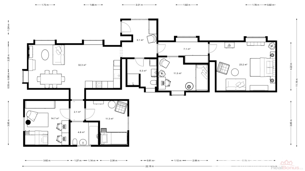
Dispozice domu je znázorněná v půdorysu a celý dům si můžete projít prohlídkou v matterportu.
Zahrada poskytuje dostatek soukromí a relax. V tomto roce byl vybudovaný bazén 5,25 x 3,2 x 1,50 , v roce 2024 byla postavena pergola, okap sveden do podzemní plastové nádrže ke sběru vody, natažena elektřina a voda, položena nová dlažba. Na pozemku se dále nachází dětské hřiště, zahradní posezení, dřevěný zahradní domek na nářadí a původní zrekonstruovaná budova cca 20 m2, kde najdete letní kuchyň a místnost-ložnice pro návštěvy.
V obci Hrobce se nachází školka, knihovna, dětské hřiště a Pohádková cesta, která je hned pod domem ( stezka vedoucí do Hrobců lemovaná postavami zvířat a naučnými kvízy ).
Po dohodě je možné nechat vybavení a můžete se stěhovat. Prohlídka domu je možná po předchozí domluvě a pro jakékoliv doplňující informace nás neváhejte kontaktovat a budeme se těšit na prohlídce.
| Cena: |
(za nemovitost) 9 990 000,- Kč
(bez DPH, včetně provize, včetně právního servisu, cena k jednání)
|
|---|
| Druh objektu | cihlová |
|---|---|
| Stav objektu | dobrý |
| Energetická třída | F - Velmi nehospodárná |
| Vybavení | terasa sklep |
| Umístění objektu | centrum |
| Telekomunikace | Internet |
| Topení | Lokální - tuhá paliva Ústřední - plynové |
| Voda | zdroj pro celý objekt |
| Odpad | Městská kanalizace |
| Počet míst k parkování | 2 |
| Zastavěná plocha | 144 m² |
| Plocha parcely | 1 607 m² |
| Ostatní | Bazén Parkoviště |
| Užitná plocha | 144 m² |
| Komunikace | asfaltová |
| Inženýrské sítě | Kanalizace |
| Charakter okolní zástavby | obytná |
| Poloha objektu | samostatný |




