| Číslo zakázky: | N/RSB/21370/25 |  Karta nemovitosti | 
|---|---|---|
| Typ zakázky: | prodej | 
Dovoluji si Vám nabídnout vyškovský skvost mezi nemovitostmi - Skřivánkovu vilu postavenou v letech 1903 ? 1904.  JUDr. Václav Skřivánek byl nejen starostou města Vyškova, ale také významným komunálním politikem. V 70. letech minulého století byla nemovitost adaptována na administrativní budovu a využívána OPBH. Poslední desetiletí nemovitost chátrá a je určena k rekonstrukci. Současný vlastník má zpracovánu kompletní studii vč. projektové dokumentace přestavby na bytový dům o 6 jednotkách. Již je získáno kladné stanovisko OÚPRu. 
Plocha pozemku: 602 m2, z toho zastavěná plocha 338 m2
Budoucí užitná plocha bytových jednotek: 378 m2
Počet parkovacích stání: 6x
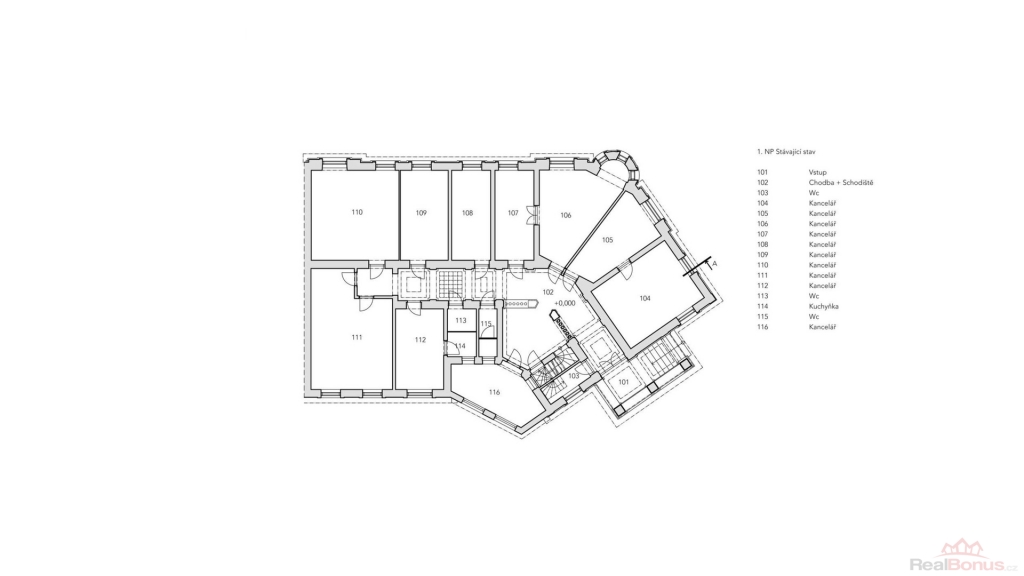
1.NP ? navrženy 3 bytové jednotky
- byt 1.01 ? 2+kk ? 64 m2
- byt 1.02 ? 3+kk ? 72 m2
- byt 1.03 ? 2+kk ? 53 m2
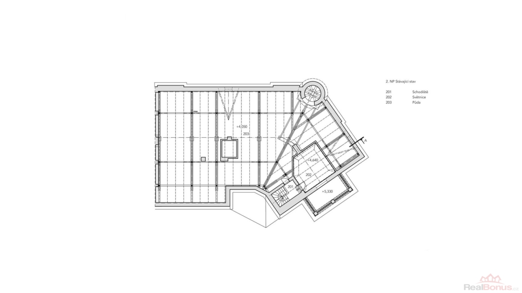
2.NP ? navrženy 3 bytové jednotky
- byt 2.01 ? 2+kk + balkon ? 75 m2 
- byt 2.02 ? 2+kk ? 65 m2
- byt 2.03 ? 1+kk ? 49 m2
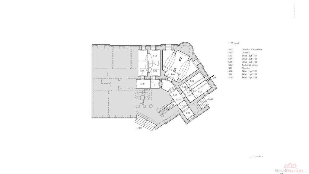
1. PP
- prostory pro technické zázemí objektu, bude zde umístěna technologie pro vytápění a ohřev
Záměrem je kompletní rekonstrukce při znovuobnově a zachování původních architektonických hodnost stavby a doplnění o nové prvky tak, aby bylo možné 121 let starý dům využívat v rámci nynějších standardů. 
Bližší informace k nemovitosti vč. projektové dokumentace rád sdělím osobně v naší realitní kanceláři.
| Cena: | (za nemovitost) 13 500 000,- Kč | 
|---|
| Počet podlaží objektu | 3 | 
|---|---|
| Druh objektu | cihlová | 
| Stav objektu | před rekonstrukcí | 
| Počet podlaží pod zemí | 1 | 
| Stáří objektu | 122 | 
| Rok kolaudace | 1 904 | 
| Počet míst k parkování | 6 | 
| Zastavěná plocha | 378 m² | 
| Plocha parcely | 602 m² | 
| Ostatní | Parkoviště | 
| Užitná plocha | 378 m² | 
| Poloha objektu | rohový | 
