Pronájem bytu 2+kk, 56 m2, DV, Český Krumlov, Vyšný, ul. Vyšenská

Pronájem bytu 2+kk, 56 m2, DV, Český Krumlov, Vyšný, ul. Vyšenská

1
234567891011121314151617181920212223242526

Nemovitost nabízí:

Jiří Kejšar
Jiří Kejšar
Mobil: 608 115 501
kejsar@dumrealit.cz

Kontaktovat makléře

Odeslat
Číslo zakázky: 653459  
Karta
nemovitosti
Typ zakázky: pronájem
Pronájem bytu 2+kk, 56 m2, DV, Český Krumlov, Vyšný, ul. Vyšenská

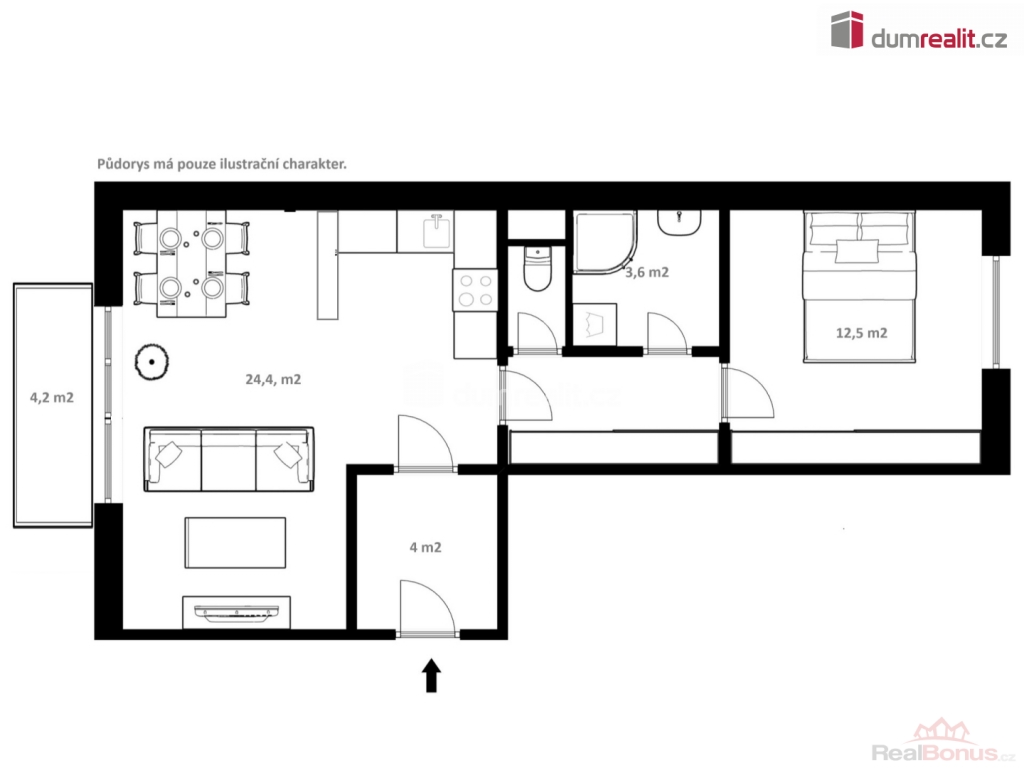
+popl. 2300, +elektřina. Kauce 30.000,-, odměna RK 18.000,-., Dumrealit.cz Vám zprostředkuje pronájem bytu 2+kk s balkonem, o 56 m, ve druhém patře patře třípatrového zděného domu bez výtahu, v klidné části Českého Krumlova, ul. Vyšenská, sídliště Vyšný.

Nadstandardní byt prošel v nedávné době kompletní revitalizací a nabízí se k pronájmu bez vybavení/nábytku. Sestává ze zádveří, obýváku o 24,4 m s moderní kuchyňskou linkou s dostatkem prostoru pro jídelní stůl a s přístupem na balkon o cca 4,2 m, úplně nové koupelny se sprchovým koutem, umyvadlem s místem pro pračku, chodby s vestavěnou skříní a ložnice o o cca 12,5 m.

Dům je průběžně udržovaný, klidný. Bezproblémové parkování na veřejném parkovišti před domem. Zastávka MHD 258 m od domu.

Měsíční nájem činní 15.700,- plus 2.300,- jako zálohová platba na vodu, TUV a topení, s termínem platby v měsíci předcházejícím, plus elektřina na samostatnou smlouvu nájemníka s dodavatelem (E.ON). Kauce 30.000,-, odměna RK za zprostředkování příležitosti uzavřít Smlouvu o nájmu 18.000,-. Byt je vhodný spíše pro menší počet osob 1-3. Volné po dohodě Ev. číslo: 652845. Energetický štítek: B (74 kWh/m2/rok).

Cena: (za měsíc)   15 700,- Kč
(+popl. 2300, +elektřina. Kauce 30.000,-, odměna RK 18.000,-.)

Informace o nemovitosti

Dispozice bytu2+kk
Číslo podlaží v domě3
Počet podlaží objektu4
Celková podlahová plocha56 m²
Druh objektucihlová
Stav objektuvelmi dobrý
Energetická třídaB - Velmi úsporná
Vlastnictvídružstevní
Vybaveníbalkon
VybavenoNezařízeno
Užitná plocha56 m²
B - Velmi úsporná

Energetická náročnost:


RealBonus.cz

Používáme cookies!

Tyto stránky používají a ukládají soubory cookies. Některé jsou nezbytné pro jejich správné fungování (tzv. technické cookies). Dále tyto stránky využívají marketingové a analytické cookies pro zkvalitnění našich služeb a přizpůsobení zobrazovaného obsahu. Pro jejich využití je nutný Váš souhlas. Více informací o cookies.