| Číslo zakázky: | 31982 | ![]() Karta nemovitosti |
|---|---|---|
| Typ zakázky: | prodej |
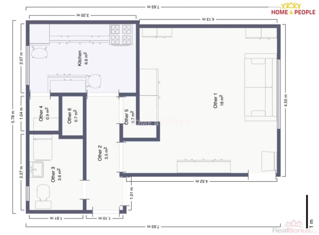
cena včetně provoze a právního servisu., Nabízíme k prodeji rodinný dům v klidné a žádané lokalitě Praha 4 Michle, v ulici Na Lánech. Dům stojí na pozemku o velikosti 478 m a nabízí dvě samostatné bytové jednotky, ideální jak pro vícegenerační bydlení, tak pro spojení bydlení s investicí.
Celková obytná plocha činí přibližně 80 m. Dům je napojen na kanalizaci a vytápění zajišťuje nový plynový kotel. Komín je nově vyvložkovaný a má platnou revizi. Střecha prošla rekonstrukcí přibližně před 15 lety, okna jsou původní dřevěná. Součástí domu je suchý sklep o velikosti 40 m, který nabízí dostatek úložného prostoru a je zde umístěn plynový kotel.
Vrchní bytová jednotka prošla kompletní rekonstrukcí před půl rokem nové rozvody, koupelna, kuchyně i podlahy. V rámci rekonstrukce byly v patře vybudovány kompletně nové sádrokartonové stropy i zdi a nové obložení schodů do patra. Instalovány byly také nové radiátory.
Spodní byt má rekonstruovanou koupelnu a nové podlahy v obývacím pokoji a chodbě (cca 3 roky zpět). Elektřina je v mědi.
Na pozemku i samotné stavbě je možné provést stavební úpravy a dům rozšířit o další bytovou jednotku a tři menší apartmány. Tato varianta nabízí zajímavý investiční potenciál možnost rozšíření obytné plochy a zvýšení výnosu z pronájmu.
Na zahradě se nachází vybetonovaný vestavěný gril, ideální pro letní posezení a odpočinek.
Michle je velmi oblíbená část Prahy díky výborné dopravní dostupnosti a kompletní občanské vybavenosti. Dům se nachází pouhých 5 minut chůze od luxusního centra Brumlovka, kde najdete restaurace, kavárny, obchody i sportovní zařízení. Autobusová zastávka je vzdálena přibližně 2 minuty chůze. V okolí jsou mateřské i základní školy, parky Jezerka a Tyršův vrch a množství zeleně pro volnočasové aktivity.
Tento dům představuje skvělou příležitost pro ty, kteří hledají klidné bydlení v Praze s možností dalšího rozšíření či investičního využití.
Pro více informací či sjednání prohlídky nás neváhejte kontaktovat. Ev. číslo: 31982. Energetický štítek: G
| Cena: |
(za nemovitost) 16 999 000,- Kč
(cena včetně provoze a právního servisu.)
|
|---|
| Počet podlaží objektu | 2 |
|---|---|
| Celková podlahová plocha | 80 m² |
| Druh objektu | smíšená |
| Stav objektu | velmi dobrý |
| Energetická třída | G - Mimořádně nehospodárná |
| Vlastní pozemek | 478 m² |
| Umístění objektu | centrum |
| Topení | Lokální - plynové |
| Zastavěná plocha | 80 m² |
| Užitná plocha | 80 m² |
| Poloha objektu | řadový |




