| Číslo zakázky: | 25-01-052 |  Karta nemovitosti | 
|---|---|---|
| Typ zakázky: | prodej | 
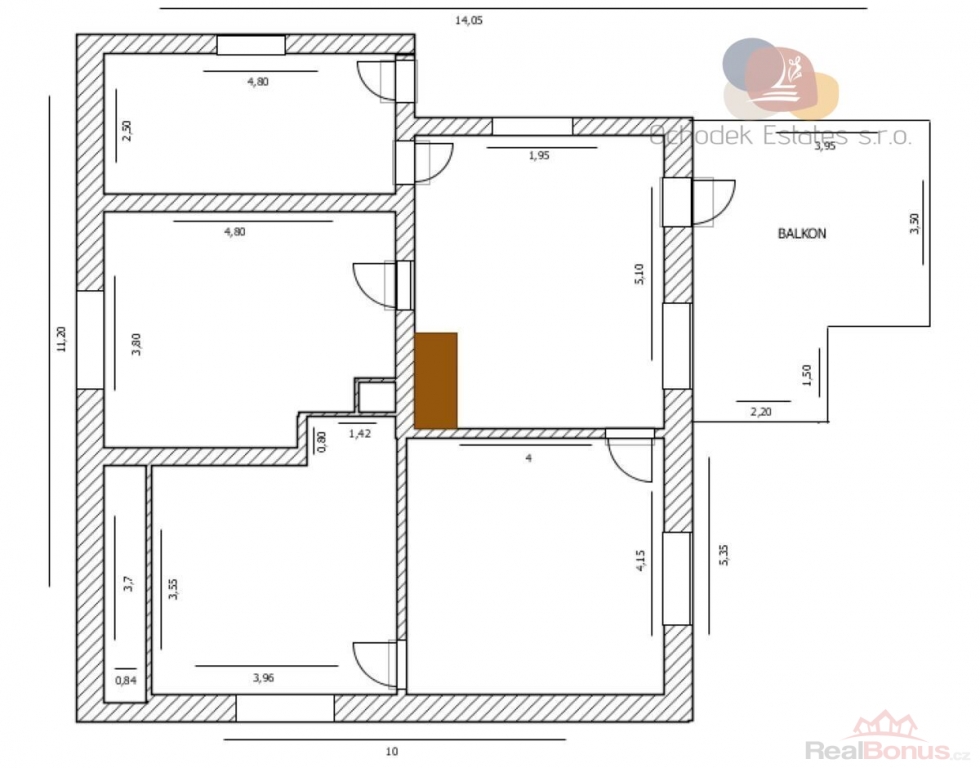
Pozemek 1936m2, dvě šopy, garáž, pergola, prostorné sklepy a hlavně velký dům dispozičně 6+1 (5+2). 
Prostě spousta místa na život, smích i občasné ticho!
Tento samostatně stojící dům z roku 1933 dostal do vínku pevné základy, pozdější přestavbou byl rozšířen a upraven na dvougenerační bydlení, aby postupně dál vzkvétal a dobře se v něm žilo.
Nyní je dům vyklizený, čistý a vymalovaný na bílo. Je připraven na dokončení rekonstrukce. A co už je hotové? Střecha a zateplení půdy 10cm minerální vatou je z roku 1997, následně přeložená novou krytinou 2007, vytápění zajišťuje ekologický automatický kotel na peletky (2018) s UPS na pět dní (2024), záložní elektrokotel (2024) na občasné přitápění nebo pro delší zimní dovolenou, bojler, koupelna a chodba už má nový rozvod elektřiny (2023), v koupelně jsou nové obklady a prostorný sprchový kout (2023), jsou instalovaná nová plastová okna s trojskly (2024). Vně domu je dřevěná pergola (2018) a nový vjezd s parkováním pro 2-3 auta (2023) s pojízdnou bránou (2024).
Co vás určitě zaujme je množství přírodního světla v pokojích díky velkým oknům, spousta úložných prostor i parkovacích míst a zahrada, která čeká na vaše nápady.
Dříve bylo město Karviná a blízké okolí vnímáno negativně, dnes je to město velkých proměn a nadějí. Těžba končí, rozvíjí se lázeňství, příroda se zpátky zelená. Přijeďte se přesvědčit osobně, ráda vás tu provedu!
Pozn.: energetická třída D. Uvedená kupní cena je VČETNĚ zprostředkovatelského poplatku
| Cena: | (za nemovitost) 4 500 000,- Kč | 
|---|
| Počet podlaží objektu | 2 | 
|---|---|
| Celková podlahová plocha | 210 m² | 
| Druh objektu | cihlová | 
| Stav objektu | velmi dobrý | 
| Energetická třída | D - Méně úsporná | 
| Počet podlaží pod zemí | 1 | 
| Vlastní pozemek | 1 936 m² | 
| Plocha balkonu | 16 m² | 
| Plocha sklepu | 36 m² | 
| Vybavení | balkon | 
| Umístění objektu | klidná část obce | 
| Rok rekonstrukce | 2 024 | 
| Stáří objektu | 1 933 | 
| Počet míst k parkování | 5 | 
| Zastavěná plocha | 132 m² | 
| Užitná plocha | 210 m² | 
| Poloha objektu | samostatný | 

