| Číslo zakázky: | N/RSBS/21362/25-1 | ![]() Karta nemovitosti |
|---|---|---|
| Typ zakázky: | prodej |
Potřebujete provozovnu pro rozšíření svého podnikání?
Potřebujete velký prostor k bydlení?
Potřebujete výrobní a skladovací prostory a chcete je mít blízko bydliště?
Máme pro Vás řešení ?tři v jednom?.
V klidné obci Cetkovice, přímo na náměstí exkluzivně nabízíme multifunkční objekt ke koupi. Je možné jej využít k bydlení, výrobě, službám, skladování i administrativní činnosti.
Hlavní ? částečně podsklepená ? stavba má tři podlaží včetně sklepa a obytného podkroví.
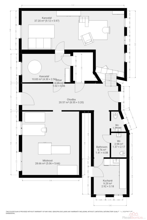
V prvním nadzemním podlaží byl dříve byt a nyní je prostor přebudovaný na exkluzivní kanceláře.
V chodbě Vás přivítá mramorová podlaha s vysokým leskem, ze které můžete směle vykročit do velkorysé kanceláře s okny na severovýchod a jihozápad, se stoly a knihovnou na míru.
Naproti přes chodbu je velká kancelář, kuchyňka s elektrickým průtokovým ohřívačem TUV a sociální zařízení oddělené podle pohlaví (zatím pouze dvě).
Kamenné schodiště Vás zavede do sklepa. Mramorové schodiště vede do podkroví.
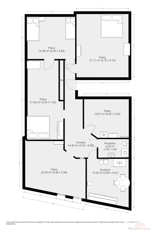
Podkroví dříve bylo využito jako kanceláře a dnes jako byt o dispozici 5+1 a výměře cca 140 m2. Ohřev teplé užitkové vody zajišťuje elektrický bojler. Každá místnost v podkroví má vlastní klimatizaci.
Celá budova je vytápěna novým kotlem na dřevo.
Objekt prošel kompletní rekonstrukcí s kolaudací v roce 1998.
Ve dvorní části jsou:
- otevřené, zastřešené přístřešky, nyní využité k uložení palivového dříví, a náhradních dílů pro dílnu.
- kotelna a sklady o celkové výměře cca 126 m2.
- dílna, ve které je nyní pneuservis pro dva vozy.
Celková výměra pozemku je cca 855 m2.
Zastavěná plocha bez přístřešků je cca 380 m2. Do dvorního traktu lze vjet osobním i nákladním automobilem (koloběžkou, motocyklem, bicyklem, ... jen s lodí by to bylo složité).
Nemovitost je napojena na veškeré inženýrské sítě. Plynovodní přípojka je v současnosti nevyužívána. Pro zprovoznění stačí osadit plynoměr. Orientační výměry jsou na přiložených půdorysech z roku 1995 na našich webových stránkách.
Průkaz PENB zatím nebyl vyhotoven, takže uvádíme en. třídu G.
Obec Cetkovice má zhruba 775 obyvatel, je vzdálena 13 km od Boskovic a leží v severní části Boskovické brázdy.
Pište, volejte nebo se stavte v kanceláři.
Rád Vás provedu Ing. Jan Hroch
Veškeré zveřejněné údaje obsažené v tomto inzerátu mají pouze informativní charakter a nejsou nabídkou ve smyslu § 1731 nebo § 1732 občanského zákoníku, ani se nejedná o veřejný příslib dle § 1733 občanského zákoníku. Prodávající si vyhrazují změnit podmínky prodeje.
| Cena: |
na vyžádání v RK (cena k jednání, bez poplatků, včetně provize, včetně právního servisu)
|
|---|
| Druh objektu | smíšená |
|---|---|
| Stav objektu | velmi dobrý |
| Energetická třída | G - Mimořádně nehospodárná |
| Rok rekonstrukce | 1 998 |
| Zastavěná plocha | 420 m² |
| Plocha parcely | 855 m² |
| Užitná plocha | 420 m² |
| Poloha objektu | rohový |




