| Číslo zakázky: | 1664 | ![]() Karta nemovitosti |
|---|---|---|
| Typ zakázky: | prodej |
Nabízíme k prodeji samostatně stojící rodinný dům v klidné obci Bítov, okres Nový Jičín.
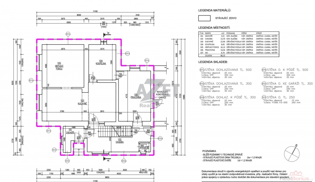
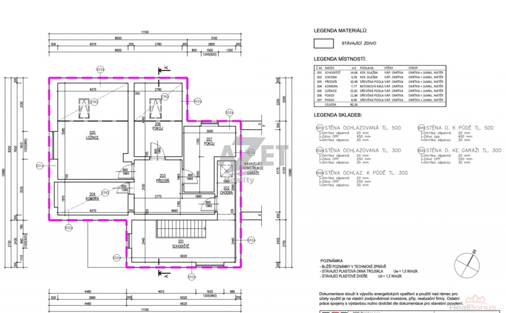
Dům je dvoupodlažní a podsklepený, celková podlahová plocha činí cca 200 m, zastavěná plocha 155 m a pozemek má výměru 666 m.
Nemovitost prošla kompletní rekonstrukcí v podobě nové plechové střešní krytiny SATJAM, plastových oken značky REHAU(trojsklo), elektrorozvody, omítky a podlahy. O vytápění domu a ohřev vody se stará automatický kotel na uhlí značky OPOP s akumulační nádrží.
V přízemí vás přivítá světlá kuchyně s jídelnou propojená s obývacím pokojem, moderní koupelna s vanou a sprchovým koutem, praktická technická místnost a kotelna s přímým vstupem do garáže.
Ve druhém nadzemním podlaží jsou tři neprůchozí pokoje a toaleta.
Dům nabízí útulné a klidné bydlení v malebné obci obklopené přírodou a je ideální volbou pro rodinu s dětmi, která hledá klidné bydlení s dobrou dostupností do okolních měst.
Pro více informací a případnou prohlídku kontaktujte makléře.
| Cena: | (za nemovitost) 7 500 000,- Kč |
|---|
| Číslo podlaží v domě | 1 |
|---|---|
| Počet podlaží objektu | 2 |
| Druh objektu | cihlová |
| Stav objektu | po rekonstrukci |
| Energetická třída | C - Úsporná |
| Počet podlaží pod zemí | 1 |
| Vlastní pozemek | 666 m² |
| Vybavení | sklep |
| Umístění objektu | okrajová zástavba |
| Ostatní rozvody | Satelit Kabelová televize Kabelové rozvody |
| Vybaveno | Možno zařídit |
| Topení | Ústřední - tuhá paliva |
| Elektřina | 230 V |
| Připojení na internet | Jiné |
| Zastavěná plocha | 155 m² |
| Plocha parcely | 666 m² |
| Plocha zahrady | 666 m² |
| Inženýrské sítě | Vodovod Kanalizace Elektřina |
| Druh stavby | rodinný dům, rekreační chalupa, rekreační pozemek |
| Poloha objektu | samostatný |




