| Číslo zakázky: | 00988 | ![]() Karta nemovitosti |
|---|---|---|
| Typ zakázky: | prodej |
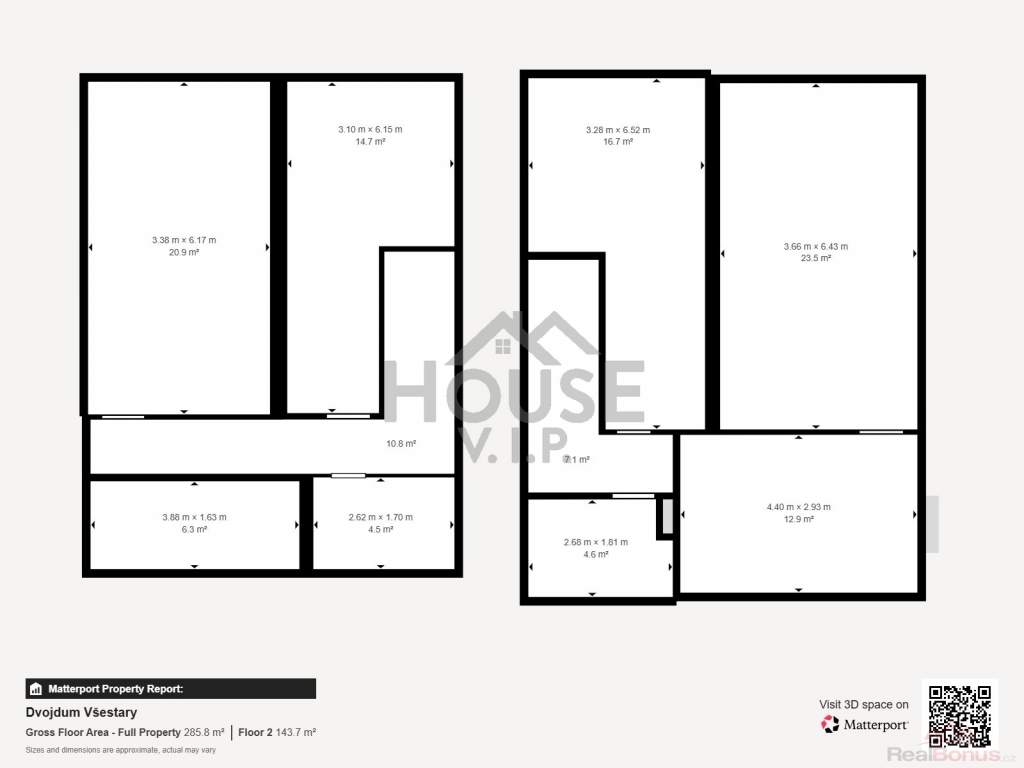
K prodeji nabízíme dvoupodlažní bytovou jednotku 3+kk s užitnou plochou 111 m2, která se nachází v novostavbě dvojdomu v centru obce Všestary u Říčan. Byt disponuje vlastní zahradou (cca 100 m2) s terasou, zahradním domkem a parkovacím stáním pro 2 vozy s přípravou pro rychlonabíjení elektromobilu.
Jednotka má samostatný vchod a je kolaudována ? připravena k okamžitému nastěhování.
Dispozice a vybavení:
- vzdušný obývací pokoj s kuchyňským koutem a vstupem na terasu.
- galerie v patře propojující obě podlaží.
- ložnice a multifunkční pokoj (pracovna/dětský pokoj).
- koupelna s moderní sanitou a walk-in sprchou.
- samostatné WC s bidetovou sprškou.
- technická místnost, vstupní hala s dřevěným schodištěm.
- zahrada s retenční nádrží.
Technologie a standard:
- energeticky úsporný dům ? PENB B.
- podlahové vytápění přes tepelné čerpadlo.
- trojskla, hliníková krytina střechy, keramické zdivo.
- příprava na fotovoltaiku, klimatizaci, možnost instalace krbové vložky.
- optický kabel a nadstandardní rozvody elektřiny a LAN.
Lokalita:
Byt se nachází v klidném prostředí v centru obce, s plnou občanskou vybaveností v pěší vzdálenosti. Vlakem jste v Praze během pár minut, cyklostezka vede přímo kolem domu.
? Na prodej je také sousední pravá bytová jednotka se stejnými parametry ? při koupi obou částí dvojdomu je možná dodatečná sleva.
| Cena: |
(za nemovitost) 10 700 000,- Kč
(včetně provize, včetně právního servisu)
|
|---|
| Dispozice bytu | 3+kk |
|---|---|
| Číslo podlaží v domě | 1 |
| Počet podlaží objektu | 2 |
| Celková podlahová plocha | 111 m² |
| Druh objektu | cihlová |
| Stav objektu | novostavba |
| Energetická třída | B - Velmi úsporná |
| Vlastnictví | osobní |
| Vybavení | zahrada |
| Rok kolaudace | 2 025 |
| Ostatní | Parkoviště |
| Užitná plocha | 111 m² |
| Plocha zahrady | 100 m² |




