
| Číslo zakázky: | 00150 | ![]() Karta nemovitosti |
|---|---|---|
| Typ zakázky: | prodej |
Zprostředkujeme Vám, ve výhradním zastoupení majitele, prodej novostavby rodinného domu se dvěma byty o velikosti 3+kk, terasou a společnou zahradou.
Dům je postavený v ulici Kapusty č.p. 886, v městské části Charvátská Nová Ves, v okresním městě Břeclav.
Celková plocha domu 234 m2 s bytnou plochou 214 m2. Kolaudace v 08/2021.
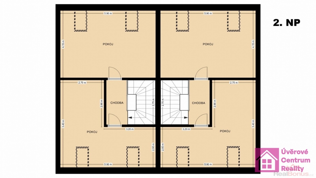
Dispozice domu:
1.nadzemní podlaží: předsíň, koupelna (sprchový kout), toaleta, pokoj s kuch. koutem, schodiště a terasa. (oba byty)
2.nadzemní podlaží: schodiště, chodba a dva pokoje (oba byty)
Půdorysy obou podlaží naleznete ve fotogalerii.
Pro lepší orientaci v domě doporučuje si projít 3D virtuální prohlídku včetně zahhrady.
Bytové jednotky jsou identické, jen zrcadlově otočené.
Každá bytová jednotka má samostatný vchod. Za společnou terasou se nacházejí dvě parkovací stání na vlastním pozemku. Celkem můžete zaparkovat 4 osobní automobily (dva před domem a dva za domem).
Aktuální měsíční náklady na provoz domu jsou ve výši 5.500 Kč (elektřina, voda a stočné).
Zaujala Vás tato nabídka? Máte zájem o prohlídku domu? Prosíme všechny vážné zájemce, aby nás pro rychlé vyřízení kontaktovali pomocí odpovědního formuláře u inzerátu.
Ihned k předání.
V případě více vážných zájemců bude nájemce vybrán na základě parametrů stanovených pronajímatelem.
| Cena: |
(za nemovitost) 13 475 000,- Kč
(včetně poplatků, včetně provize, včetně právního servisu)
|
|---|
| Počet podlaží objektu | 2 |
|---|---|
| Celková podlahová plocha | 234 m² |
| Druh objektu | cihlová |
| Stav objektu | novostavba |
| Energetická třída | B - Velmi úsporná |
| Plocha teras | 20 m² |
| Vybavení | terasa |
| Umístění objektu | centrum |
| Telekomunikace | Internet |
| Topení | Jiné |
| Doprava | vlak dálnice silnice MHD autobus |
| Voda | dálkový vodovod |
| Odpad | Městská kanalizace |
| Rok kolaudace | 2 021 |
| Počet míst k parkování | 2 |
| Celková plocha | 234 m² |
| Zastavěná plocha | 131 m² |
| Plocha parcely | 305 m² |
| Ostatní | Parkoviště |
| Užitná plocha | 214 m² |
| Komunikace | asfaltová |
| Inženýrské sítě | Vodovod Kanalizace |
| Charakter okolní zástavby | obytná |
| Poloha objektu | řadový |




