| Číslo zakázky: | 223806 |  Karta nemovitosti | 
|---|---|---|
| Typ zakázky: | prodej | 
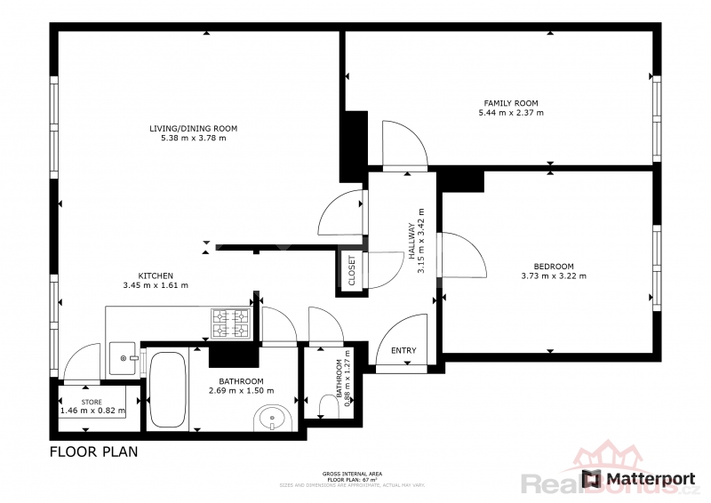
Rodinné bydlení  byt 3+1 Vladislav-Nízké náklady na bydlení, ihned k nastěhování.
Nabízíme k prodeji slunný a prostorný byt 3+1 v prvním patře čtyřbytového domu ve Vladislavy. Ideální rodinné bydlení v žádané lokalitě cca 5km od Třebíče. Byt je v osobním vlastnictví a je za  2 950 000Kč, k bytu je dvojgaráž 36m2 za 990 000Kč, a udržovaná zahrada o výměře 292m2 za 400 000Kč.
V bytě byly vyměněny okna za plastová a byla nainstalovaná nová kuchyňská linka s elektrickým sporákem.
Vytápění je řešeno kotlem na tuhá paliva, ohřev vody je zabezpečen bojlerem. K bytu jsou dva sklepy + prostorná kotelna , kde je umístěn bojler.
S financováním vám rádi pomůžeme
| Cena: | (za nemovitost)   2 950 000,- Kč (včetně provize a právních služeb) (cena je bez garáže a zahrady) | 
|---|
| Dispozice bytu | 3+1 | 
|---|---|
| Číslo podlaží v domě | 1 | 
| Počet podlaží objektu | 2 | 
| Celková podlahová plocha | 64 m² | 
| Druh objektu | cihlová | 
| Stav objektu | dobrý | 
| Energetická třída | G - Mimořádně nehospodárná | 
| Vlastnictví | osobní | 
| Počet podlaží pod zemí | 1 | 
| Vlastní pozemek | 90 m² | 
| Plocha sklepu | 20 m² | 
| Vybavení | sklep zahrada | 
| Vybaveno | Částečně zařízeno | 
| Popis vybavení | Nová kuchyňská linka, garáž vybavena starší kuch. linkou | 
| Topení | Lokální - plynové Ústřední - tuhá paliva | 
| Doprava | vlak silnice autobus | 
| Elektřina | 230 V | 
| Voda | dálkový vodovod | 
| Odpad | Městská kanalizace | 
| Plyn | Zaveden | 
| Občanská vybavenost | Zdravotnická zařízení | 
| Parkování | garáž | 
| Plocha parcely | 90 m² | 
| Užitná plocha | 64 m² | 
| Plocha zahrady | 292 m² | 
| Druh pozemku | zvláštní | 
| Druh zápisu v katastru | katastr nemovitostí | 
| Druh číslování parcely | Stavební parcela | 
| K dispozici od | 25.06.2024 | 

