| Číslo zakázky: | 653476 | ![]() Karta nemovitosti |
|---|---|---|
| Typ zakázky: | prodej |
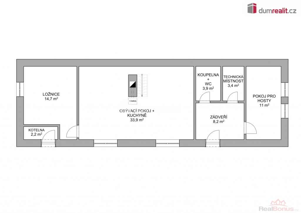
, Hledáte pohodlné bydlení v klidné lokalitě s výbornou dostupností do Prahy? Pak je tato nabídka určena právě Vám! Dovoluji si Vám představit rodinný dům s celkovou plochou 236 m, který se nachází v obci Činěves, okres Nymburk. Užitná plocha činí cca 100 m (s možností rozšíření). Dům je postaven ze smíšeného zdiva, částečně podsklepený a disponuje také částečně obytným podkrovím. Střecha je polovalbová, pokrytá pálenými střešními taškami. Vytápění je zajištěno zplynovacím kotlem Atmos nebo dálkově řízeným elektrickým kotlem PROTHERM, přičemž topným médiem jsou deskové radiátory. Jako sekundární zdroj tepla poslouží krbová kamna umístěná v obývacím pokoji. Dům je napojen na vodovodní řad; splaškové vody jsou svedeny do jímky, přičemž přípojka kanalizace je již připravena na hranici pozemku. Na pozemku se dále nachází pergola se zabudovaným grilem, dvě kůlny, přístřešek na dřevo a otevřená garáž. Okna jsou plastová. V ložnici a pokojích je plovoucí podlaha, ostatní prostory jsou pokryty dlažbou. Dům se prodává včetně zařízení a je připraven k užívání . Brána byla zakoupená a již čeká na výměnu novým majitelem. V obci Činěves najdete obchod s potravinami, zastávky veřejné dopravy, sběrné místo, knihovnu, mateřskou školu i vyhlášené řeznictví Czernin AGRO. Do okresního města Nymburk se dostanete za cca 15 minut jízdy autem, kde je k dispozici veškerá občanská vybavenost. Velkou výhodou je i blízkost Prahy do hlavního města se dostanete za 4045 minut jízdy, což činí tuto lokalitu ideální pro každodenní dojíždění. V rámci služeb Vám zajistíme kompletní právní servis i vyřízení financování. K NASTĚHOVÁNÍ IHNED! Ev. číslo: 652862. Energetický štítek: G
| Cena: | na vyžádání v RK |
|---|
| Počet podlaží objektu | 2 |
|---|---|
| Celková podlahová plocha | 100 m² |
| Druh objektu | cihlová |
| Stav objektu | dobrý |
| Energetická třída | G - Mimořádně nehospodárná |
| Vlastní pozemek | 617 m² |
| Zastavěná plocha | 171 m² |
| Užitná plocha | 100 m² |
| Poloha objektu | samostatný |




