| Číslo zakázky: | 19066 |  Karta nemovitosti | 
|---|---|---|
| Typ zakázky: | prodej | 
Exkluzivně nabízíme k prodeji dům se dvěma jednotkami 3+1 a 5+kk, s podlahovou plochou 220m2+10m2 balkon+51m2 garáže, zahrada 429m2, Říčany (okres Praha-východ). Velmi prostorný RD se dvěma samostatnými bytovými jednotkami 5+kk a 3+1 se nachází v atraktivní lokalitě v obci Říčany, jen 10 minut vozidlem od Prahy. K domu náleží pozemek o ploše 719m2 a nabízí i místo pro parkování vozidel na pozemku. Obě bytové jednotky mají samostatný vchod a proto může být tento RD ideálním dvougeneračním bydlením, nebo může sloužit částečně k podnikání, pronájmům i jako sídlo firmy.
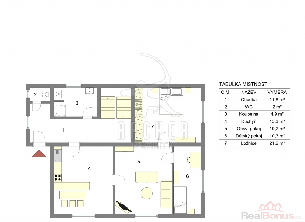
Dispozice jednotky 5+kk v 2.NP: Ze zádveří se vstupuje do menší haly, kde je vstup do koupelny s vanou a WC a odsud dále po schodech do 2.NP. Zde se nachází prostorný pokoj s vybaveným kuchyňským koutem a další 4 pokoje, z nichž jsou 3 neprůchozí a jeden průchozí sloužil jako druhá kuchyň. Tři z těchto pokojů jsou momentálně vyklizené a nepoužívané.
Dispozice jednotky 3+1 v 1.NP: Ze zádveří vstupujete do koupelny se sprchovým koutem, samostatného WC a součástí je i technický kout s plynovým kotlem i kotlem na tuhá paliva. Dále se dostáváme do vybavené kuchyně s jídelním stolem a dále do menšího obývacího pokoje. Odsud je vstup do dalších dvou neprůchozích pokojů, jeden dětský a jedna ložnice.
Obě jednotky mají vlastní vstup, ale jsou zároveň také propojeny vnitřním schodištěm. Dům je napojený na obecní vodu i kanalizaci, vytápěný je plynovým kotlem, další možností je kotel na tuhá paliva a nebo krbová kamna. Výhodou domu jsou dvě spojené garáže o celkové ploše 51m2 s další možností parkování vedle domu na svém pozemku. Pozemek kolem domu je rovinatý, se vzrostlými stromy, okrasně laděný. 
Říčany jsou prestižní město nedaleko Prahy, vyhledávané pro svou skvělou kvalitu života a bezpečné prostředí. Nabízejí kompletní občanskou vybavenost  školy, školky, sportoviště, obchody i zdravotnická zařízení. Výborná dopravní dostupnost (vlak jen 3 min chůze od domu, D1 asi 4km) umožňuje rychlé spojení s Prahou i okolím. Říčany jsou obklopené krásnou přírodou, parky a cyklostezkami, ideální pro aktivní životní styl. Díky své atmosféře a moderní infrastruktuře jsou Říčany ideálním místem pro bydlení i investici.
Tato nemovitost je skvělá volba pro vícegenerační bydlení, kombinaci bydlení s podnikáním nebo jako investiční příležitost. A to vše v žádané lokalitě nedaleko našeho hlavního města. Pro více informací a prohlídku nás neváhejte kontaktovat, rádi Vám též pomůžeme např. se získáním úvěru nebo s prodejem Vaší nemovitosti k zajištění financování tohoto domu. Třída G - Mimořádně nehospodárná  Energetický štítek budovy (PENB) nebyl dodán.
| Cena: | (za nemovitost)   18 000 000,- Kč (kanalizace: 1000, elektřina: 4000, voda: 2000, plyn: 4000) (+ provize RK) | 
|---|
| Počet podlaží objektu | 2 | 
|---|---|
| Celková podlahová plocha | 240 m² | 
| Druh objektu | cihlová | 
| Stav objektu | dobrý | 
| Energetická třída | G - Mimořádně nehospodárná | 
| Vlastní pozemek | 719 m² | 
| Plocha balkonu | 20 m² | 
| Vybavení | balkon | 
| Umístění objektu | centrum | 
| Topení | Lokální - plynové | 
| Odpad | Městská kanalizace | 
| Plyn | Zaveden | 
| Zastavěná plocha | 239 m² | 
| Užitná plocha | 220 m² | 
| Plocha zahrady | 429 m² | 
| Komunikace | asfaltová | 





