| Číslo zakázky: | 5706 | ![]() Karta nemovitosti |
|---|---|---|
| Typ zakázky: | prodej |
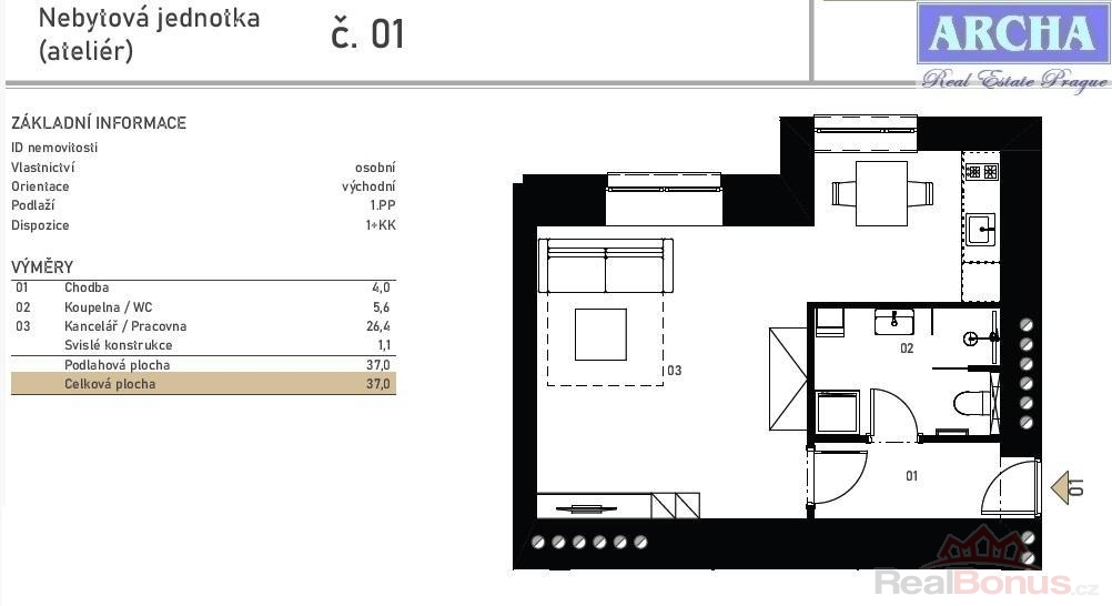
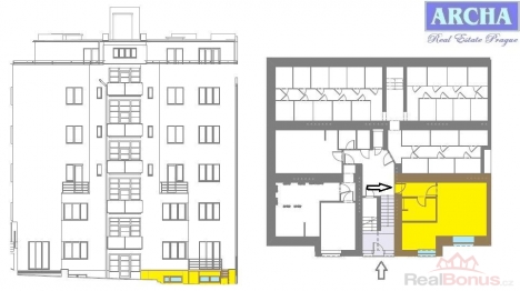
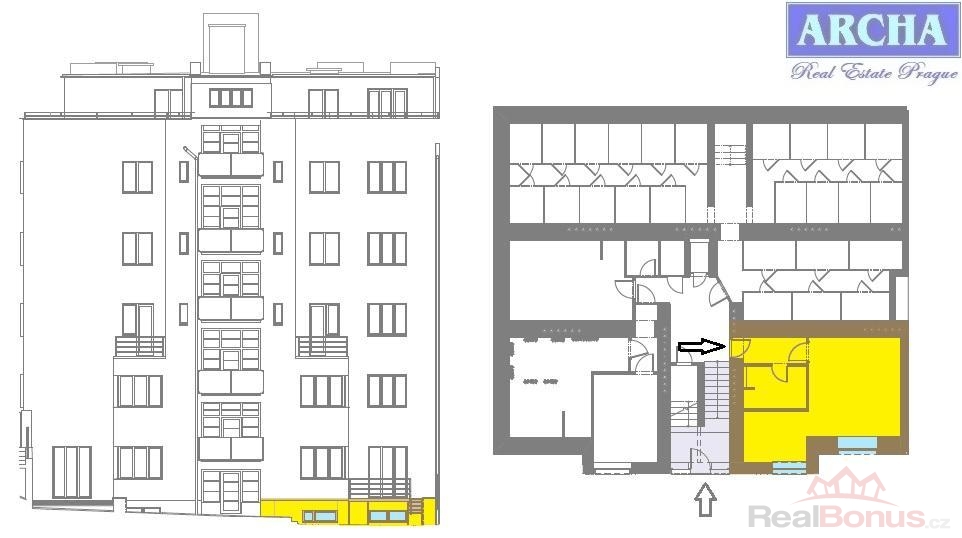
NABÍZÍME KE KOUPI nebytovou jednotka o dispozici 1+kk a celkové ploše 37 m2, která se nachází v přízemím podlaží šestipodlažního bytového domu na Břevnově.
Bytový dům se nachází těsně u ulice Belohorská, nedaleko od parku Královka, či sportovních areálů na Strahově.
Nebytová jednotka má dvoje okna a je směrována do vnitrobloku domu, do zahrady, zeleně.
Nebytová jednotka je vhodná jako advokátní, projektová či výuková kancelář, též jako zázemí firmy.
Vlastnictví: osobní
Dispozice: 1+kk
Celková plocha: 37 m2
Podlahová plocha: 37 m2
Podlaží: přízemí
K dispozici je ihned.
ARCHA realitní kancelář
PRAHA
Telefon: 737851059, 702072257, 608135458
Dat. schránka: vdc4dg
E-mail: archa-rk@seznam.cz
www.instagram.com/nemovitosti_archa
www.facebook.com/nemovitosti.archa
www.twitter.com/archa_life
www.archa-rk.cz
| Cena: | (za nemovitost) 5 026 000,- Kč |
|---|
| Číslo podlaží v domě | 1 |
|---|---|
| Počet podlaží objektu | 6 |
| Druh objektu | cihlová |
| Stav objektu | dobrý |
| Počet podlaží pod zemí | 1 |
| Umístění objektu | klidná část obce |
| Vybaveno | Částečně zařízeno |
| Topení | Lokální - elektrické |
| Účel budovy | Administrativní b. |
| Druh stavby | budova/y, hala/y |
| Poloha objektu | rohový |
| Druh prostor | Kanceláře |




