| Číslo zakázky: | R519522 |  Karta nemovitosti | 
|---|---|---|
| Typ zakázky: | pronájem | 
Pronájem 2kk 58m2 ve stylovém areálu Modřanský Cukrovar na Praze 4
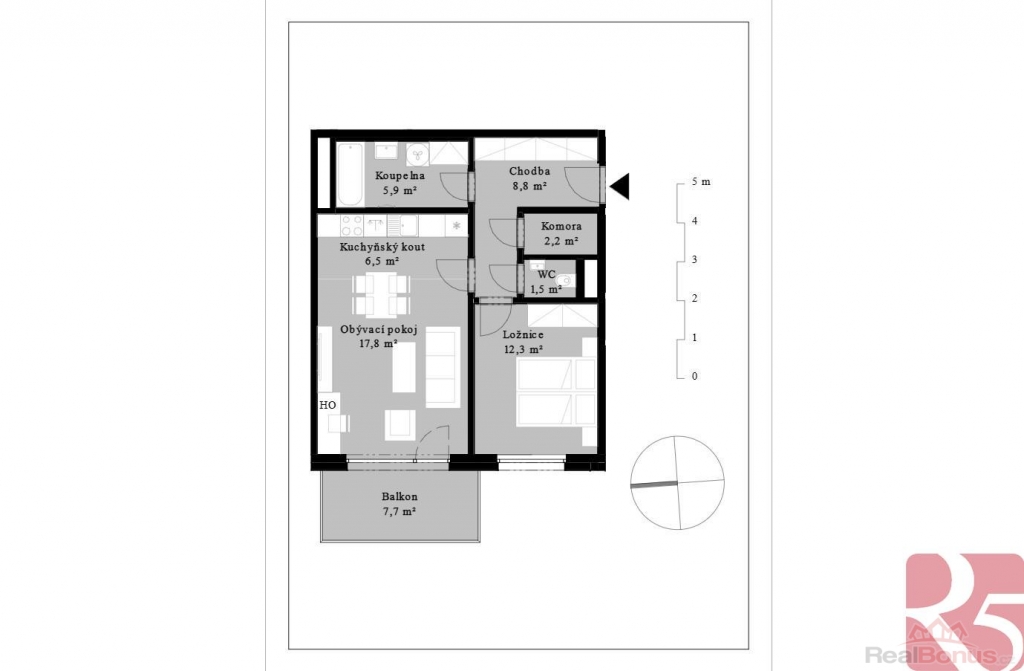
K pronájmu nový byt 2+kk o dispozici 58 m +7,7m2 lodžie + 3m2 sklep. 
Byt v novém moderním komplexu Modřanský Cukrovar.
V bytě kvalitní dřevěné podlahy, obývací pokoj s prostornou kuchyní, samostatná ložnice. Velká vstupní chodba s komorou, koupelnou s vanou a oddělenou toaletou.
Vybavení systémem smarthome, vzduchotechnikou i venkovními žaluziemi. Orientace na západ. 
Možnost užívání společné střešní terasy či relaxační zóny v přilehlých zahradách.
Dům postaven s důrazem na šetrné a efektivní využití technologií (fotovoltaika, fototermika, systém využití šedé vody) díky které byt vyniká nízkou energetickou náročností (B  velmi úsporná). 
Lokalita má vynikající dostupnost do centra: 5min tramvajová/autobusová zastávka (15min do centra), potraviny 150m, cyklostezka, školy, školky. Přímo v komplexu je také stanoviště Rekol a nabíječka pro elektromobily.
| Cena: | (za měsíc)   23 000,- Kč (+ zálohy na služby a energie 4000,-Kč + elektřina) | 
|---|
| Dispozice bytu | 2+kk | 
|---|---|
| Číslo podlaží v domě | 2 | 
| Počet podlaží objektu | 5 | 
| Celková podlahová plocha | 58 m² | 
| Druh objektu | cihlová | 
| Stav objektu | novostavba | 
| Energetická třída | B - Velmi úsporná | 
| Vlastnictví | osobní | 
| Druh bytu | v nájemním domě (činžovním) | 
| Počet podlaží pod zemí | 2 | 
| Vybavení | balkon výtah terasa sklep | 
| Umístění objektu | klidná část obce | 
| Vybaveno | Částečně zařízeno | 
| Topení | Ústřední - dálkové | 
| Elektřina | 230 V | 
| Užitná plocha | 58 m² | 
| Inženýrské sítě | Vodovod Kanalizace Elektřina | 
| Druh stavby | budova/y, hala/y | 
| Poloha objektu | samostatný | 





