| Číslo zakázky: | 81064 |  Karta nemovitosti | 
|---|---|---|
| Typ zakázky: | prodej | 
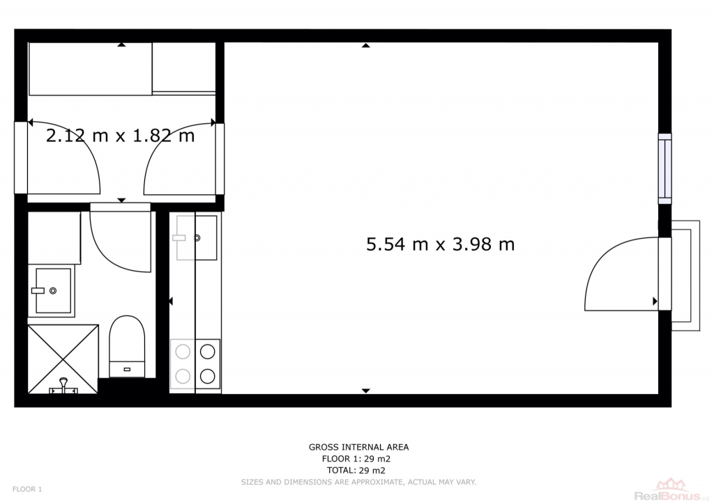
Exkluzivně nabízíme k prodeji velmi hezký, družstevní byt o dispozici 1+kk v žádané lokalitě Hostivic, ulice Školská. Byt o výměře 28,06 m2 se nachází v 2.NP bytového domu z roku 1995. Byt je tvořen prostornou předsíní s vchodem do hlavní obytné místnosti s francouzským oknem a kuchyní a také do koupelny s WC a sprchovým koutem. Kuchyňská linka je včetně sklokeramické desky, elektrické trouby a lednice, v předsíni je nová vestavná skříň. Byt je kompletně zařízený. Podlahové krytiny - předsíň a koupelna dlažba, v obytné místnosti plovoucí podlaha. Anuita je zcela splacena. Dům se nachází hned vedle parku, kde protéká Litovický potok, dále se zde nachází několik dětských hřišť a posezení v zeleni. Byt je v dochozí vzdálenosti do centra města, kde je veškerá občanská vybavenost - škola, školka, LIDL a další obchody. Výborná dopravní dostupnost autobusem na metro Zličín 10 minut, autobusová zastávka se nachází 5 minut chůze od domu. Pro další informace nebo prohlídku kontaktujte makléře.
| Cena: | (za nemovitost)   3 350 000,- Kč (včetně provize, cena k jednání) | 
|---|
| Dispozice bytu | 1+kk | 
|---|---|
| Číslo podlaží v domě | 2 | 
| Celková podlahová plocha | 28 m² | 
| Druh objektu | cihlová | 
| Stav objektu | velmi dobrý | 
| Energetická třída | C - Úsporná | 
| Vlastnictví | osobní | 
| Umístění objektu | centrum | 
| Telekomunikace | Internet | 
| Topení | Ústřední - plynové | 
| Doprava | dálnice silnice autobus | 
| Voda | dálkový vodovod | 
| Odpad | Městská kanalizace | 
| Užitná plocha | 28 m² | 
| Komunikace | dlážděná | 
| Inženýrské sítě | Vodovod Kanalizace | 
| Charakter okolní zástavby | obytná | 
| Poloha objektu | samostatný | 
| K dispozici od | 01.11.2025 | 





