| Číslo zakázky: | 01029 |  Karta nemovitosti | 
|---|---|---|
| Typ zakázky: | prodej | 
Reprezentativní sídlo vaší firmy v srdci Prahy 4.
Moderní kancelářská budova s charakterem, stylem a promyšleným zázemím, která splňuje nároky i těch nejnáročnějších firem. Kombinuje elegantní design s praktickým využitím každého metru a vytváří prostor, kde se dobře pracuje i reprezentuje.
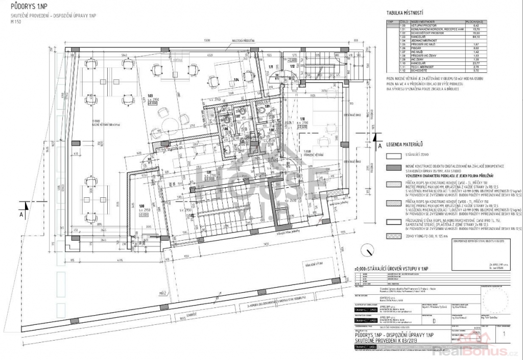
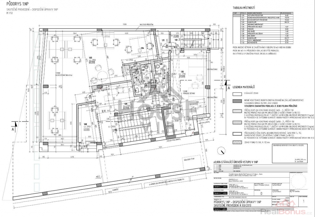
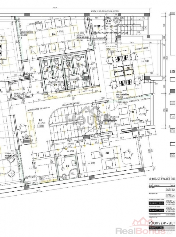
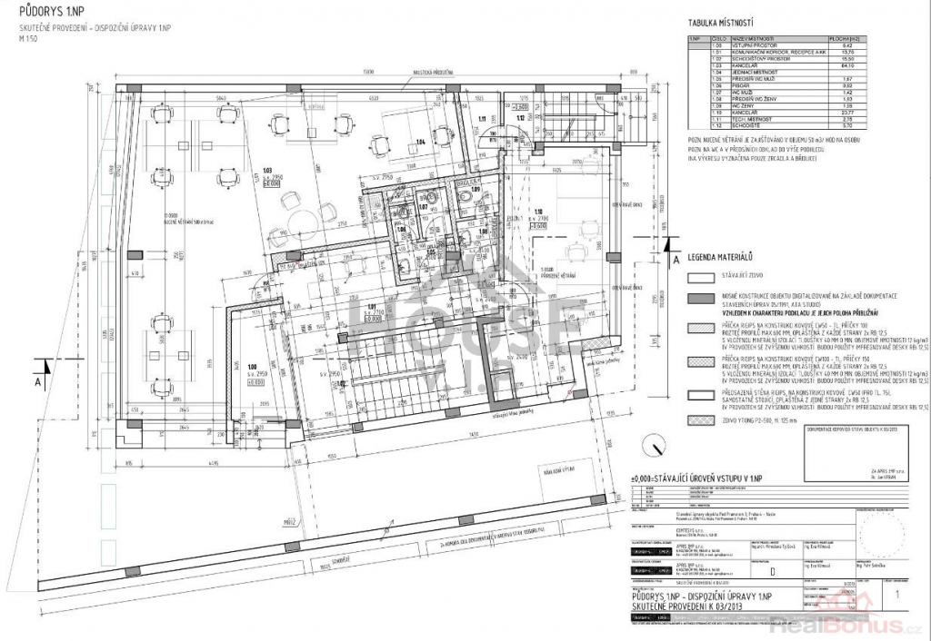
Třípodlažní objekt o celkové užitné ploše 616 m2 prošel v roce 2009 kompletní rekonstrukcí a dnes nabízí komfort, moderní technologie i dostatek denního světla. V budově se nachází 10 kanceláří s celkovou plochou 372 m2, které lze díky otevřenému uspořádání dále členit dle potřeb budoucího majitele. K dispozici je také 12 skladových a technických místností (131 m2), 8 toalet, 1 koupelna a komunikační prostory o rozloze 113 m2.
V přízemí se nachází elegantní recepce, v patře zasedací místnost a čajová kuchyňka, v suterénu pak jídelna a společenské zázemí pro zaměstnance. Interiéry jsou vybaveny zátěžovými koberci, celoskleněnými příčkami, klimatizací, žaluziemi a bezdotykovými bateriemi v sanitárních prostorech. Celý objekt doplňuje nová luxusní skleněná fasáda, která budově dodává reprezentativní vzhled a velkorysé množství světla.
Technicky je objekt plně zasíťován (PC rozvody), vytápění i ohřev vody zajišťuje centrální kotelna, samozřejmostí je bezpečnostní systém s možností napojení na PCO. K dispozici je 5 parkovacích stání na vlastním pozemku a 2 samostatné garáže, které poskytují pohodlí i bezpečné parkování.
Nemovitost se nachází v Praze 4 ? Nuslích, v ulici Pod Pramenem, v klidné části s vynikající dopravní dostupností a veškerou občanskou vybaveností. Na dosah je metro, MHD, magistrála i centrum města, což z ní činí ideální místo pro sídlo společnosti, firemní pobočku nebo investici do stabilní nemovitosti s výborným výnosem.
Budova je nabízena formou převodu 100 % akcií účelově založené akciové společnosti, která nevykonává žádnou jinou činnost.
Neváhejte mě kontaktovat a domluvte si osobní prohlídku. Budova na první pohled zaujme, ale teprve naživo oceníte, jak precizně je promyšlená do posledního detailu.
| Cena: | (za nemovitost)   59 990 000,- Kč (včetně provize, včetně právního servisu) | 
|---|
| Počet podlaží objektu | 2 | 
|---|---|
| Celková podlahová plocha | 616 m² | 
| Druh objektu | panelová | 
| Stav objektu | velmi dobrý | 
| Energetická třída | G - Mimořádně nehospodárná | 
| Počet podlaží pod zemí | 1 | 
| Umístění objektu | centrum | 
| Telekomunikace | Telefon Internet | 
| Topení | Ústřední - dálkové Jiné | 
| Doprava | silnice MHD | 
| Rok rekonstrukce | 2 009 | 
| Parkování | garáž | 
| Počet míst k parkování | 5 | 
| Celková plocha | 616 m² | 
| Zastavěná plocha | 240 m² | 
| Plocha parcely | 247 m² | 
| Ostatní | Garáž Parkoviště | 
| Užitná plocha | 616 m² | 
| Plocha kanceláří | 616 m² | 
| Komunikace | dlážděná | 
| Poloha objektu | řadový | 
| Druh prostor | Kanceláře | 

