| Číslo zakázky: | 650924 |  Karta nemovitosti | 
|---|---|---|
| Typ zakázky: | prodej | 
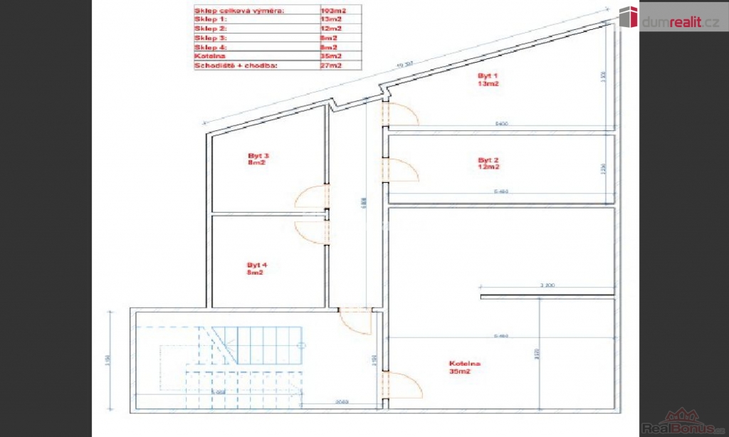
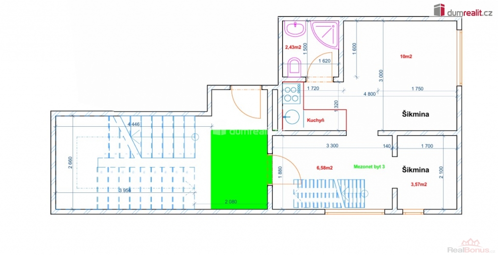
včetně právního servisu a odměny zprostředkovatele, Dumrealit.cz Vám zprostředkuje exkluzivně prodej zajímavého horského apartmánu (mezonetu) 1+1 o velikosti 33 m v obci Abertamy, okr. Karlovy Vary. Jedná se o byt ve 3. a 4.patře cihlového domu. Byt je zařízen vkusným nábytkem a vybavením. K bytu náleží prostorný zděný sklep o velikosti 8 m a jedno vyhrazené parkovací stání. Budova z třicátých let 20. století byla kompletně zrekonstruována v letech 2021 2022 a je zateplena a opatřena plastovými okny. V přízemí se nachází nebytové prostory v současné době půjčovna kol a prádelna. Pro obytnou část je samostatný vchod. Ve třech nadzemních podlaží se nachází celkem 5 jednotek a společná chodba se schodištěm. V domě je veřejný vodovod, kanalizace a každá jednotka má vlastní elektro rozvaděč s elektroměrem. Z apartmánu je vzhledem k jeho poloze krásný výhled zejména na vrchol Plešivec. Vzhledem k tomu, že před zadáním do inzerce nebyl předložen PENB, je tento byt v souladu s platným zákonem zařazen do energetické třídy G. Ev. číslo: 650310. Energetický štítek: G
| Cena: | (za nemovitost)   3 300 000,- Kč (včetně právního servisu a odměny zprostředkovatele) | 
|---|
| Dispozice bytu | 1+1 | 
|---|---|
| Číslo podlaží v domě | 4 | 
| Počet podlaží objektu | 5 | 
| Celková podlahová plocha | 33 m² | 
| Druh objektu | cihlová | 
| Stav objektu | po rekonstrukci | 
| Energetická třída | G - Mimořádně nehospodárná | 
| Vlastnictví | osobní | 
| Počet míst k parkování | 1 | 
| Užitná plocha | 33 m² | 





