| Číslo zakázky: | 229424 | ![]() Karta nemovitosti |
|---|---|---|
| Typ zakázky: | prodej |
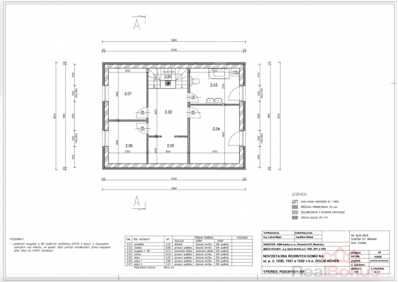
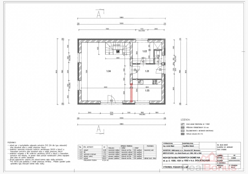
Nabízíme k prodeji moderní novostavbu rodinného domu s dispozicí 5+kk o celkové užitné ploše 140 m2, postavenou na pozemku o výměře 821 m2, v klidné části obce Dolní Roveň. Dům se nachází v nové rezidenční zástavbě tří domů a představuje ideální volbu pro rodinné bydlení s důrazem na prostor, světlo a možnost dotvořit si interiér dle vlastních představ.
Dům je navržen s ohledem na pohodlí a potřeby rodiny. V přízemí se nachází prostorný obývací pokoj s přípravou pro kuchyňskou linku a velkými francouzskými okny s přímým vstupem na zahradu, samostatné WC s umyvadlem, technická místnost s tepelným čerpadlem a sprchovým koutem. V horním patře jsou 3 prostorné pokoje, ideální pro dětský pokoj, ložnici a pracovnu, šatna s úložným prostorem a koupelna.
V celém domě je podlahové vytápění a možnost připojení krbových kamen, které Vám zajistí útulnou atmosféru a nízké náklady. Dům je téměř dokončen - čeká Vás výběr podlahových krytin, kuchyňské linky, interiérových dveří a zařizovacích předmětů do koupelen.
Možnost zajistit kompletní dokončení na klíč dle Vašeho výběru. Skvělá dopravní dostupnost pro školu, práci i volný čas(Pardubice - 15 min, Holice - 5 min, Chrudim - 20 min, Hradec Králové - 25 min, Praha Černý Most - 60 min
Dálnice D35 - 4 min). Financování Vám vyřídíme v rámci prodeje. Veškeré informace k nemovitosti Vám rádi sdělíme na prohlídce domu.
| Cena: | (za nemovitost) 7 250 000,- Kč |
|---|
| Druh objektu | cihlová |
|---|---|
| Stav objektu | novostavba |
| Energetická třída | G - Mimořádně nehospodárná |
| Vlastnictví | osobní |
| Vlastní pozemek | 821 m² |
| Vybavení | zahrada |
| Vybaveno | Nezařízeno |
| Topení | Ústřední - elektrické |
| Elektřina | 230 V |
| Voda | dálkový vodovod |
| Odpad | Městská kanalizace |
| Plyn | Není |
| Zastavěná plocha | 88 m² |
| Plocha parcely | 821 m² |
| Užitná plocha | 140 m² |
| Druh pozemku | pro bydlení |
| Poloha objektu | samostatný |
| K dispozici od | 31.03.2026 |




