| Číslo zakázky: | RM25003 | ![]() Karta nemovitosti |
|---|---|---|
| Typ zakázky: | prodej |
Hledáte dům, kde můžete pohodlně bydlet a zároveň mít prostor pro podnikání nebo nájemní bydlení, které vám pomůže s hypotékou?
Tento bývalý hostinec s ubytováním nabízí přesně to ? velkou užitnou plochu, flexibilní dispozici a územní plán, který umožňuje spojit rodinné bydlení, služby i pronájem pod jednou střechou.
Pro koho je dům ideální:
- pro ty, kteří chtějí větší rodinné bydlení s možností dvougeneračního uspořádání,
- pro zájemce o bydlení + podnikání (kanceláře, studio, služby, lehká řemesla, gastro),
- pro ty, kteří chtějí část domu pronajímat a z nájemného si výrazně snížit měsíční splátku hypotéky.
Hlavní přednosti:
- Užitná plocha cca 620 m2, pozemek 702 m2 ? dle územního plánu vhodné pro rodinný dům s 1?2 byty.
- Dva zrekonstruované byty v přízemí (2+kk + garsonka), každý se samostatným vstupem, nyní pronajaté ? možnost převzít nájemníky a mít ihned příjem.
- Dva velké sály po bývalé hospodě ? ideální pro budoucí obytné místnosti, ateliér, studio nebo gastro.
- 1. patro: větší byt + 4 samostatné pokoje + 2× WC, část aktuálně pronajata.
- Garáž, technické místnosti, plynový kotel, bojlery ? zázemí pro větší dům i provoz.
- Vydlážděný dvůr ? možnost parkování více aut, předzahrádky nebo venkovního posezení.
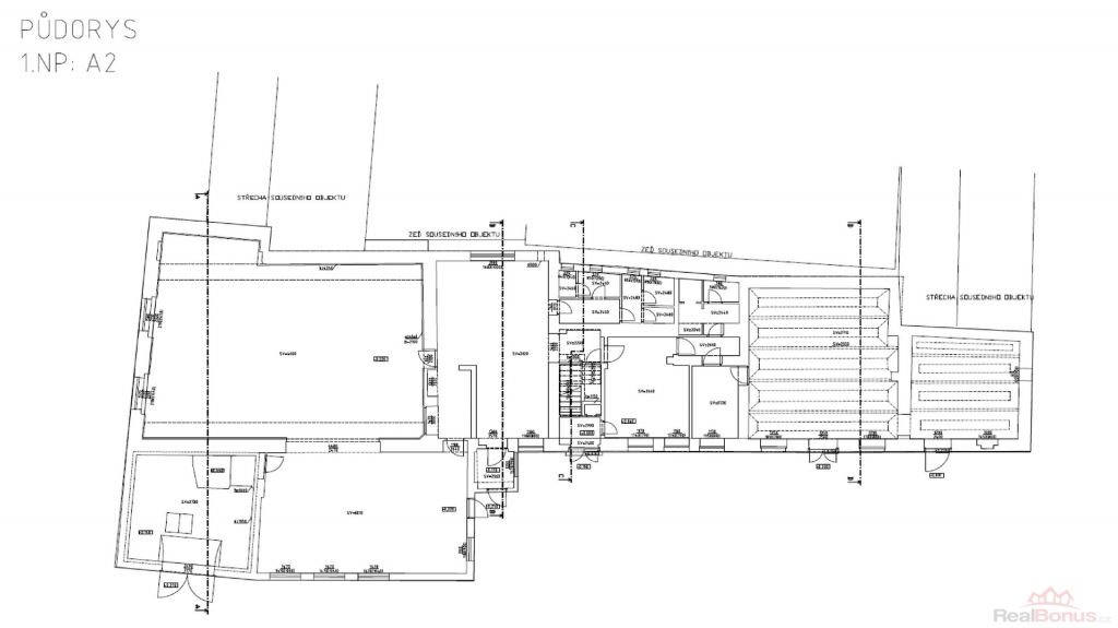
Dispozice přízemí:
- nově zrekonstruované jednotky 2+kk a garsonka
- velká místnost s kuchyňskou linkou a koupelnou
- dva víceúčelové sály po hospodě,
- garáž,
- technické zázemí
Dispozice 1. patro:
- byt (2 místnosti),
- 4 menší pokoje se samostatnými vstupy,
- 2× WC.
Exteriér:
- vydlážděný dvůr.
Jak můžete dům využít:
Bydlení + pronájem:
V přízemí můžete ponechat nájemní byty a sami bydlet v horním patře, nebo naopak. Nájemné vám může částečně nebo výrazně pokrýt splátku hypotéky.
Bydlení + podnikání:
Jeden či dva byty pro rodinu, zbylé prostory pro vaše podnikání.
Gastro + ubytování:
Menší restaurace / bistro v přízemí, v patře pokoje pro ubytování.
Možnost rozšíření a zvýšení komfortu i výnosu:
- Dům je vhodný k rekonstrukci s možností vybudovat plnohodnotné 2. nadzemní podlaží.
- Velké sály a garáž lze dispozičně upravit na další obytné místnosti či samostatné jednotky.
Jak by mohl dům vypadat po rekonstrukci se podívejte na našich vizualizacích.
Výsledkem může být dům například:
- se dvěma plnohodnotnými bytovými jednotkami,
- doplněný o ateliér nebo nebytový prostor pro podnikání,
- a větší počet samostatných pokojů vhodných k dlouhodobému pronájmu.
Takové řešení nabízí výrazný potenciál zvýšení příjmu z celé nemovitosti a může být atraktivní i pro rodinu, která chce část domu využívat pro sebe a ostatní jednotky pronajímat.
Mlékojedy ? klidné bydlení s dobrou dostupností
V obci samoobsluha, mateřská škola.
V Tišicích (cca 2 km) větší samoobsluha, autobus a vlak směr Praha / Mladá Boleslav / Liberec.
Nedaleko oblíbená pískovna Beach Park Mlékojedy.
Kompletní občanská vybavenost v blízkých Neratovicích, Mladé Boleslavi a Mělníku.
Nenechte si ujít tuto příležitost. Kontaktujte nás a domluvte si prohlídku.
| Cena: |
(za nemovitost) 7 900 000,- Kč
(Cena je uvedena včetně provize a právního servisu., včetně provize, včetně právního servisu)
|
|---|
| Počet podlaží objektu | 2 |
|---|---|
| Druh objektu | cihlová |
| Stav objektu | dobrý |
| Energetická třída | G - Mimořádně nehospodárná |
| Umístění objektu | centrum |
| Topení | Lokální - elektrické Ústřední - plynové |
| Doprava | silnice autobus |
| Voda | dálkový vodovod |
| Odpad | Městská kanalizace |
| Plyn | Zaveden |
| Zastavěná plocha | 620 m² |
| Plocha parcely | 702 m² |
| Užitná plocha | 620 m² |
| Komunikace | asfaltová |
| Inženýrské sítě | Vodovod Kanalizace Plyn |
| Charakter okolní zástavby | venkovská |
| Poloha objektu | samostatný |




