| Číslo zakázky: | 5713 | ![]() Karta nemovitosti  | 
			
|---|---|---|
| Typ zakázky: | prodej | 
Nabízíme ke koupi bytovou jednotku o dispozici 2+kk a celkové podlahové ploše 53.6 m2 se nachází v 2. podlaží šestipodlažního bytového domu na Břevnově. 
K jednotce náleží sklepní kóje o výměře 2.8 m2.
K dispozici sauna v domě, vybavené fitness, relaxační zahrada.
Vlastnictví:  osobní
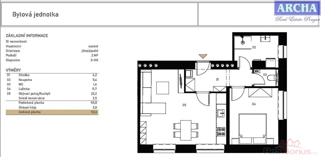
Dispozice:  2+kk
Celková plocha	53,6 m2
Podlahová plocha	50,8 m2
Podlaží:  2
Sklepní kóje:  2,8 m2
Plastová okna:  trojsklo
Samostatné měření vodoměrem, elektroměrem
Vchodové dveře bezpečnostní, hladké.
Podlaha - dřevěná třívrstvá lamelová
Ke koupi ihned.
Dům má 6 nadzemních podlaží a 1 podzemní. Nachází se v něm 25 bytových a 2 nebytové jednotky, které čekají na nové majitele. 
Byty jsou připravené v provedení fit-out, tedy po kompletní rekonstrukci včetně moderní koupelny. Stačí si jen vybrat kuchyňskou linku podle svého vkusu.
Ke všem bytům také náleží sklepní kóje. 
Okolí rezidence přímo vybízí k procházkám do přírody. 
Občas jsou ale dny, kdy každý ocení více soukromí. Pro takové chvíle je ideálním místem odpočinku nový vnitroblok s klidovou zónou a posezením. Společenská část s grilem zase láká k sousedským setkáním a pohodovým večerům na čerstvém vzduchu. 
Největším překvapením rezidence je privátní RELAXAČNÍ ZÓNA se SAUNOU a FITNESS, která je dostupná pouze pro obyvatele domu !
Provizi neplatíte.
ARCHA realitní kancelář
PRAHA
Telefon: 737851059, 702072257, 608135458
Dat. schránka: vdc4dg
E-mail: archa-rk@seznam.cz
www.instagram.com/nemovitosti_archa
www.facebook.com/nemovitosti.archa
www.twitter.com/archa_life
www.archa-rk.cz
| Cena: | (za nemovitost) 9 519 000,- Kč | 
|---|
| Dispozice bytu | 2+kk | 
|---|---|
| Číslo podlaží v domě | 1 | 
| Počet podlaží objektu | 6 | 
| Druh objektu | cihlová | 
| Stav objektu | dobrý | 
| Vlastnictví | osobní | 
| Druh bytu | v nájemním domě (činžovním) | 
| Počet podlaží pod zemí | 1 | 
| Vybavení | balkon sklep  | 
| Umístění objektu | klidná část obce | 
| Vybaveno | Částečně zařízeno | 
| Topení | Lokální - elektrické | 
| Elektřina | 230 V | 
| Plyn | Zaveden | 
| Připojení na internet | Jiné | 
| Inženýrské sítě | Vodovod Kanalizace Plyn Elektřina  | 
| Druh stavby | budova/y, hala/y | 
| Poloha objektu | rohový | 




