| Číslo zakázky: | XA-170B | ![]() Karta nemovitosti  | 
			
|---|---|---|
| Typ zakázky: | prodej | 
Dobrý den, vítám Vás na stránce s nabídkou bytu o dispozici 2+kk, který se nachází v 6.NP bytového domu v ulici Kunětická, na pardubickém sídlišti zvaném Cihelna. 
Tento byt by se dal také nazvat jako investiční nebo startovní bydlení pro mladý pár nebo naopak pro rozvedeného či singl žijícího uživatele. A nejen to, v bytě se dá bydlet i s dítětem do určitého věku.    
V minulosti proběhla rekonstrukce bytového jádra. Byt působí vzdušně a světle. Orientovaný je na západní světovou stranu. 
Aktuálně je obsazen nájemcem s nájemní smlouvou na dobu určitou, a to do 30.04.2026. Stávající nájemce by rád v nájmu pokračoval. Je nájemcem již více jak 4 roky. Byt je zajímavou investicí, protože byty v této lokalitě se velmi dobře pronajímají. 
Doplňující informace:
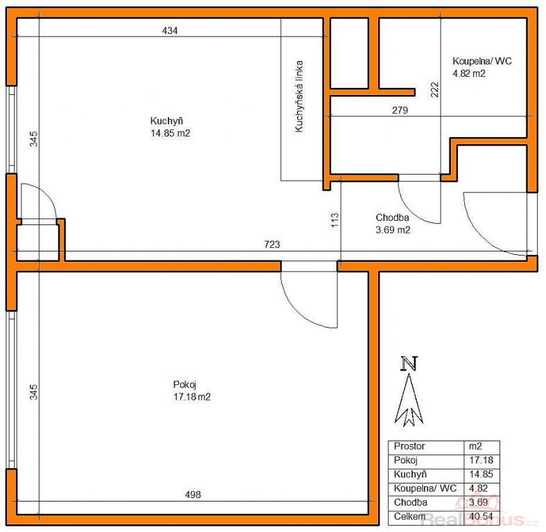
Plocha bytu: podle dokumentace 42,6 m2 včetně sklepní kóje o výměře 1,4 m2.
Umístění bytu: 6.NP bytového domu.
Lokalita: ulice Kunětická č.p.115, Pardubice.
Fond oprav: 1065 Kč měsíčně.
Průkaz energetické náročnosti budovy - C.
Pět důvodů proč uvažovat o koupi:
1. Investiční potenciál.
2. Oblíbená lokalita.
3. Technický stav bytu. 
4. Dostupnost služeb. 
5. Jeden z nejzajímavějších malých bytů v aktuální nabídce. 
Děkuji, Václav Růžička, realitní specialista.  
Prodávající si vyhrazuje právo na výběr kupujícího dle vlastní úvahy (způsob úhrady a výše kupní ceny, serióznost jednání apod.).
| Cena: | 
					(za nemovitost)   3 990 000,- Kč
 (cena včetně služeb RK, může být zvýšena vlivem vyššího počtu zájemců) 
				 | 
			
|---|
| Dispozice bytu | 2+kk | 
|---|---|
| Číslo podlaží v domě | 6 | 
| Druh objektu | panelová | 
| Stav objektu | dobrý | 
| Energetická třída | C - Úsporná | 
| Vlastnictví | osobní | 
| Druh bytu | v panelovém domě | 
| Počet podlaží pod zemí | 13 | 
| Vybavení | výtah sklep  | 
| Umístění objektu | klidná část obce | 
| Vybaveno | Částečně zařízeno | 
| Topení | Ústřední - dálkové | 
| Plyn | Zaveden | 
| Připojení na internet | Jiné | 
| Inženýrské sítě | Vodovod Kanalizace Plyn  | 
| Druh stavby | budova/y, hala/y | 
| Poloha objektu | samostatný | 




