| Číslo zakázky: | 3117 | ![]() Karta nemovitosti |
|---|---|---|
| Typ zakázky: | prodej |
Nabízíme k prodeji rozestavěný rodinný dům o dispozici 7+1 stojící v klidné okrajové části obce Němčičky, která je vzdálená 12 km od Znojma a 70 km od Brna.
Jedná se o zastřešenou hrubou stavbu, ze které po dokončení vznikne prostorný, nezávislý a energeticky úsporný dům, umístěný do hezké krajiny na konci obce v absolutním soukromí.
Jsou zde částečně hotové omítky, vnitřní betony, rozvody odpadů, rozpracovaná elektřina. V přízemí jsou plastová okna a vstupní dveře. Dům je kompletně podsklepený s plánovanou garáží.
V okolí domu je prostorná, kompletně srovnaná a částečně oplocená zahrada.
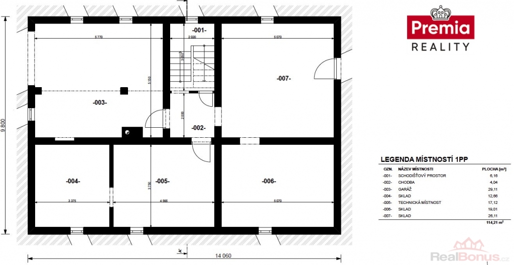
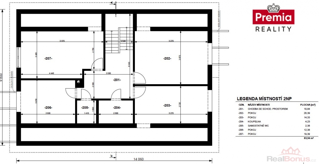
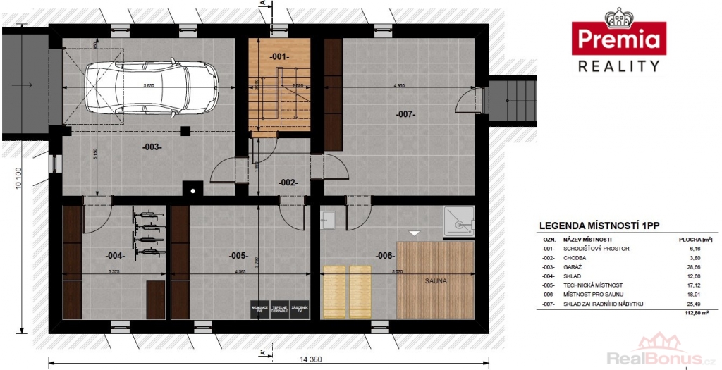
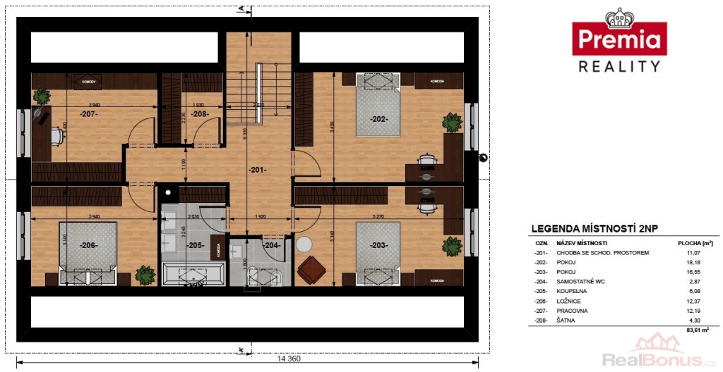
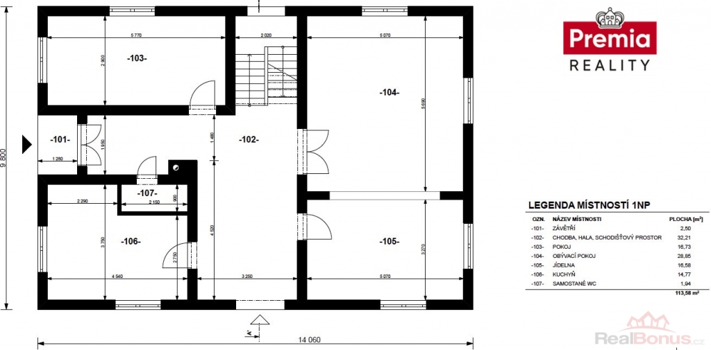
V současné době je ve zvýšeném přízemí vstupní chodba navazující na halu, ze které se vchází do tří pokojů, kuchyně a WC. V 1. patře (podkroví) jsou čtyři pokoje, koupelna a WC. Dle nové studie je dům dispozičně upraven - viz. foto plánovaných půdorysů.
Ve svahu vedle domu je také samostatný, např. vinný sklep.
Dům je napojen na elektřinu. Před domem je přípojka plynu. Voda je dovedena z vlastní studny. Odpad je plánován do jímky vedle domu nebo dle nové studie přes domovní čistírnu odpadních vod. V obci je plánovaná výstavba kanalizace.
V inzerátu je použité aktuální foto nemovitosti + vizualizace a půdorysy plánované realizace stavby.
Zaujala vás tato nabídka? Neváhejte mne kontaktovat pro více informací nebo se domluvíme na prohlídce této nemovitosti.
Průkaz energetické náročnosti: G* (nebyl vypracován).
| Cena: |
(za nemovitost) 2 590 000,- Kč
(+ provize RK)
|
|---|
| Počet podlaží objektu | 2 |
|---|---|
| Druh objektu | cihlová |
| Stav objektu | ve výstavbě (hrubá stavba) |
| Energetická třída | G - Mimořádně nehospodárná |
| Počet podlaží pod zemí | 1 |
| Plocha sklepu | 85 m² |
| Vybavení | sklep zahrada |
| Umístění objektu | centrum |
| Topení | Lokální - tuhá paliva |
| Doprava | silnice autobus |
| Parkování | garáž |
| Zastavěná plocha | 137 m² |
| Plocha parcely | 1 198 m² |
| Ostatní | Garáž |
| Užitná plocha | 311 m² |
| Plocha zahrady | 1 060 m² |
| Druh zápisu v katastru | katastr nemovitostí |
| Druh číslování parcely | Pozemková parcela |
| Poloha objektu | samostatný |




