| Číslo zakázky: | 88 | ![]() Karta nemovitosti |
|---|---|---|
| Typ zakázky: | prodej |
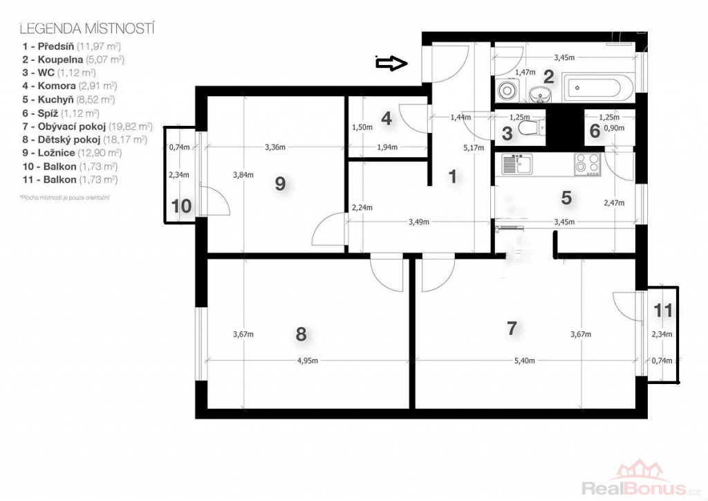
Nabízíme k prodeji byt o dispozici 3+1 / 2x balkon + 1x sklep + 1x koje v Jesenici u Prahy. Bytový dům je situován v klidné zástavbě rodinných domů s vlastnictvím pozemků kolem domu včetně komunikace a hřiště. Velkou výhodou je zajištěné parkování u domu a menší počet sousedních jednotek.
Byt se nachází ve 2. NP ze 3 zděného nízkopodlažního domu a je v udržovaném stavu se skvělou vnitřní dispozicí. Vstupní chodba propojuje všechny samostatné pokoje, koupelnu s oknem, WC a komoru. Okna jsou směrována na JZ a SV. K bytu náleží také 2 balkony a 2 sklepy /zděný 6 m2 a plaňkový 2,5 m2/.
Dům má vlastní plynovou kotelnu,
Občanská vybavenost v Jesenici nabízí vše, co může moderní rodina potřebovat: školky, základní školy, poštu, lékařskou péči, obchody, restaurace, MHD a širokou nabídku sportovních a relaxačních zařízení.
Jesenice u Prahy je vyhledávanou lokalitou díky své dostupnosti do centra hlavního města.
Přijďte se podívat na svůj budoucí domov!
| Cena: | (za nemovitost) 7 700 000,- Kč |
|---|
| Dispozice bytu | 3+1 |
|---|---|
| Číslo podlaží v domě | 2 |
| Počet podlaží objektu | 3 |
| Druh objektu | cihlová |
| Stav objektu | dobrý |
| Energetická třída | G - Mimořádně nehospodárná |
| Vlastnictví | osobní |
| Druh bytu | v nájemním domě (činžovním) |
| Umístění objektu | klidná část obce |
| Vybaveno | Částečně zařízeno |
| Topení | Ústřední - plynové |
| Druh stavby | budova/y, hala/y |
| Poloha objektu | řadový |




