| Číslo zakázky: | 52989 | ![]() Karta nemovitosti  | 
			
|---|---|---|
| Typ zakázky: | prodej | 
Prodej cihlového družstevního bytu o velikosti 1+kk v Brně - Slatině na ulici Blažovická. 
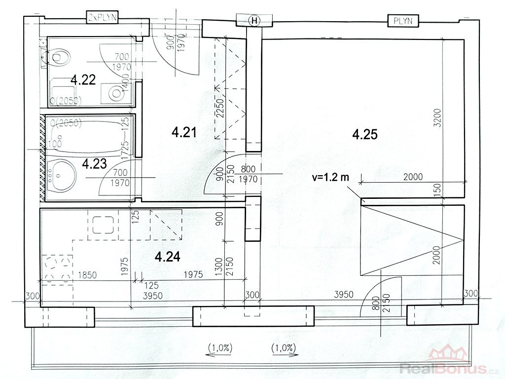
Byt je z roku 2008, nachází ve 3. patře (poslední patro, bez výtahu) o celkové výměře 52,2 m2, podlahová plocha 40,7 m2.
Dispozice: předsíň 6,4 m2, koupelna 3 m2, WC 2,3 m2, obývací pokoj s kuchyňským koutem 28,9 m2, terasa s markýzou 6,3 m2, komora na patře (sklep) 5,3 m2. 
Vybavení: bezpečnostní vchodové dveře, plastová okna s bambusovými žaluziemi, vytápění ? vlastní plynový kotel a bojler na ohřev teplé vody, v celém bytě plovoucí podlaha, pouze v koupelně a na WC dlažba, osvětlení.
Kuchyně ? kuch.linka, digestoř, elektrický sporák i trouba, lednice s mrazákem, stůl, 2x židle,
obývací pokoj ? poličky, rozkládací sedačka, komoda, příčka oddělující spací kout,
předsíň ? bezpečnostní dveře, trojdílná šatní skříň, úložný prostor nad skříní, botník, 
koupelna ? umyvadlo, vana, skříňka, zrcadlo, otopný žebřík,
WC ? plynový kotel BAXI, bojler na ohřev vody, pračka, poličky,
komora (sklep) ? regály na míru.
Veškeré vybavení je součástí kupní ceny. 
V domě společná kočárkárna a TV anténa.
Bezplatný převod bytu do osobního vlastnictví je možný v roce 2028. 
Měsíční poplatky družstvu 1.098,-Kč (z toho fond oprav 322,-Kč) + záloha na elektřinu 800,-Kč, plyn 1.000,-Kč, internet Vodafone 600,-Kč. Celkové měsíční náklady jsou velmi nízké 3.500,-Kč.
Byt je velice dobře situovaný: výborná dostupnost CT parku, letiště, dálnice D1, 13 min trolejbusem na hlavní nádraží v Brně.
Ideální nejen k bydlení, ale i na investici (v současné době je byt pronajatý za částku 14.000,-Kč/měsíc + energie a služby).
| Cena: | (za nemovitost) 5 900 000,- Kč | 
|---|
| Dispozice bytu | 1+kk | 
|---|---|
| Číslo podlaží v domě | 4 | 
| Počet podlaží objektu | 4 | 
| Celková podlahová plocha | 52 m² | 
| Druh objektu | cihlová | 
| Stav objektu | velmi dobrý | 
| Energetická třída | C - Úsporná | 
| Vlastnictví | osobní | 
| Plocha teras | 6 m² | 
| Plocha sklepu | 5 m² | 
| Vybavení | terasa sklep  | 
| Celková plocha | 52 m² | 
| Užitná plocha | 41 m² | 




