| Číslo zakázky: | 231988 | ![]() Karta nemovitosti |
|---|---|---|
| Typ zakázky: | prodej |
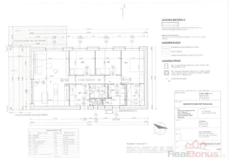
Ve výhradním zastoupení nabízíme stavební pozemek o výměře 982 m2 v klidné obci Velké Poříčí asi 6 km od Náchoda. Jde o rovinatý, slunný pozemek s přímým přístupem z obecní komunikace. Na pozemku jsou veškeré inženýrské sítě (plyn, elektřina, kanalizace). Dále je na pozemku také garáž a chata, kterou lze využít, nebo zbourat. K dispozici je zpracovaný návrh bungalovu o dispozici 4+kk s výměrou 119 m2. Možnost okamžité výstavby. Velmi dobrá občanská vybavenost - škola, školka, obchod, restaurace, vlakové i autobusové spojení. Doporučujeme prohlídku.
| Cena: |
(za nemovitost) 2 450 000,- Kč
(včetně provize a právních služeb)
|
|---|
| Energetická třída | G - Mimořádně nehospodárná |
|---|---|
| Vlastnictví | osobní |
| Vlastní pozemek | 982 m² |
| Plocha parcely | 982 m² |
| Druh pozemku | pro bydlení |
| Druh zápisu v katastru | katastr nemovitostí |
| Druh číslování parcely | Pozemková parcela |
| K dispozici od | 03.11.2025 |




