| Číslo zakázky: | 27164 | ![]() Karta nemovitosti |
|---|---|---|
| Typ zakázky: | prodej |
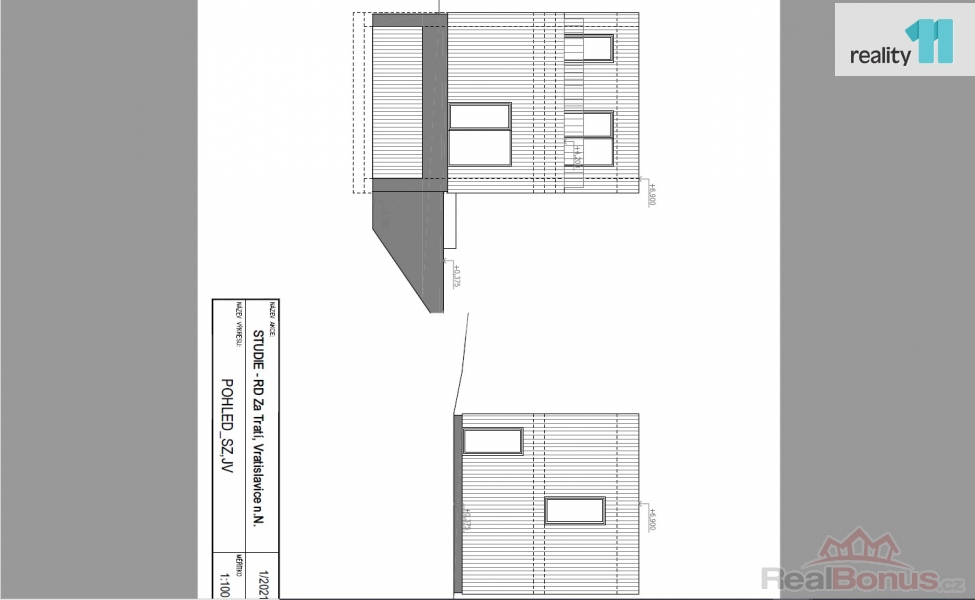
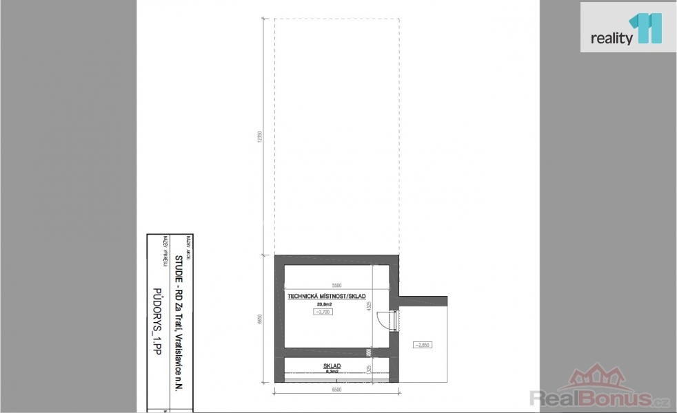
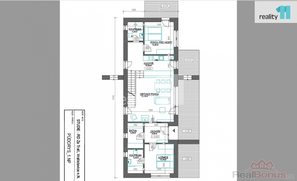
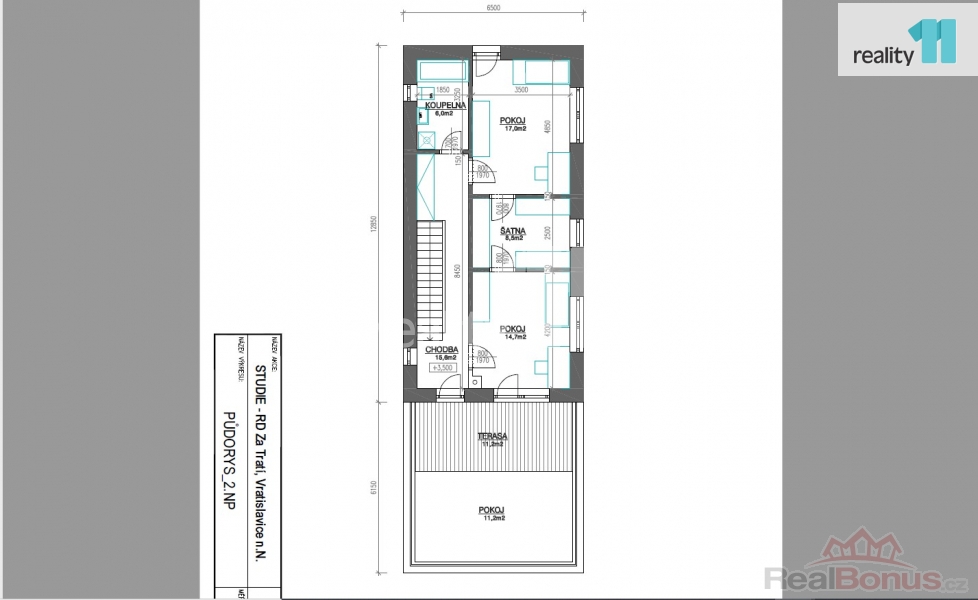
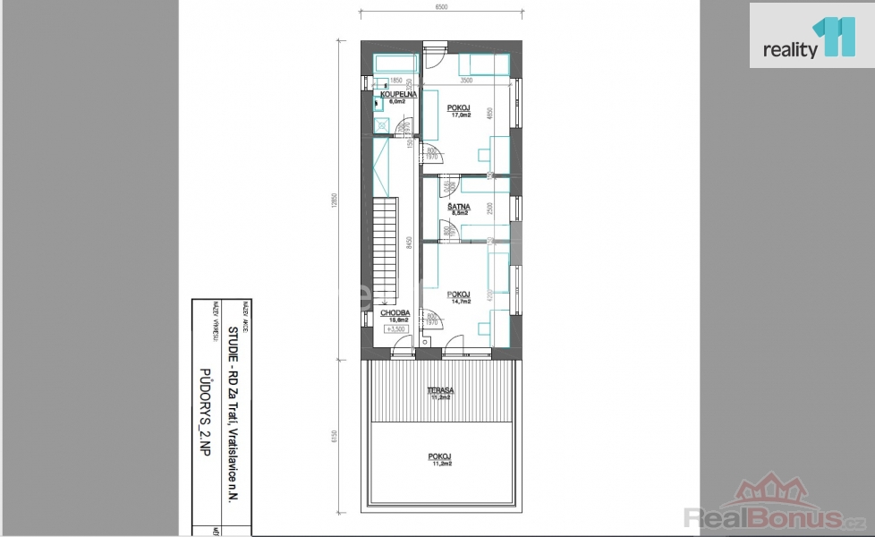
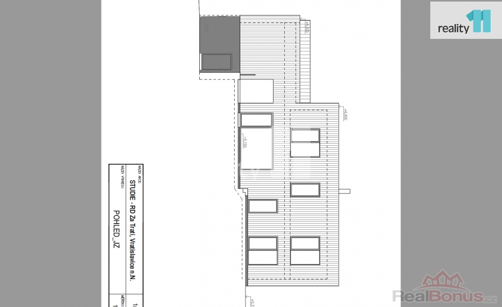
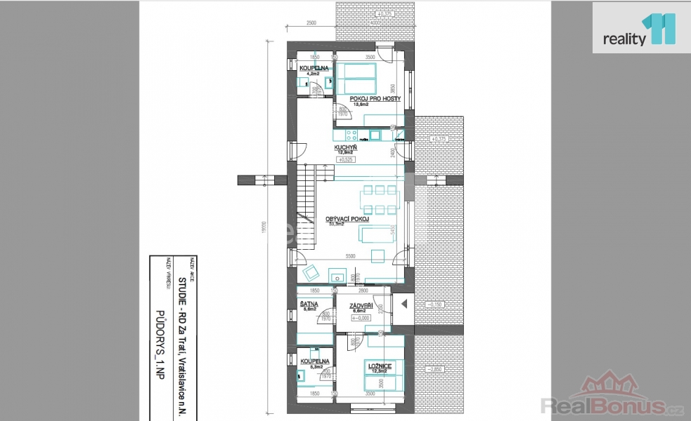
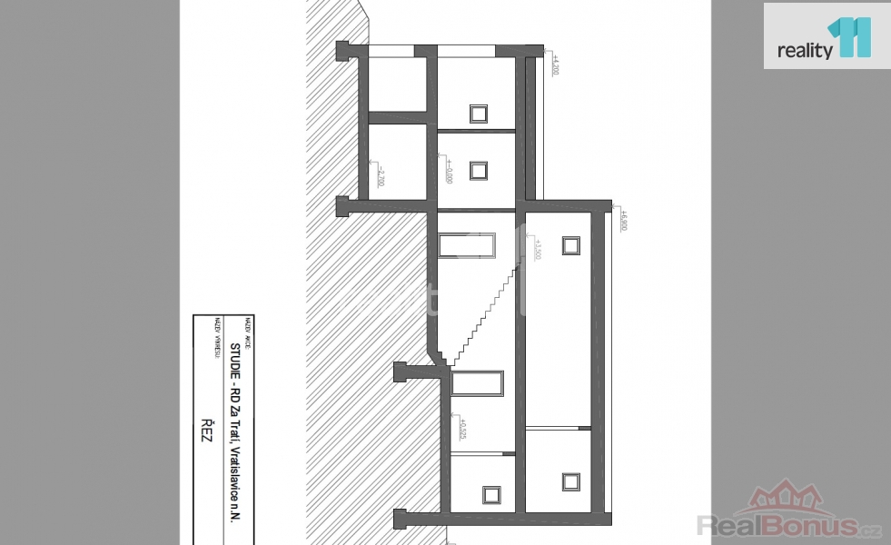
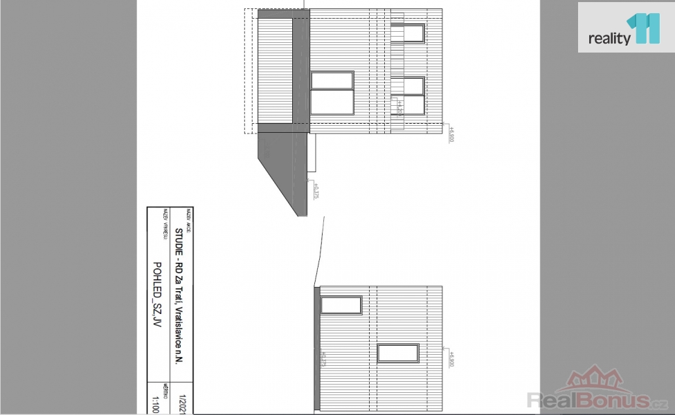
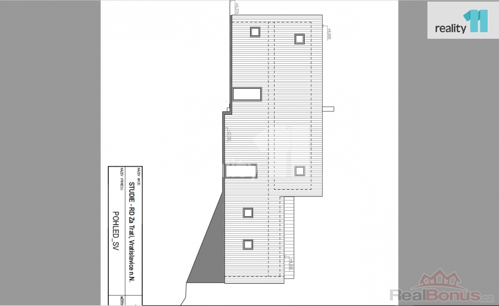
Včetně právního servisu., Prodej stavebního pozemku BO - bydlení všeobecné o velikosti 1200 m pro stavbu rodinného domu se zastavitelnou plochou 10% dle ÚP. Pozemek v obci Liberec, katastrální území Vratislavice nad Nisou, ul. Za Tratí je svažitý se zarovnáním do 5 rovných teras s krásným výhledem na západní stranu do údolí a v letním období celodenně prosluněným. Místem vás pozemek nadchne maximálním soukromím bez rušivých elementů sousedů. Budoucí vlastníci se mohou těšit na soukromí a unikátní umístění pozemku.
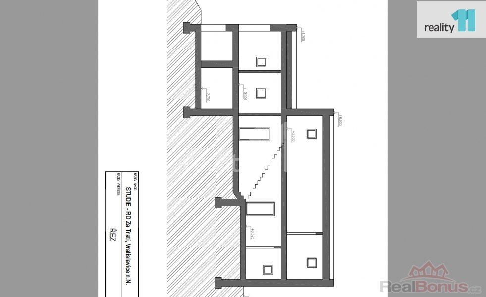
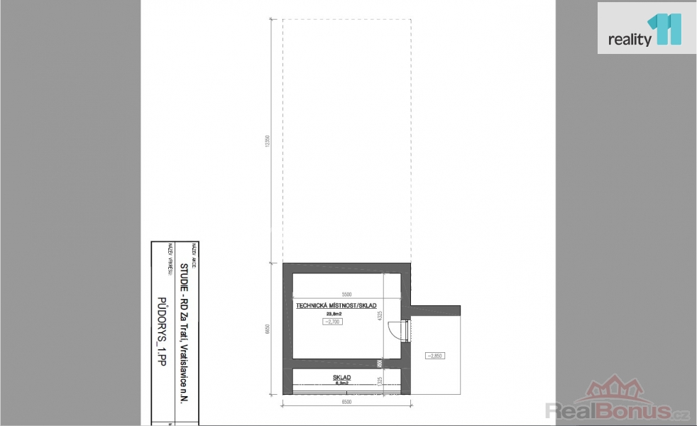
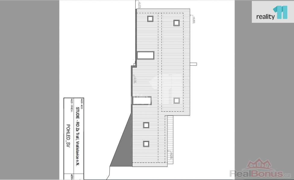
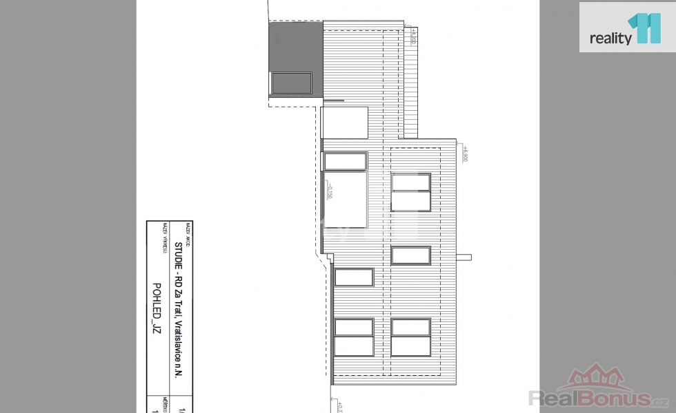
Na pozemku vlastní studna se skružemi - není projektována a není rozbor, elektřina, voda z řadu a plyn na hranici pozemku, kanalizace v ulici není, odpady řešit formou ČOV, jímka. Přístup k pozemku po obecní asfaltové komunikaci. Připravena studie pro stavbu moderního terasového rodinného domu na pilotech s parkováním pro 2 vozy. Zájemce si však může připravit svou vizi nového bydlení. Nově od 4/2024 dokončena tramvajová trať Liberec - Jablonec n. Nisou a k pozemku je i přístup po nově asfaltové cestě ze strany od Rádla - Milíře. Tramvajová zastávka 3 minuty chůze od pozemku.
Více informací podá makléř Reality11 Liberecko. Ev. číslo: 27164.
| Cena: |
(za nemovitost) 2 500 000,- Kč
(Včetně právního servisu.)
|
|---|
| Vlastní pozemek | 1 200 m² |
|---|---|
| Druh pozemku | pro bydlení |
