| Číslo zakázky: | 456B | ![]() Karta nemovitosti |
|---|---|---|
| Typ zakázky: | prodej |
Dobrý den, hledáte větší pozemek pro projekt svého rodinného domu nebo hledáte investiční nemovitost, ze které můžete vytvořit projekt domu o 3 bytech s předzahrádkami a vlastním parkováním? Pokud umíte najít a vytěžit potenciál u nemovitosti, mohla by Vás zaujmout tato naše nová nabídka.
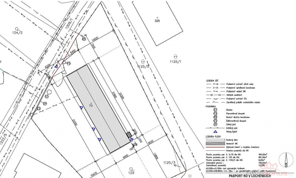
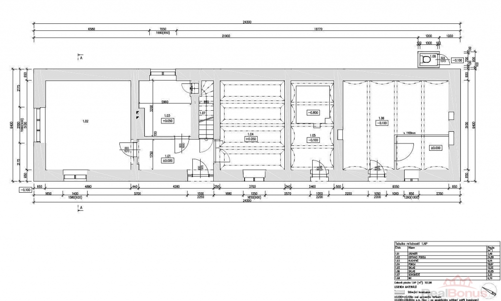
Jedná se o prodej pozemku o celkové výměře 1.191 m2, který se nachází v klidné části obce Lochenice, 15 minut jízdy autem od centra Hradce Králové. Na pozemku je postaven rodinný dům, který je určen k demolici, případně celkové rekonstrukci. Jeho zastavěná plocha činí 156 m2. Byl postaven pravděpodobně již v 19. století a od té doby došlo k přístavbám jihovýchodním směrem, ale dům je již od poloviny 20. století bez výraznějším změn.
IS: elektřina zavedena, předpřipravená kanalizační přípojka, předpřipravená plynová přípojka. Na pozemku se nachází vlastní studna.
V územním plánu je celý pozemek zahrnut do území smíšeného obytného.
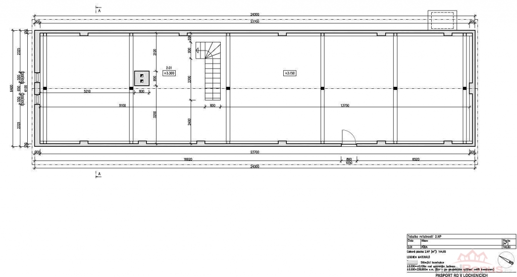
A jak bylo uvedeno výše, nabídka je vhodná pro zájemce, který umí najít a vytěžit potenciál daného místa nebo stavby. Stávající půdorys domu je vhodný pro vybudování domu o 3 bytech, každý s vlastním parkováním a menší zahradou.
Děkuji za pozornost a budu se těšit na komunikaci s Vámi. Václav Růžička, realitní specialista.
Prodávající si vyhrazuje právo na výběr kupujícího dle vlastní úvahy (způsob úhrady kupní ceny, serióznost jednání apod.).
| Cena: |
(za nemovitost) 6 990 000,- Kč
(cena včetně služeb RK)
|
|---|
| Číslo podlaží v domě | 1 |
|---|---|
| Vlastní pozemek | 1 191 m² |
| Plocha parcely | 1 191 m² |
| Druh pozemku | pro bydlení |




