| Číslo zakázky: | 25175 | ![]() Karta nemovitosti |
|---|---|---|
| Typ zakázky: | prodej |
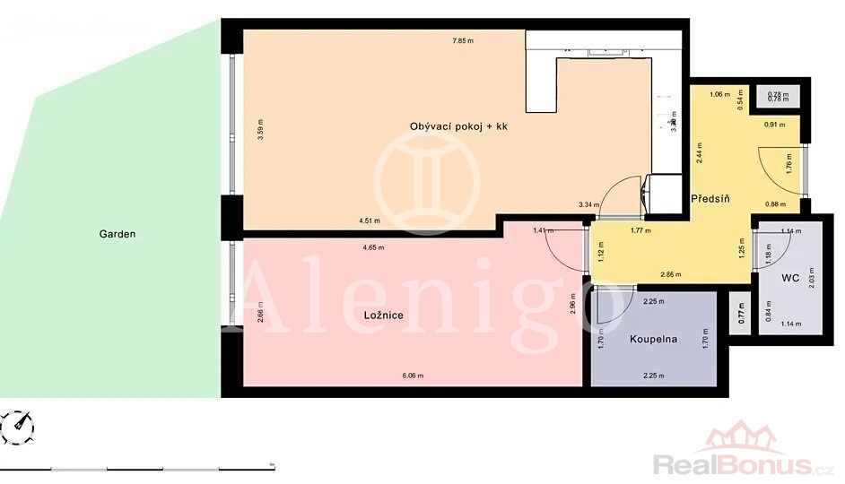
Představujeme Vám úchvatný byt 2+kk v novostavbě v atraktivní lokalitě Dagmar Burešové v Praze. Tento moderní a prostorný byt nabízí užitnou plochu 61 m2, terasu /zahrádkou/ o rozloze 36 m2 na kterou je vstup z obou obytných místností . Nachází se na 1. nadzemním podlaží cihlové budovy a nabízí skvělý výhled a dostatek přirozeného světla. Jeho interiéry jsou vkusně zařízené, a kvalitní materiály se projevují v každém detailu. Tento byt je ideální pro ty, kteří hledají exkluzivní bydlení v srdci Prahy. Užijte si dokonalý harmonický bytový komplex, kde se vládne klid a pohoda.
Užitná plocha bytu činí velkorysých 60,8 m2 a dispozice zahrnuje předsíň, koupelnu a samostatné WC, obývací pokoj s kuchyňským koutem a ložnici. Byt je kompletně vybaven kvalitním nábytkem na míru, který může v případě zájmu kupujícího v bytě bezplatně zůstat.
K bytu náleží parkovací stání v podzemní garáži a sklep o ploše 3 m2 ? není zahrnuto v ceně, dá se dokoupit za 900.000 Kč (k jednání).
| Cena: |
(za nemovitost) 11 000 000,- Kč
(včetně DPH, včetně poplatků, včetně provize, včetně právního servisu)
|
|---|
| Dispozice bytu | 2+kk |
|---|---|
| Číslo podlaží v domě | 1 |
| Počet podlaží objektu | 4 |
| Celková podlahová plocha | 61 m² |
| Druh objektu | cihlová |
| Stav objektu | novostavba |
| Energetická třída | G - Mimořádně nehospodárná |
| Vlastnictví | osobní |
| Počet podlaží pod zemí | 1 |
| Plocha teras | 36 m² |
| Vybavení | terasa sklep |
| Parkování | garáž |
| Ostatní | Garáž |
| Užitná plocha | 61 m² |
| Poloha objektu | v bloku |




