| Číslo zakázky: | 31950 | ![]() Karta nemovitosti |
|---|---|---|
| Typ zakázky: | prodej |
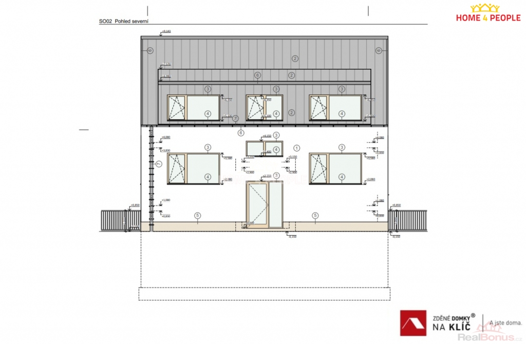
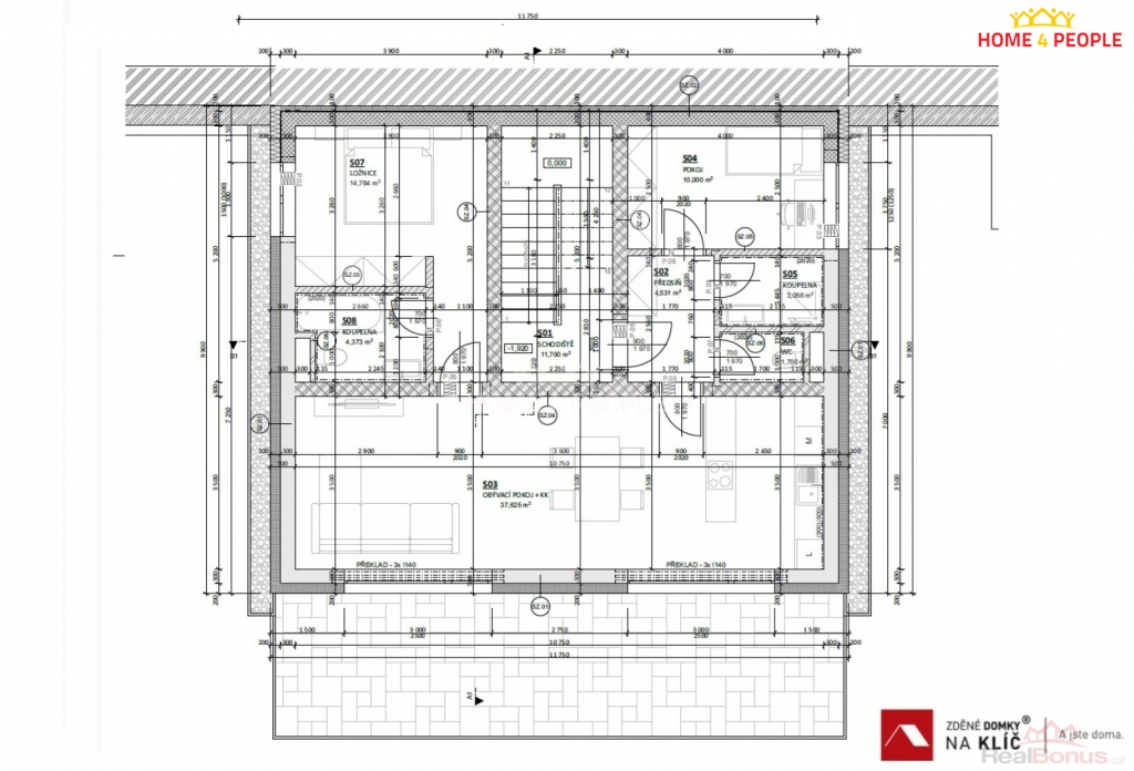
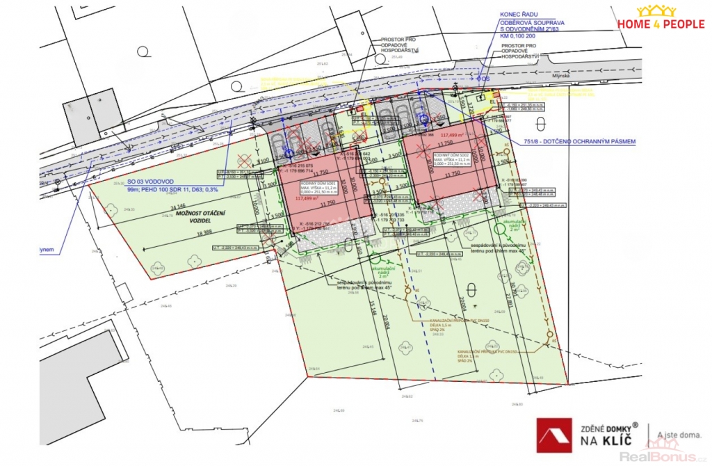
Cena včetně výstavby bytu, kolaudace, pozemku, terasy, parkování a zahrady., Zprostředkujeme Vám Exkluzivní nabídku výstavby prostorného rodinného domu 5+kk na klíč v Luhačovicích s terasou, zahradou a parkovacím stáním pro 2 auta (možnost vybudovat i garáž). Tento luxusní třípodlažní dům se nachází v centru města Luhačovice a má možnost využití přízemí jako komerční prostory. Dispozice domu je ideální pro rodiny či páry, kteří hledají moderní a komfortní bydlení. Obývací pokoj s kuchyňským koutem, ložnice, dětský pokoj a dvě koupelny s WC poskytují veškerý prostor potřebný pro pohodlné bydlení. Nenechte si ujít tuto jedinečnou příležitost vlastnit luxusní RD v centru Luhačovic. Pro více informací nás kontaktujte. Ev. číslo: 31950. Energetický štítek: A (49 kWh/m2/rok).
| Cena: |
na vyžádání v RK (Cena včetně výstavby bytu, kolaudace, pozemku, terasy, parkování a zahrady.)
|
|---|
| Počet podlaží objektu | 3 |
|---|---|
| Celková podlahová plocha | 260 m² |
| Druh objektu | cihlová |
| Stav objektu | ve výstavbě (hrubá stavba) |
| Energetická třída | A - Mimořádně úsporná |
| Vlastní pozemek | 850 m² |
| Umístění objektu | centrum |
| Počet míst k parkování | 2 |
| Zastavěná plocha | 117 m² |
| Užitná plocha | 260 m² |
| Poloha objektu | samostatný |
