| Číslo zakázky: | E4353BL003 | ![]() Karta nemovitosti |
|---|---|---|
| Typ zakázky: | prodej |
Exkluzivně Vám nabízíme k prodeji komerční nemovitost, která zajišťuje prostory jak k výrobě a skladování, tak i k zázemí bytového typu, včetně kanceláří a sociálního zázemí.
Přízemí budovy rozděluje vstupní chodba (32 m2) na dvě výrobní haly o přibližné výměře 85 m2 a 33,7 m2, které byly dříve využívány ke kovoobrábění a zámečnictví. Z větší haly vede vstup přímo na parkoviště - pozemek náležící k budově.
Ze vstupní chodby se dále dostaneme do dalších třech místností, z nichž největší (25 m2) sloužila jako prodejna a vedlejší místnost (11 m2) jako kancelář. Tyto místnosti lze lehce propojit v jeden větší prostor.
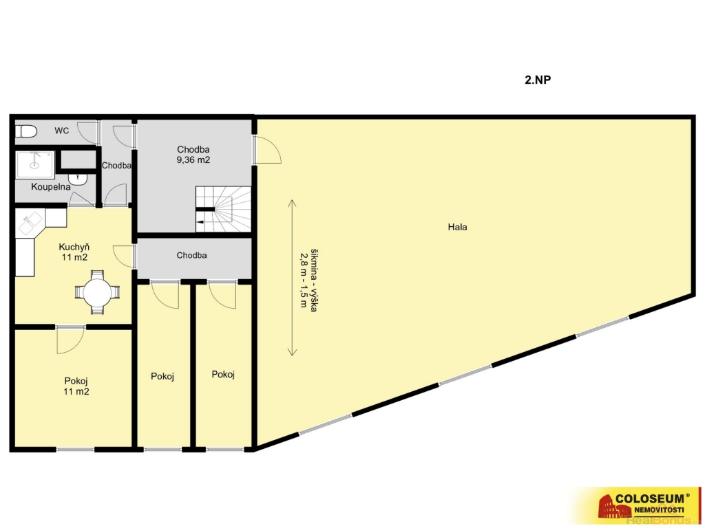
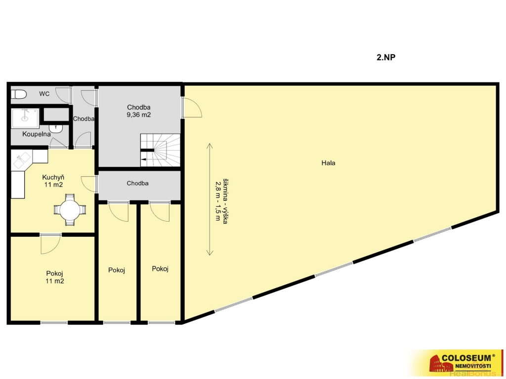
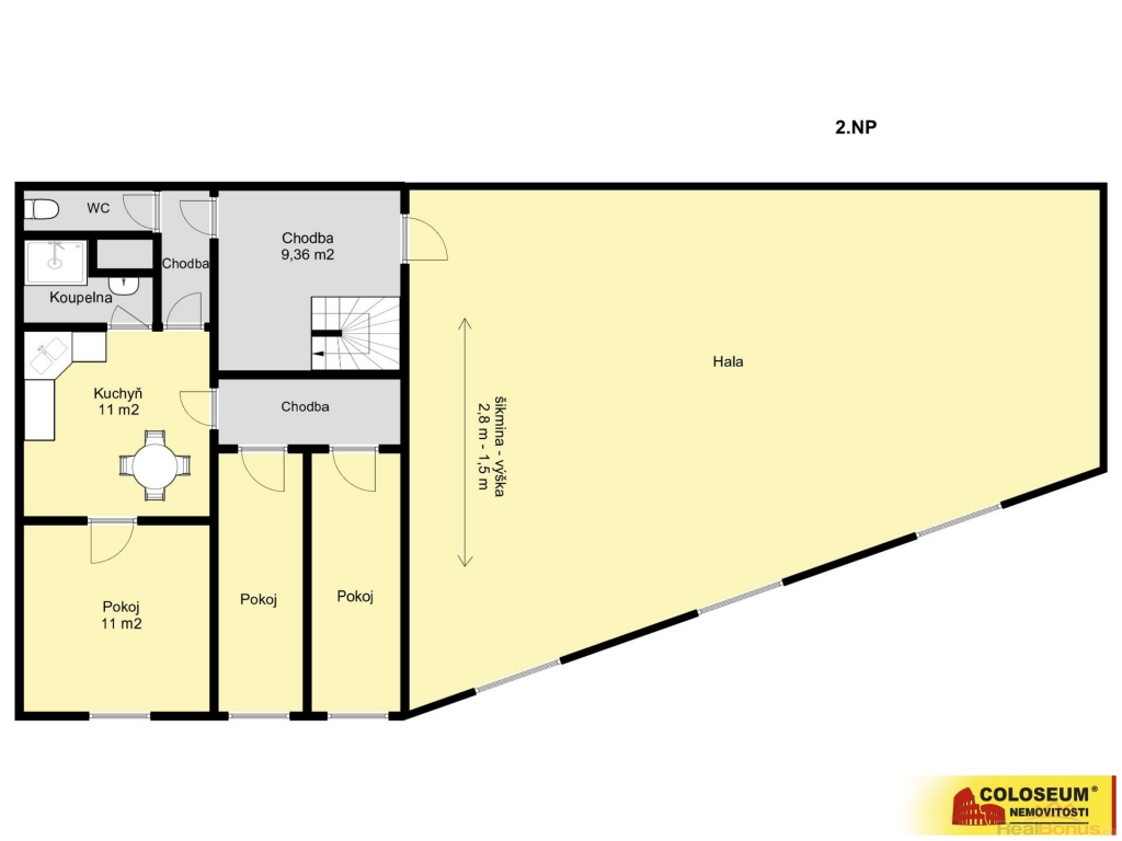
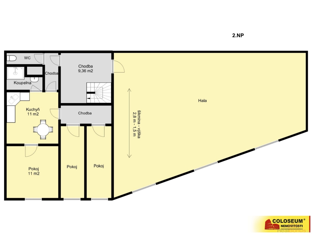
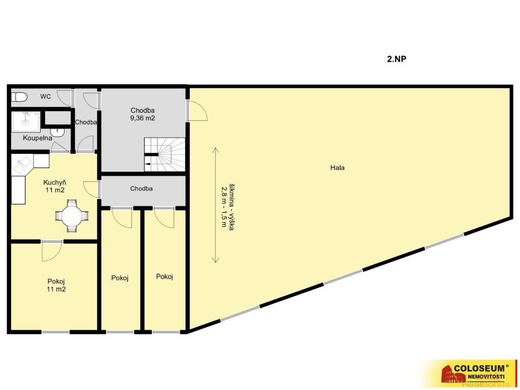
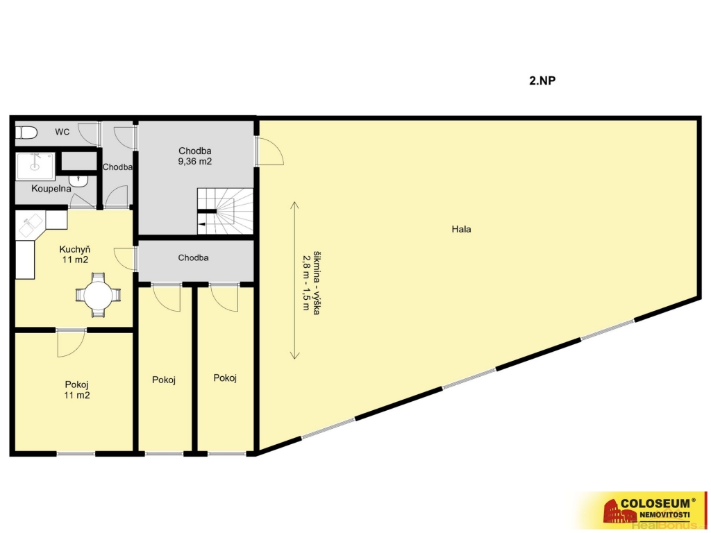
V patře se nachází další velká hala, která sloužila jako sklad, a proto zde byla speciálně zpevněná podlaha na nosnost 600kg/m2. V tomto patře je také k dispozicí plnohodnotné zázemí o užitné ploše 55 m2 - kuchyně včetně linky, koupelna, samostatná toaleta a 3 pokoje.
Součástí oploceného pozemku je menší starý dům, který se nabízí k odstranění a tato plocha pak k využití pro další parkovací místa. Možnosti k přestavbě a využití nabízí i půdní prostor.
Nemovitost je zabezpečena funkčním kamerovým systémem. Je napojena na kanalizaci, vodovod, elektřinu i plyn.
Průkaz energetické náročnosti budovy nebyl dodán, z tohoto důvodu uvádíme třídu G. Veškeré uvedené plochy jsou přibližné a mají orientační charakter.
Pro více informací kontaktujte realitní makléřku.
| Cena: |
(za nemovitost) 10 997 000,- Kč
(cena k jednání)
|
|---|
| Druh objektu | cihlová |
|---|---|
| Stav objektu | dobrý |
| Energetická třída | G - Mimořádně nehospodárná |
| Telekomunikace | Internet |
| Voda | dálkový vodovod |
| Odpad | Městská kanalizace |
| Plyn | Zaveden |
| Účel budovy | Výroba |
| Zastavěná plocha | 597 m² |
| Ostatní | Parkoviště |
| Užitná plocha | 597 m² |
| Inženýrské sítě | Vodovod Kanalizace Plyn |
