| Číslo zakázky: | 222524 | ![]() Karta nemovitosti |
|---|---|---|
| Typ zakázky: | prodej |
Nabízíme k prodeji prostorný byt 4+kk+ lodžie a balkon v osobním vlastnictví v lokalitě Kročehlavy, Kladno. Byt o celkové výměře 92 m2 + lodžie 6m2+ balkon 3m2 , prošel kompletní rekonstrukcí, čímž nabízí světlé a moderní bydlení.
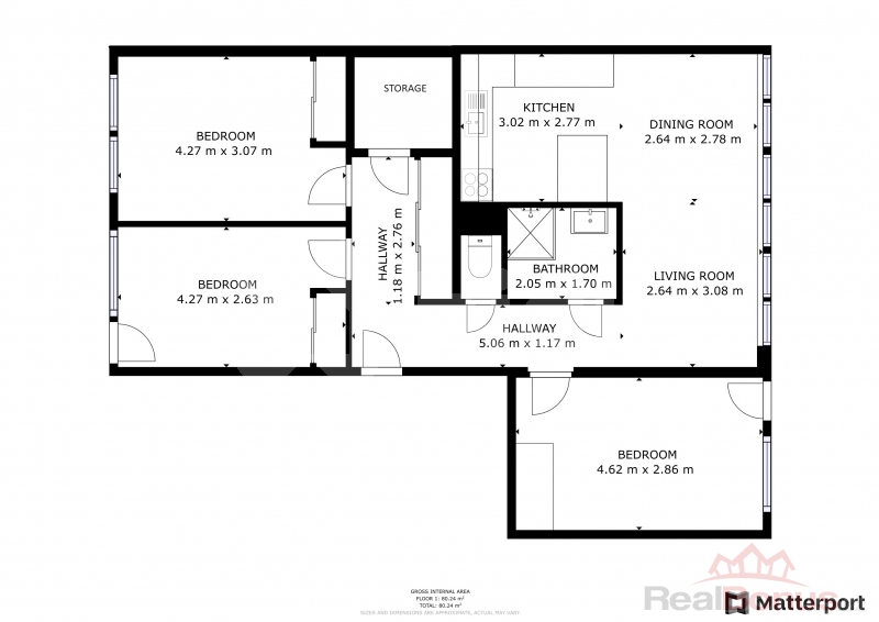
Dispozice: Byt se nachází ve 4. patře panelového domu s celkem osmi patry a dvěma výtahy. Dispozice zahrnuje tři pokoje, samostatnou kuchyni, koupelnu s vanou a umyvadlem, samostatné WC, prostornou komoru , balkonem a lodžií.
Byt je plně vybaven nábytkem a spotřebiči, které mohou po dohodě zůstat součástí prodeje. K bytu náleží také sklepní kóje umístěná v suterénu bytového domu. Dům prošel revitalizací včetně zateplení fasády, nové střechy, plastových oken, stoupaček a instalace dvou nových výtahů. Topení je řešeno jako centrální dálkové.
Kročehlavy jsou klidnou lokalitou s veškerou občanskou vybaveností v blízkosti, včetně obchodního centra, škol a školek. Okolí je obohaceno krásným parkem vedoucím až do Sítenského údolí, což nabízí možnosti pro rekreaci a relaxaci. Vynikající dostupnost na autobusové i vlakové spojení zajišťuje snadnou dopravu po městě Kladně i do Prahy.
Tuto nabídku je možné financovat hypotečním úvěrem, který Vám rádi zprostředkujeme.
Pro více informací a naplánování prohlídky kontaktujte makléře RK.
| Cena: |
(za nemovitost) 7 900 000,- Kč
(včetně provize a právních služeb) (cena k jednání)
|
|---|
| Dispozice bytu | 4+kk |
|---|---|
| Číslo podlaží v domě | 4 |
| Počet podlaží objektu | 8 |
| Celková podlahová plocha | 92 m² |
| Druh objektu | panelová |
| Stav objektu | dobrý |
| Energetická třída | C - Úsporná |
| Vlastnictví | osobní |
| Bezbariérový byt | ano |
| Vybavení | výtah lodžie |
| Umístění objektu | klidná část obce |
| Telekomunikace | Internet |
| Vybaveno | Částečně zařízeno |
| Popis vybavení | nova kuchyň |
| Topení | Ústřední - dálkové |
| Doprava | vlak dálnice silnice MHD autobus |
| Elektřina | 230 V 380 V |
| Voda | dálkový vodovod |
| Odpad | Městská kanalizace |
| Občanská vybavenost | Škola Školka Zdravotnická zařízení Pošta Supermarket Kompletní síť obchodů a služeb Restaurace Místní úřad Kulturní zařízení Koupaliště |
| Rok rekonstrukce | 2 023 |
| Bytové jádro | Zděné |
| Parkování | u domu (veřejné) |
| Užitná plocha | 92 m² |




