| Číslo zakázky: | ZR1208 | ![]() Karta nemovitosti |
|---|---|---|
| Typ zakázky: | pronájem |
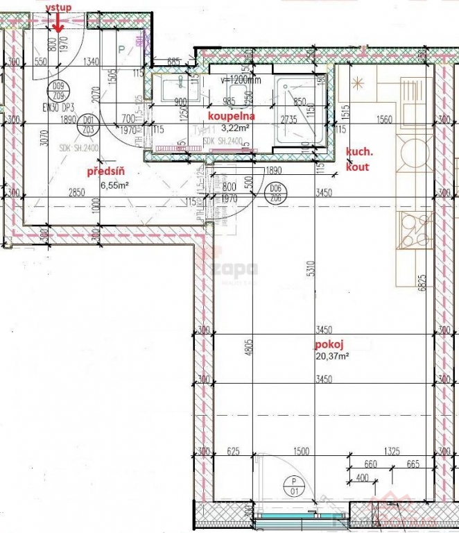
Exkluzivně nabízíme nový světlý byt o velikosti 1+kk o velikosti 31 se sklepem 2m2, v novostavbě rezidenčního bytového komplexu Bydlení Brandýs z roku 2024 v ulici Augustina Lukeše v Brandýse nad Labem.
Byt se nachází ve 4. patře s výtahem, je vybaven novou kuch. linkou s vestavěnými spotřebiči (el. a mikrovlnná trouba, sklokeramická varná deska, myčka, lednice s mrazákem) a pračkou, jinak je byt nezařízený. V koupelně je sprchový kout a WC, na podlahách je plovoucí podlaha nebo dalžba, okna mají el. předokenní žaluzie, v bytě kabel pro internet. K bytu náleží zděný sklep v přízemí domu.
Byt je skvětlý se západní orientací, vytápění bytu je ústřední dálkové, parkování je možné před domem nebo v okolních ulicích.
Byt je volný od 1.12. 2025 (může být i později, od 1. 1. 2026), ideální pro 1 max 2 osoby bez zvířat. Měsíční nájemné činí 14.500,-Kč+ poplatky 2.300,-Kč + elektřina cca 500,-Kč + internet. Při podpisu smlouvy je nutné uhradit 1. nájem , kauci 40.tis. a provizi RK 14.500,-Kč.
Dopravní dostupnost je výborná- příměstská doprava v rámci PID (7min chůze)- 35min na metro Černý most, 40m na metro Letňany nebo rychlostní komunikace R10 směrem Praha a Mladá Boleslav ( autem do 15min. stanice metra B Černý Most a 20 min metro C Letňany ). Občanská vybavenost do 7 min. chůzí (supermarket Lidl, Kaufland a Tesco, restaurace, kavárny, lékař). Lokalita nabízí i možnost relaxace v blízkých lesích a sportovní vyžití- cyklostezky podél Labe, koupání a vodní sporty (jezera Lhota a Proboštská jezera), workoutová hřiště, houbaření atd.
| Cena: |
(za měsíc) 14 500,- Kč
(2300)
|
|---|
| Dispozice bytu | 1+kk |
|---|---|
| Číslo podlaží v domě | 4 |
| Počet podlaží objektu | 4 |
| Druh objektu | cihlová |
| Stav objektu | novostavba |
| Energetická třída | B - Velmi úsporná |
| Vlastnictví | osobní |
| Druh bytu | v nájemním domě (činžovním) |
| Vybavení | výtah sklep |
| Umístění objektu | klidná část obce |
| Vybaveno | Částečně zařízeno |
| Topení | Ústřední - dálkové |
| Jiné plochy | 2 m² |
| Druh stavby | budova/y, hala/y |
| Poloha objektu | v bloku |




