| Číslo zakázky: | H96/25 | ![]() Karta nemovitosti |
|---|---|---|
| Typ zakázky: | prodej |
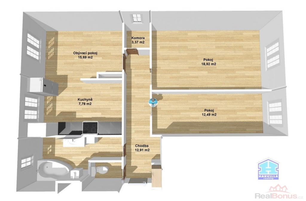
Nabízíme Vám ke koupi byt o dispozici 3+1 v osobním vlastnictví, který se nachází v 1. patře cihlového bytového domu v městysu Stráž, který je vzdálený 5 km od Boru a 9 km od Přimdy. Byt o celkové obytné ploše 74,27 m2 prošel pře 6 až 12 lety rekonstrukcí (zděné jádro, omítky, okna, rozvody topení, elektřina, koupelna, krytiny podlah), nicméně jeho současný stav vyžaduje rekonstrukce a modernizace. Podlahy v bytě jsou betonové, pokryté keramickou dlažbou či plovoucí podlahou či koberci. Krytiny jsou určené na výměnu. Vytápění bytu zajišťuje vlastní plynový kotel umístěný v koupelně. Byt tvoří předsíň, komora, WC, koupelna s vanou a umyvadlem, kuchyně, ložnice, pokoj a obývací pokoj. K bytu náleží sklepní kóje. V domě, který nemá výtah, v současné době probíhá zateplení. V těsné blízkosti bytu se nachází škola, školka, sportoviště, dětské hřiště a obchody. Autobusové i vlakové spojení. V okolí městečka se nachází krásná příroda a Sycherské rybníky. Byt lze též financovat pomocí hyp. úvěru, který Vám naše RK ráda zprostředkuje. Doporučuji prohlídku.
| Cena: |
(za nemovitost) 2 190 000,- Kč
(včetně provize, včetně právního servisu)
|
|---|
| Dispozice bytu | 3+1 |
|---|---|
| Číslo podlaží v domě | 2 |
| Počet podlaží objektu | 3 |
| Celková podlahová plocha | 74 m² |
| Druh objektu | cihlová |
| Stav objektu | před rekonstrukcí |
| Energetická třída | G - Mimořádně nehospodárná |
| Vlastnictví | osobní |
| Vybavení | sklep |
| Umístění objektu | centrum |
| Topení | Ústřední - plynové |
| Doprava | vlak silnice autobus |
| Voda | dálkový vodovod |
| Odpad | Městská kanalizace |
| Plyn | Zaveden |
| Užitná plocha | 74 m² |
| Komunikace | asfaltová |
| Inženýrské sítě | Vodovod Kanalizace Plyn |
| Charakter okolní zástavby | obytná |
