| Číslo zakázky: | 19286 | ![]() Karta nemovitosti |
|---|---|---|
| Typ zakázky: | prodej |
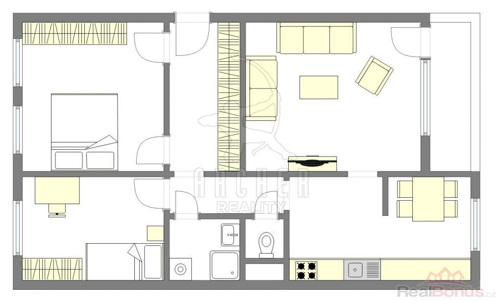
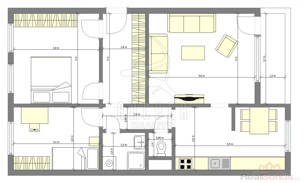
Nabízíme k prodeji byt 3+1/L/S v OV, 81 m2 (4.40m2 lodžie, 1.60m2 sklep), Liberec - Liberec VI-Rochlice, ul. Ježkova Byt se nachází v oblíbené a klidné části Liberce - Rochlicích.
Tato lokalita nabízí kompletní občanskou vybavenost a výbornou dopravní dostupnost jak do centra města, tak i na dálnici směr Praha. V okolí je dostatek zeleně, parků, cyklostezek a dětských hřišť, takže se zde skvěle žije jak rodinám s dětmi, tak i aktivním jednotlivcům.
Noví majitelé bytu ocení především jeho velkorysý prostor.
Kuchyně potěší svou velikostí i možností umístit velký jídelní stůl pro společné rodinné chvíle. Z kuchyně se vstupuje do velkého obývacího pokoje, orientovaného na jižní stranu, díky čemuž je krásně prosvětlený po celý den. Z obývacího pokoje je navíc přístup na lodžii. Byt dále disponuje dvěma dalšími pokoji.
Od roku 2010 prošel byt postupnou rekonstrukcí - vyzděné jádro, nová elektroinstalace a další úpravy zajišťují, že vás nečekají žádné velké investice.
Praktické plus navíc:
Velkým bonusem je uzamykatelná sušárna hned u vstupu do bytu. Tu využívají pouze tři byty na patře, takže nabízí dostatek místa například pro kočárek nebo jízdní kola.
Na tuto nemovitost Vám pomůžeme zajistit financování s nízkou úrokovou sazbou.
Doporučujeme prohlídku. Třída G - Mimořádně nehospodárná Energetický štítek budovy (PENB) nebyl dodán.
| Cena: |
(za nemovitost) 4 990 000,- Kč
(fond oprav: 2304) (včetně provize)
|
|---|
| Dispozice bytu | 3+1 |
|---|---|
| Číslo podlaží v domě | 2 |
| Počet podlaží objektu | 8 |
| Celková podlahová plocha | 81 m² |
| Druh objektu | panelová |
| Stav objektu | velmi dobrý |
| Energetická třída | G - Mimořádně nehospodárná |
| Vlastnictví | osobní |
| Počet podlaží pod zemí | 1 |
| Lodžie | 4 m² |
| Plocha sklepu | 1 m² |
| Bezbariérový byt | ano |
| Umístění objektu | klidná část obce |
| Doprava | vlak |
| Rok rekonstrukce | 2 010 |
| Užitná plocha | 81 m² |




