| Číslo zakázky: | 231362 | ![]() Karta nemovitosti |
|---|---|---|
| Typ zakázky: | prodej |
Váš styl, vaše pravidla - moderní byt v srdci Olomouce.
Tento byt je připraven jako čisté plátno - kuchyně, koupelna, dveře i podlahy čekají na vaše finální rozhodnutí. Šatna je samozřejmostí. Součástí je i podzemní parkovací stání a zděný sklep o 2,4 m2. Vytápění je zajištěno dálkově. Inženýrské sítě: elektřina, vodovod, kanalizace.
Světlem zalitý obytný prostor s arkýřem navozuje atmosféru otevřenosti a elegance. Vila v Žilinské ulici nabízí mimořádný standard a důraz na soukromí.
Vše, co Olomouc nabízí, máte doslova na dosah ruky - centrum, sportoviště, univerzity, kavárny i kulturu.
Propojení moderní architektury, promyšlené dispozice a prestižní adresy z tohoto bytu dělá ideální místo pro život i investici.
Přijďte se přesvědčit, jak výjimečné může být bydlení, které spojuje styl, komfort a prestižní adresu.
Domluvte si prohlídku a poznejte osobně jeho jedinečnou atmosféru.
| Cena: |
na vyžádání v RK (cena k jednání)
|
|---|
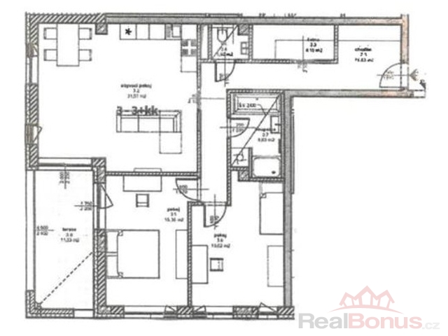
| Dispozice bytu | 3+kk |
|---|---|
| Číslo podlaží v domě | 2 |
| Počet podlaží objektu | 5 |
| Celková podlahová plocha | 106 m² |
| Druh objektu | cihlová |
| Stav objektu | novostavba |
| Energetická třída | B - Velmi úsporná |
| Vlastnictví | osobní |
| Počet podlaží pod zemí | 1 |
| Plocha sklepu | 2 m² |
| Vybavení | výtah sklep |
| Umístění objektu | centrum |
| Telekomunikace | Telefon Internet |
| Vybaveno | Nezařízeno |
| Topení | Klimatizace |
| Doprava | vlak dálnice silnice MHD autobus |
| Elektřina | 230 V |
| Voda | dálkový vodovod |
| Odpad | Městská kanalizace |
| Plyn | Není |
| Občanská vybavenost | Škola Školka Zdravotnická zařízení Pošta Supermarket Kompletní síť obchodů a služeb Restaurace Místní úřad Kulturní zařízení Koupaliště |
| Stáří objektu | 2 025 |
| Bytové jádro | Zděné |
| Parkování | kryté stání |
| Počet míst k parkování | 1 |
| Užitná plocha | 106 m² |
| Druh pozemku | pro bydlení |
| K dispozici od | 01.11.2025 |




