| Číslo zakázky: | RM25019 | ![]() Karta nemovitosti |
|---|---|---|
| Typ zakázky: | prodej |
Prostorný dům s historií a velkým investičním potenciálem ? Mlékojedy u Neratovic
Nabízíme Vám ke koupi prostorný dům se zajímavou historií (dříve hospoda s ubytováním) a mimořádně variabilním využitím. Dům se nachází v ploše SV ? smíšené obytné venkovské, kde je hlavním využitím bydlení v rodinném domě, ale územní plán zároveň umožňuje také občanské vybavení, nerušící služby, lehkou řemeslnou výrobu, obchod a stravování.
Hlavní přednosti
? Užitná plocha cca 620 m2, pozemek 702 m2 ? plocha pozemku odpovídá požadavkům územního plánu pro rodinný dům s 1?2 byty
? 2 zrekonstruované byty v přízemí (2+kk + garsonka), samostatné vstupy, aktuálně pronajato
? 2 Velké sály po bývalé hospodě ? vhodné pro gastro, showroom, studio, sport/volnočasové aktivity či komunitní využití
? 1. patro: větší byt + 4 pokoje (historicky ubytování) + 2× WC, část též pronajata
? Garáž, technické místnosti, plynový kotel, bojlery
? Vydlážděný dvůr ? možnost parkování, předzahrádky nebo venkovního posezení
? Funkční plocha SV ? možnost menší provozovny služeb, obchodu, stravování nebo nerušící řemeslné dílny
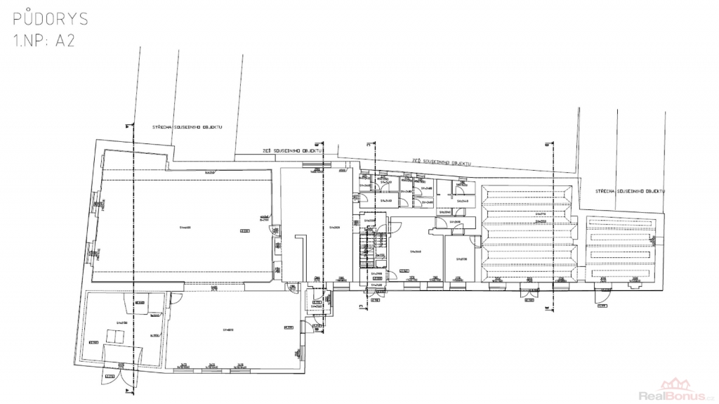
Dispozice Přízemí:
? nově zrekonstruované jednotky 2+kk a garsonka (samostatné vstupy)
? velká místnost s kuchyňskou linkou a koupelnou (zázemí pro horní byt/jednotky)
? dva víceúčelové sály po hospodě
? garáž
? technické zázemí (bojlery, plynový kotel)
Dispozice 1. patro:
? byt (2 místnosti)
? 4 menší pokoje se samostatnými vstupy
? 2× WC
Exteriér:
? vydlážděný dvůr
Možnosti využití (v souladu s územním plánem):
? Gastro + ubytování ? menší restaurace / bistro s ubytováním (penzion, ubytovna)
? Showroom / prodejna + zázemí firmy, kanceláře, ateliéry, studio služeb
? Kombinace bydlení a podnikání ? část domu pro vlastní bydlení, část pro služby / pronájem
Možnost rozšíření a zvýšení výnosu
Dům je vhodný k rekonstrukci s možností vybudovat plnohodnotné 2. nadzemní podlaží a případně i obytné podkroví, bez zvětšení zastavěné plochy, s výškou v úrovni stávající vyšší části budovy.
Velké sály a garáž lze dispozičně upravit na další obytné místnosti či samostatné jednotky. Výsledkem může být dům:
? se dvěma plnohodnotnými bytovými jednotkami,
? doplněný o ateliér (nebytový prostor),
? a větší počet samostatných pokojů vhodných k dlouhodobému pronájmu.
Tato varianta nabízí významný potenciál zvýšení výnosu celé nemovitosti.
Mlékojedy jsou klidná obec:
? V docházkové vzdálenosti samoobsluha, v obci mateřská škola.
? Nedaleko oblíbená pískovna Beach Park Mlékojedy se sportovními a kulturními akcemi.
? V Tišicích (cca 2 km) je větší samoobsluha, autobus a vlak směr Praha / Mladá Boleslav / Liberec.
? Kompletní občanská vybavenost v Neratovicích, Mladé Boleslavi a Mělníku.
Pro investory a podnikání
Objekt je připraven k okamžitému částečnému využití a zároveň nabízí jasný prostor pro komerční koncept v centru obce.
Nenechte si ujít tuto jedinečnou příležitost.
Kontaktujte nás a domluvte si prohlídku. Rádi Vám představíme všechny možnosti, které tento dům nabízí.
| Cena: |
(za nemovitost) 7 900 000,- Kč
(Cena je uvedena včetně provize a právního servisu., včetně provize, včetně právního servisu)
|
|---|
| Počet podlaží objektu | 2 |
|---|---|
| Druh objektu | cihlová |
| Stav objektu | dobrý |
| Energetická třída | G - Mimořádně nehospodárná |
| Umístění objektu | centrum |
| Topení | Lokální - elektrické Ústřední - plynové |
| Doprava | silnice autobus |
| Voda | dálkový vodovod |
| Odpad | Městská kanalizace |
| Plyn | Zaveden |
| Plocha parcely | 702 m² |
| Užitná plocha | 620 m² |
| Plocha kanceláří | 620 m² |
| Komunikace | asfaltová |
| Inženýrské sítě | Vodovod Kanalizace Plyn |
| Charakter okolní zástavby | venkovská |
| Poloha objektu | samostatný |
| Druh prostor | Obchodní |
