| Číslo zakázky: | 19181 | ![]() Karta nemovitosti |
|---|---|---|
| Typ zakázky: | prodej |
Exkluzivně nabízíme k prodeji RD o zastavěné ploše 121 m2, terasa 30 m2, na parcele 887 m2, Hradec Králové - Roudnička, ul. Ke Křížku. Cihlový RD 4+kk, s garáží, k celkové rekonstrukci, se nachází v klidné exkluzivní lokalitě, na okraji Hradce Králové, na pomezí rozsáhlých lesů a chráněné přírodní oblasti. Slunný, rohový pozemek o velikosti cca 34 x 25 m, vjezd od severu, orientovaný na jih, na parcele jsou všechny sítě - elektřina, plyn, obecní vodovod, obecní kanalizace. Dům je celý podsklepený, suchý, možnost rozšíření o další patro, součástí garáž. Kompletní rekonstrukci spočítala stavební firma na 2,5 mil., max. 3 mil. Kč., státní dotací Dům po babičce získáte až 1,5 mil. Kč. Výhodná nabídka.
Dobrá dopravní dostupnost, autobusem centrum Hradce Králové 20 min., v okolí veškerá občanská vybavenost, Přírodní památka Roudnička a Datlík, Vodnická cesta v Hradeckých lesích.
Na tuto nemovitost Vám pomůžeme zajistit financování výhodnou hypotékou od 4,39 %. Pojďme se podívat, všechny informace na prohlídce..
| Cena: |
(za nemovitost) 12 100 000,- Kč
(kanalizace: 200, elektřina: 1000, voda: 300, plyn: 2000, jiné: 200) (včetně provize)
|
|---|
| Počet podlaží objektu | 1 |
|---|---|
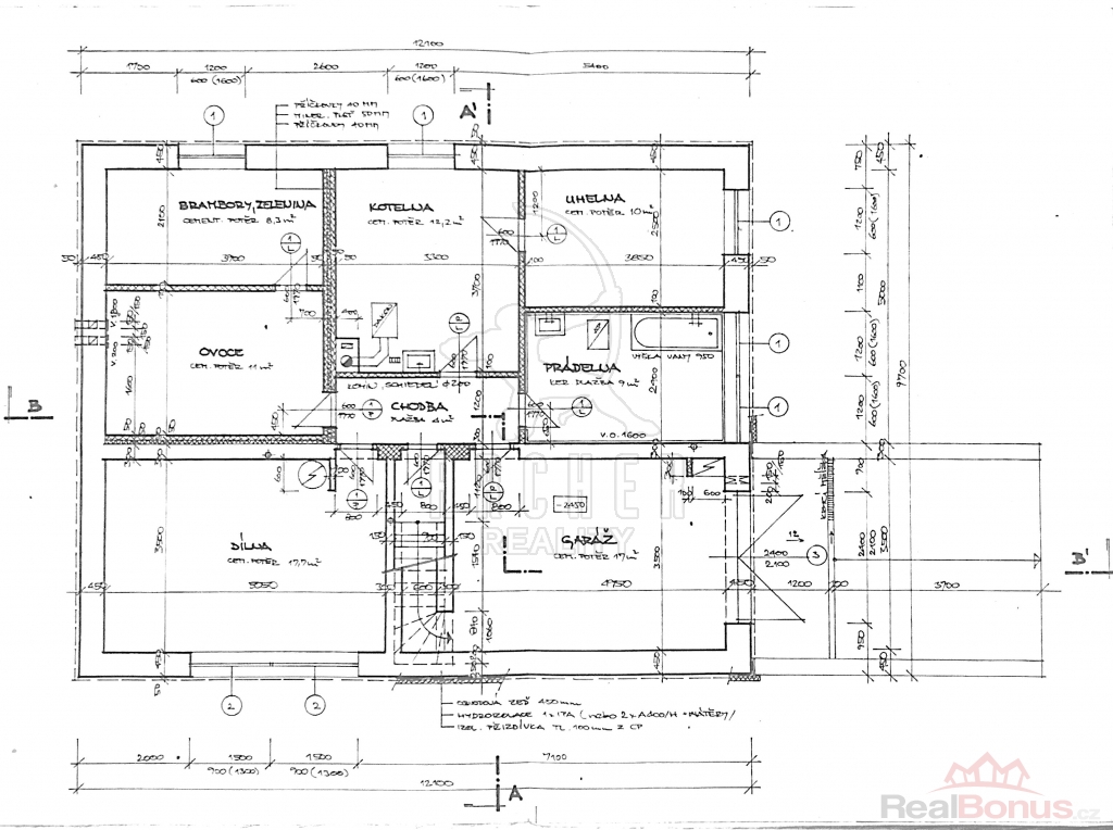
| Celková podlahová plocha | 200 m² |
| Druh objektu | cihlová |
| Stav objektu | před rekonstrukcí |
| Energetická třída | G - Mimořádně nehospodárná |
| Počet podlaží pod zemí | 1 |
| Vlastní pozemek | 877 m² |
| Plocha teras | 30 m² |
| Plocha sklepu | 70 m² |
| Umístění objektu | klidná část obce |
| Vybaveno | Částečně zařízeno |
| Topení | Lokální - plynové |
| Doprava | vlak |
| Odpad | Městská kanalizace |
| Plyn | Zaveden |
| Rok kolaudace | 1 991 |
| Zastavěná plocha | 121 m² |
| Užitná plocha | 100 m² |
| Plocha zahrady | 726 m² |
| Komunikace | dlážděná |
| Poloha objektu | samostatný |




