| Číslo zakázky: | 002028KH | ![]() Karta nemovitosti |
|---|---|---|
| Typ zakázky: | prodej |
Světlý vzdušný apartmán 2+kk o podlahové ploše 42 m2, kompletně plně vybavený.
Lokalita: ŠUMAVA, malebná obec Javorná ležící v CHKO Šumava na spojnici města Klatovy a jen 10 km od známého rekreačního střediska Železná Ruda. V obci jsou dva lyžařské vleky a čtyři sjezdovky o délce 2 km. Svou nadmořskou výškou 850 m n.m. a okolní krajinou je Javorná situována do šumavského podhůří s nádhernou zalesněnou krajinou s úžasnými výhledy do vnitrozemí.
Popis domu: komplexní rekonstrukcí bývalého hotelu vznikl nádherný a moderní bytový dům od architekta nominovaného na Českou cenu za architekturu. Součástí je vlastní zázemí s kolárnou a lyžárnou. Dům má moderní architektonickou tvář, je dokonale zateplený, okna jsou plastová s izolačním trojsklem v antracitovém odstínu. Topení zajišťují tři moderní, inteligentní a účinná tepelná čerpadla vzduch/voda zn. NIBE F 2040. Samozřejmostí je i vlastní parkoviště s vymezeným stání pro jednotlivé byty. Kolaudace domu proběhla v prosinci 2022 a ve dvou objektech je celkem 40 bytových jednotek. Napojen je na obecní vodovod a kanalizaci, zajištěna je i správa domu s úklidem a zimní údržbou parkoviště. Správa domu může dokonce zajistit i komerční pronájem apartmánu v době, kdy by ho vlastník nevyužíval tím se z apartmánu stává výnosová investice!
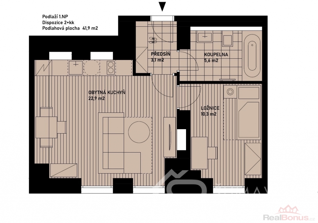
Popis apartmánu: světlost, vzdušnost a stylové značkové vybavení je první, co vás upoutá při vstupu do vlastního bytu. Ten se nachází v 1.NP hned vedle relaxační zóny, situovaný je na jihozápad. Dispozičně se jedná o byt 2+kk, kdy v předsíni je vestavěná prostorná šatní stěna s věšáky. Vlevo je vstup do koupelny s vanou a skleněnou zástěnou, bateriemi Hansgrohe, závěsným WC a otopným žebříkem. Obývací pokoj s kuchyňskou linkou i vedlejší samostatná ložnice má bezparapetová okna začínajícími od podlahy to dodává této místnosti dostatek světla. Podlahová krytina je z vinylu s dekorem dřeva. Kompletní nábytkové vybavení je od firmy Hanák (kuchyňská linka, vestavěná skříň v předsíni, nábytek v obývací místnosti a vestavěné skříně v ložnici). Čalouněný nábytek je od firmy UNAR (rozkládací pohovka s matrací pro každodenní užívání v plné velikosti 180/200 cm, manželská postel v ložnici o velikosti 180/200 cm). Kuchyňská linka je kompletně vybavena spotřebičemi zn. Elektrolux (velká lednička, mrazák, varná deska, mikrovlnná trouba s grilem, velká myčka a digestoř). Součástí je i televizor Samsung. Vytápění je možno ovládat dálkově s aplikací v telefonu, k dispozici je WIFI, Smart TV a vstupní dveře jsou zabezpečeny elektronickým číselným kódem. K dispozici je uzamykatelná lyžárna / kolárna pro valstníky apartmánů. Cena bez povize RK.
Cena: vč. kompletního vybavení.
| Cena: |
(za nemovitost) 4 490 000,- Kč
(plus provize RK)
|
|---|
| Dispozice bytu | 2+kk |
|---|---|
| Číslo podlaží v domě | 2 |
| Celková podlahová plocha | 42 m² |
| Druh objektu | smíšená |
| Stav objektu | po rekonstrukci |
| Energetická třída | E - Nehospodárná |
| Vlastnictví | osobní |
| Umístění objektu | klidná část obce |
| Rok rekonstrukce | 2 022 |
| Počet míst k parkování | 1 |
| Užitná plocha | 45 m² |




