| Číslo zakázky: | 232453 | ![]() Karta nemovitosti |
|---|---|---|
| Typ zakázky: | prodej |
Konečně dost místa. K životu, k dýchání, ke snům a to hned.
Nemovitost je v družstevním vlastnictví, počáteční vklad tvoří 20% z hodnoty nemovitosti. Zbytek splácíte formou nájmu. Možnost převodu do osobního vlastnictví po doplacení anuity.
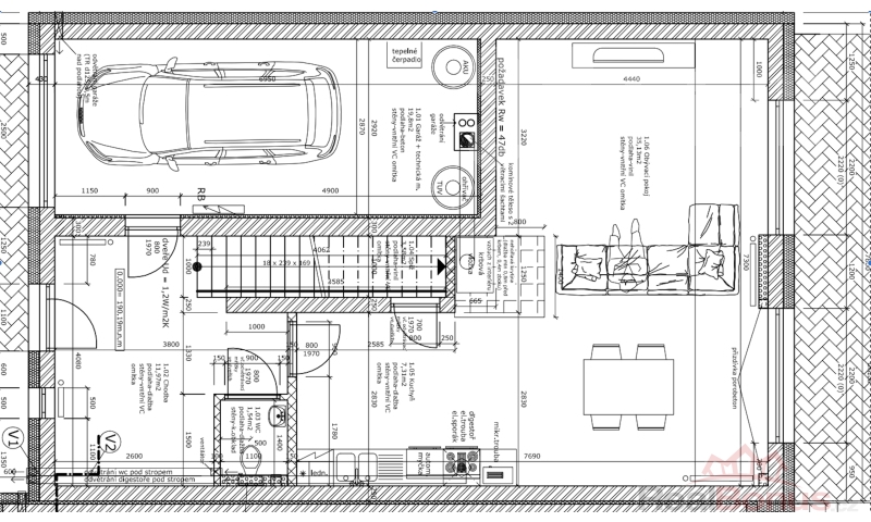
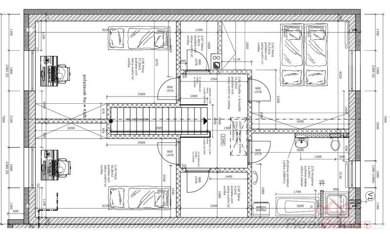
Na kraji Velkých Chvalovic, klidné části města Pečky, vznikla nová ulice s příznačným názvem Za Statkem. Právě zde na vás čeká úplně nový rodinný dům, který spojuje komfort moderní novostavby, dostatek prostoru i výhledy do krajiny. Dispozice 4+kk a celková plocha 166 m2, vám zajistí pohodlí, o kterém jste vždy snili.
V přízemí se nachází garáž a hlavní obytná zóna - srdce domu - tedy kuchyňský kout propojený s velkorysým obývacím prostorem o výměře 42 m2. V patře následně klidová část, tedy 3 pokoje, koupelna se sprchovým koutem i vanou a dostatek úložného prostoru. Velká okna přinášejí do interiéru příjemné světlo a umožňují přímý vstup na soukromou zahradu o rozloze 363 m2. Ta je jako stvořená pro víkendová grilování, dětské hry nebo klidné večery pod širým nebem.
Dům je vybaven kvalitními materiály a prvky, které potěší oko i praktičností - vinylové podlahy, moderní interiérové dveře, plastová okna s izolačním trojsklem, designová sanita značky SAT, baterie SIKO a elegantní obklady Rako Betonico. O vytápění se stará tepelné čerpadlo typu vzduch-voda od značky Willy, což znamená nízké provozní náklady a energetickou efektivitu.
Rodinné domy v této lokalitě jsou napojeny na obecní vodovod a kanalizaci. Kromě vlastní garáže máte k dispozici i parkovací stání přímo před domem. Sedlová střecha s betonovou krytinou v antracitovém odstínu elegantně ladí s celkovým vzhledem stavby.
Velké Chvalovice těží z vynikající polohy. Dálnice D11 je vzdálená jen 7 kilometrů, takže se do Prahy dostanete autem za přibližně 23 minut. Pokud preferujete hromadnou dopravu, vlak z Peček vás do centra Prahy dopraví za půl hodiny. Navíc je zde také autobusové spojení do Kolína, Poděbrad či Českého Brodu.
Město Pečky nabízí vše, co potřebuje moderní rodina - školku, školu, ZUŠ, lékaře, obchody, kulturní centrum, knihovnu, restaurace i sportovní vyžití včetně sportovní haly a různých oddílů. V okolí najdete krásnou přírodu, cyklostezky, lesy, historické památky i přírodní koupání.
Tato novostavba je připravena na to, stát se vaším domovem. A možná i začátkem úplně nové životní etapy.
Zavolejte si o případné další dotazy a hlavně prohlídku - rád vás domem osobně provedu.
| Cena: |
(za nemovitost) 1 938 000,- Kč
(včetně provize a právních služeb) (cena domu 9.690.000,-Kč
ihned k nastěhování)
|
|---|
| Počet podlaží objektu | 2 |
|---|---|
| Druh objektu | cihlová |
| Stav objektu | novostavba |
| Energetická třída | A - Mimořádně úsporná |
| Vlastnictví | družstevní |
| Vlastní pozemek | 463 m² |
| Vybavení | zahrada |
| Umístění objektu | klidná část obce |
| Vybaveno | Nezařízeno |
| Topení | Klimatizace |
| Doprava | silnice autobus |
| Voda | dálkový vodovod |
| Odpad | Městská kanalizace |
| Rok kolaudace | 2 025 |
| Parkování | garáž |
| Zastavěná plocha | 100 m² |
| Plocha parcely | 463 m² |
| Ostatní | Plot |
| Užitná plocha | 166 m² |
| Plocha zahrady | 363 m² |
| Komunikace | asfaltová |
| Poloha objektu | rohový |
| K dispozici od | 09.10.2025 |




