| Číslo zakázky: | 5453 | ![]() Karta nemovitosti |
|---|---|---|
| Typ zakázky: | pronájem |
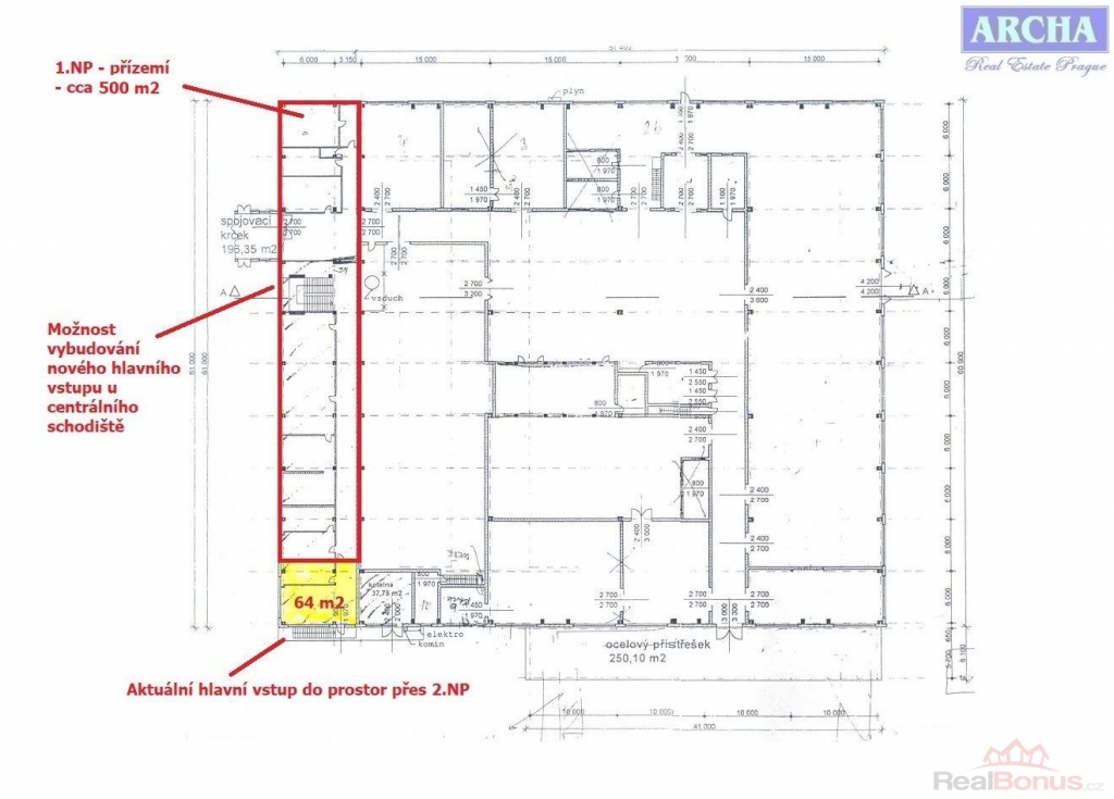
Nabízíme nájem dílenské budovy o dvou podlaží, celková výměra prostor je 1.060 m2 (500 + 560 m2), lze pronajmout na malé části dle domluvy.
Vhodné využití i jako kanceláře či školící středisko, montážní a kompletační práce, šicí dílna, chráněná dílna, reklamní a polygrafická výroba, skladování dlouhodobých zásob, opravárenská činnost v cyklo, moto, zahradní technika, výroba drobných dílů aj.)
Areál je výborně dostupný z dálnice D7 Praha - Chomutov a s napojení na Německo.
Centrální topení, vč. ohřevu TUV.
Příjezd po obecní asfaltové cestě.
Veškeré inž. sítě.
Součástí areálu je funkční železniční vlečka.
Parkování u budovy i na parkovacích plochách areálu a na venkovním parkovišti
Zastávka MHD Louny
Strategické umístění: Praha 60 km, SRN 50 km.
Provizi neplatíte.
ARCHA realitní kancelář
PRAHA
Telefon: 737851059, 702072257, 608135458
Email: archa-life@seznam.cz
Dat.sch.: 4td8nr3
www.facebook.com/nemovitosti.archa
www.twitter.com/archa_life
www.instagram.com/nemovitosti_archa
www.archa-rk.cz
| Cena: |
(za m2 / měsíc) 100,- Kč
(+ služby)
|
|---|
| Číslo podlaží v domě | 1 |
|---|---|
| Počet podlaží objektu | 2 |
| Celková podlahová plocha | 500 m² |
| Druh objektu | smíšená |
| Stav objektu | dobrý |
| Počet podlaží pod zemí | 1 |
| Umístění objektu | centrum |
| Vybaveno | Částečně zařízeno |
| Topení | Ústřední - dálkové |
| Elektřina | 230 V |
| Plyn | Zaveden |
| Připojení na internet | Jiné |
| Celková plocha | 500 m² |
| Účel budovy | Administrativní b. |
| Výrobní plocha | 1 060 m² |
| Jiné plochy | 1 060 m² |
| Užitná plocha | 500 m² |
| Plocha kanceláří | 1 060 m² |
| Dílna | 1 060 m² |
| Inženýrské sítě | Vodovod Kanalizace Plyn Elektřina |
| Druh stavby | budova/y, hala/y |
| Poloha objektu | v bloku |
| Druh prostor | Kanceláře |
