| Číslo zakázky: | N/RSB/21417/25 | ![]() Karta nemovitosti |
|---|---|---|
| Typ zakázky: | prodej |
Na základě výhradního zastoupení majitelů Vám nabízíme prodej 100% obchodních podílů společností vlastnící nemovitost - rohový polyfunkční dům v samém centru Hodonína na rohu ul. Velkomoravská 1 a Národní třída. Nemovitost je aktuálně z 80% pronajata s dlouhodobými nájemními smlouvami. Zbývající část nemovitosti není obsazena z důvodu plánované rekonstrukce 3.NP s vizí přebudování na byty/studia.
Zastavěná plocha nemovitosti: 729 m2
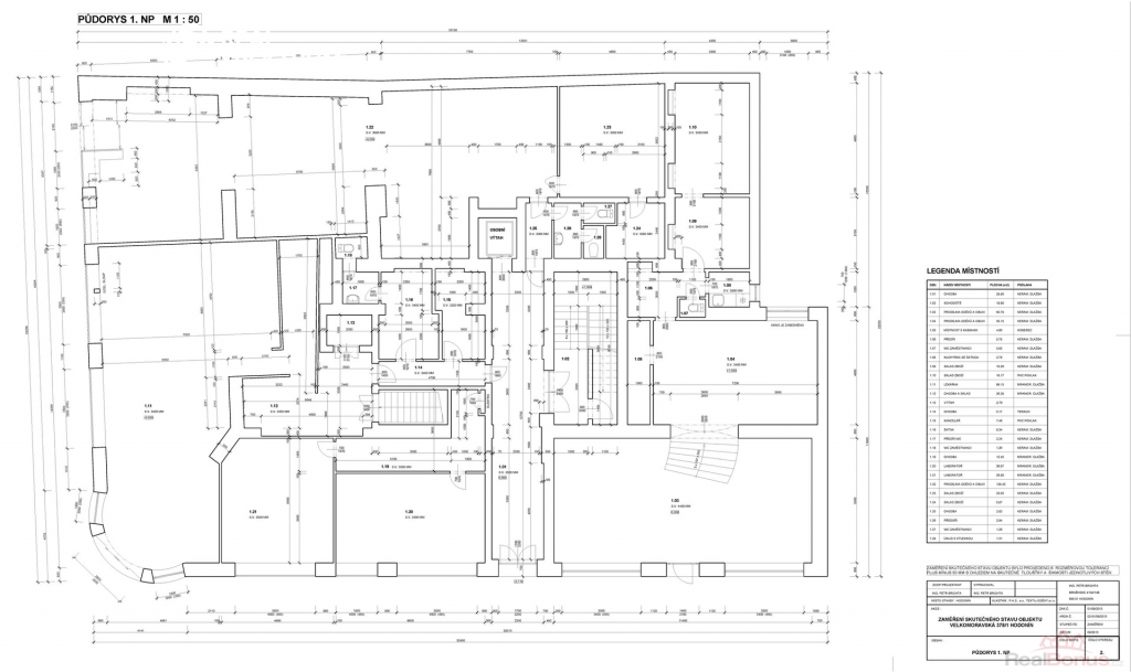
Podlahová plocha nemovitosti: 2310 m2
Užitná plocha nemovitosti: 1790 m2
Nemovitost postavena v letech 1907-1907 jako Šternův palác je situována jako třípodlažní cihlová víceúčelová budova s výtahem a bezbariérovým vstupem, Dům je je kompletně podsklepen.
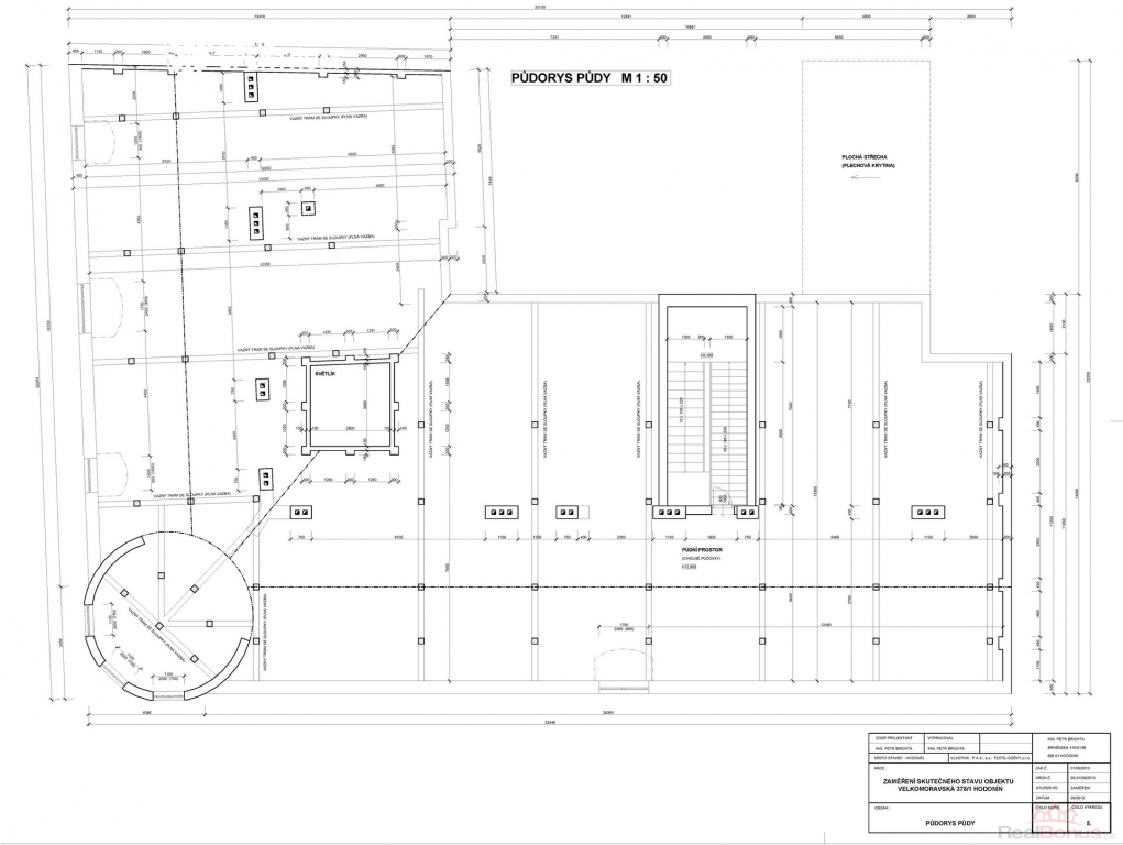
Obrovský potenciál skýtá i půdní prostor ve kterém by bylo možné, po schválení stavebním úřadem, vybudovat až 7 bytových jednotek a navýšit tak užitnou plochu nemovitosti o dalších cca 400 m2.
Podlahové plochy:
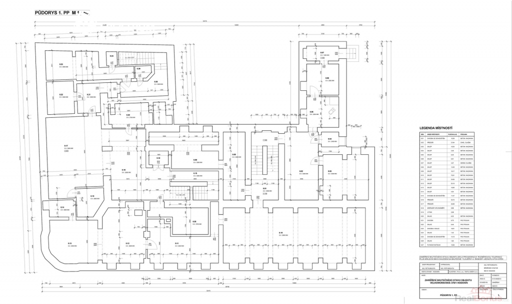
1.PP - 430m2 ? skladové prostory, z větší části nevyužité
1.NP - 510m2 ? obchodní prostory ? 3 provozovny (papírnictví, lékárna, textil)
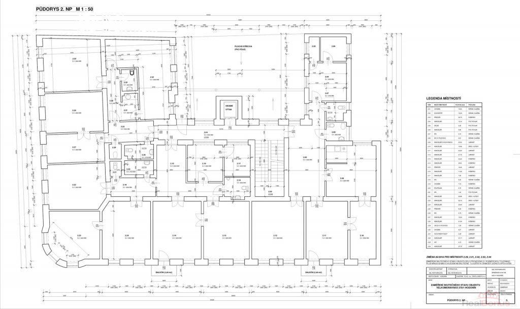
2.NP - 420m2 ? advokátní kanceláře, notář, masáže, služby
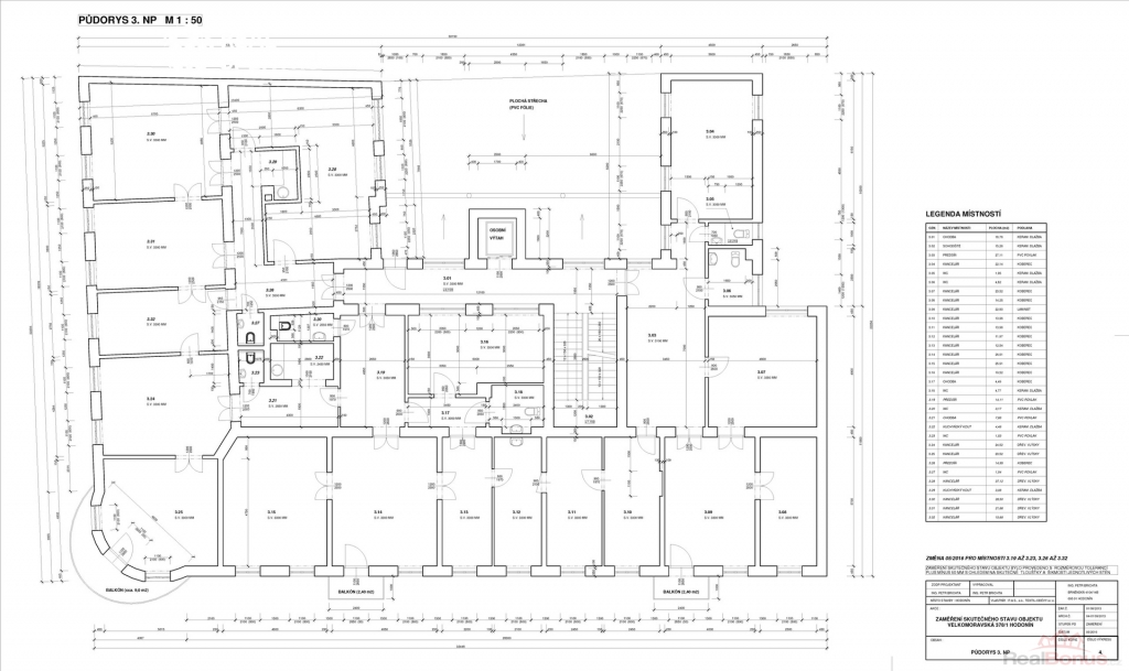
3.NP - 430m2 ? kanceláře, služby + část podlaží volná z důvodu plánového přebudování na 4 ateliéry
4.NP ? 400 m2 ? volný půdní prostor
- ostatní plochy cca: 120m2 - chodby a schodiště
Poslední provedené opravy, rekonstrukce, modernizace:
- 2009 přestavba komerční jednotky (nynějšího papírnictví ) ? rozšíření o dvorní prostory a vybudování osobního výtahu
- 2013 výměna výkladců včetně vstupních dveří a většiny oken
- 2014 dokončení uliční fasády včetně zateplení pláště budovy
- 2016 průběžná revitalizace vnitřních prostor ? výměna podlah, zateplení stropů, výměna elektroinstalace
Bližší informace o prodeji obchodních podílů, výměrách, obsazenosti a výnosnosti Vám rád poskytnu po telefonu či
osobně v naší realitní kanceláři.
PENB skupiny E (po zateplení dvorního traktu a izolaci půdních prostor)
| Cena: | (za nemovitost) 59 000 000,- Kč |
|---|
| Počet podlaží objektu | 4 |
|---|---|
| Druh objektu | cihlová |
| Stav objektu | velmi dobrý |
| Energetická třída | E - Nehospodárná |
| Počet podlaží pod zemí | 1 |
| Umístění objektu | centrum |
| Zastavěná plocha | 729 m² |
| Plocha parcely | 729 m² |
| Užitná plocha | 1 790 m² |
| Poloha objektu | rohový |
