| Číslo zakázky: | 5668 | ![]() Karta nemovitosti |
|---|---|---|
| Typ zakázky: | pronájem |
Nabízíme k nájmu víceúčelový objekt 388 m2 - výroba, sklad a kanceláře se zázemím.
Objekt se nachází v Řevnicích, asi 15 minut autem od hranic Hlavního města Praha.
Velikost objektu: 380 m2
Cena nájmu: 165 Kč/m2/měsíc + vlastní spotřeba.
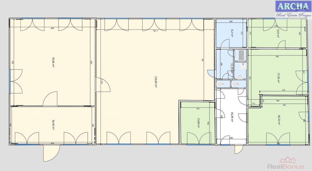
Objekt je dělen na výrobní a skladové prostory (cca 2/3) a kanceláře a zázemí, vč. archivu.
Prostory jsou dnes plně využívány, zkolaudovány, vytápěné a moderní.
1 x vrata do výrobní části a 1 x vstup do administrativní části.
Původní využití - textilní výroba a sklad.
Příjezd veškeré nákladní a balíkové dopravy do 12,5t.
Vstupy v úrovni venkovní komunikace.
Zářivkové osvětlení, vícenásobné WC a koupelna, 4x kancelář - viz plánek.
Nájem možný od 09/2025, dohodou.
Provizi neplatíte
ARCHA realitní kancelář
PRAHA
Telefon: 737 851 059, 702 072 257, 608 135 458
Dat. schránka: vdc4dg
E-mail: archa-rk@seznam.cz
www.instagram.com/nemovitosti_archa
www.facebook.com/nemovitosti.archa
www.twitter.com/archa_life
www.archa-rk.cz
| Cena: |
(za m2 / měsíc) 165,- Kč
(+ služby, energie)
|
|---|
| Číslo podlaží v domě | 1 |
|---|---|
| Druh objektu | cihlová |
| Stav objektu | velmi dobrý |
| Vlastní pozemek | 600 m² |
| Umístění objektu | centrum |
| Vybaveno | Částečně zařízeno |
| Topení | Ústřední - plynové |
| Účel budovy | Jiný |
| Zastavěná plocha | 396 m² |
| Plocha parcely | 600 m² |
| Druh stavby | budova/y, hala/y |
| Poloha objektu | samostatný |
| Druh prostor | Jiné |




