| Číslo zakázky: | R519522 | ![]() Karta nemovitosti |
|---|---|---|
| Typ zakázky: | pronájem |
Pronájem 2kk 58m2 ve stylovém areálu Modřanský Cukrovar na Praze 4
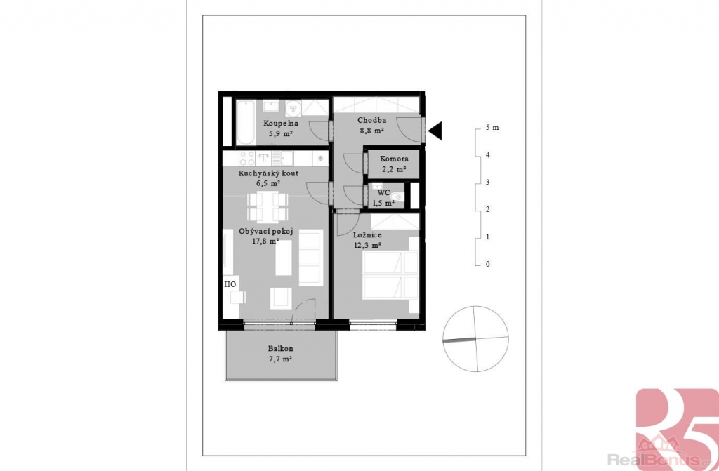
K pronájmu nový byt 2+kk o dispozici 58 m +7,7m2 lodžie + 3m2 sklep.
Byt v novém moderním komplexu Modřanský Cukrovar.
V bytě kvalitní dřevěné podlahy, obývací pokoj s prostornou kuchyní, samostatná ložnice. Velká vstupní chodba s komorou, koupelnou s vanou a oddělenou toaletou.
Vybavení systémem smarthome, vzduchotechnikou i venkovními žaluziemi. Orientace na západ.
Možnost užívání společné střešní terasy či relaxační zóny v přilehlých zahradách.
Dům postaven s důrazem na šetrné a efektivní využití technologií (fotovoltaika, fototermika, systém využití šedé vody) díky které byt vyniká nízkou energetickou náročností (B velmi úsporná).
Lokalita má vynikající dostupnost do centra: 5min tramvajová/autobusová zastávka (15min do centra), potraviny 150m, cyklostezka, školy, školky. Přímo v komplexu je také stanoviště Rekol a nabíječka pro elektromobily.
| Cena: |
(za měsíc) 23 000,- Kč
(+ zálohy na služby a energie 4000,-Kč + elektřina)
|
|---|
| Dispozice bytu | 2+kk |
|---|---|
| Číslo podlaží v domě | 2 |
| Počet podlaží objektu | 5 |
| Celková podlahová plocha | 58 m² |
| Druh objektu | cihlová |
| Stav objektu | novostavba |
| Energetická třída | B - Velmi úsporná |
| Vlastnictví | osobní |
| Druh bytu | v nájemním domě (činžovním) |
| Počet podlaží pod zemí | 2 |
| Vybavení | balkon výtah terasa sklep |
| Umístění objektu | klidná část obce |
| Vybaveno | Částečně zařízeno |
| Topení | Ústřední - dálkové |
| Elektřina | 230 V |
| Užitná plocha | 58 m² |
| Inženýrské sítě | Vodovod Kanalizace Elektřina |
| Druh stavby | budova/y, hala/y |
| Poloha objektu | samostatný |




