| Číslo zakázky: | AK - 171125 Křižíkov | ![]() Karta nemovitosti |
|---|---|---|
| Typ zakázky: | prodej |
Nabízíme k prodeji světlý, kompletně zrekonstruovaný byt 2+kk o velikosti 43 m2, umístěný ve 4. patře cihlového činžovního domu bez výtahu v atraktivní části Prahy 8 ? Karlín, pouze pár kroků od stanice metra B ? Křižíkova.
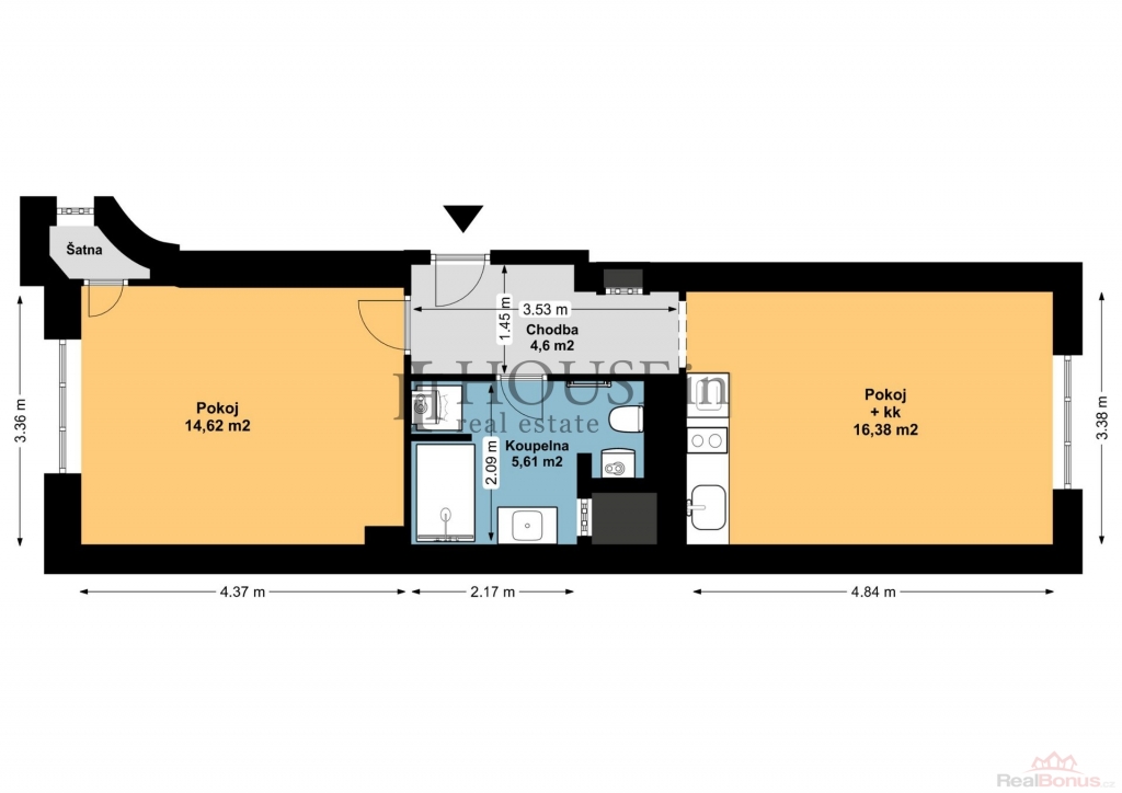
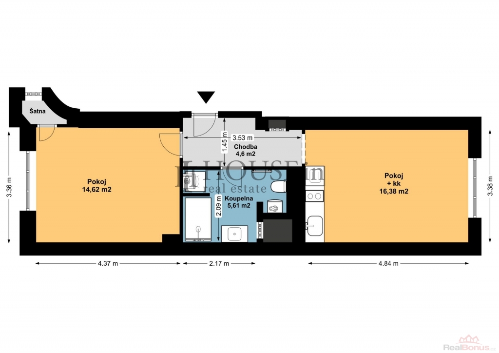
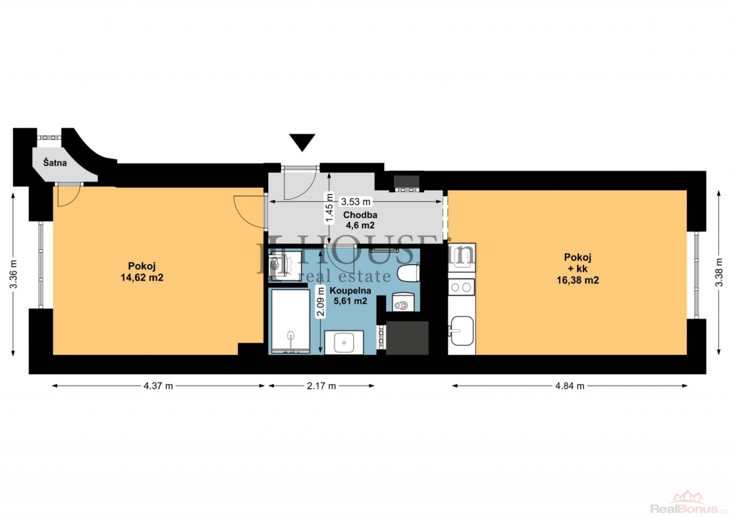
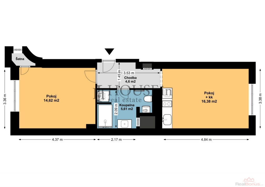
Dispozice bytu zahrnuje předsíň, koupelnu se sprchovým koutem a toaletou, obývací pokoj s kuchyňskou linkou vybavenou spotřebiči a ložnici s komorou. Obývací pokoj je orientovaný na jihovýchod, ložnice na severozápad. Oba pokoje směřují do klidného vnitrobloku. Součástí prodeje je prostorný sklep v 1. PP.
Byt prošel kompletní rekonstrukcí ? stačí se nastěhovat. Ve vnitrobloku je možnost parkování za poplatek cca 400 Kč/měsíc.
Měsíční náklady na provoz bytu činí 2.750 Kč (bez elektřiny a plynu).
Lokalita nabízí vynikající dopravní dostupnost a kompletní občanskou vybavenost: metro, tramvaje, obchody, kavárny, restaurace, služby, školy i sportovní vyžití. V blízkosti se nachází cyklostezka podél Vltavy a park na Vítkově.
Byt je možné financovat hypotečním úvěrem.
Pro více informací nebo sjednání prohlídky kontaktujte makléře.
| Cena: |
(za nemovitost) 9 980 000,- Kč
(včetně provize, včetně právního servisu)
|
|---|
| Dispozice bytu | 2+kk |
|---|---|
| Číslo podlaží v domě | 5 |
| Počet podlaží objektu | 6 |
| Celková podlahová plocha | 46 m² |
| Druh objektu | cihlová |
| Stav objektu | velmi dobrý |
| Energetická třída | F - Velmi nehospodárná |
| Vlastnictví | osobní |
| Plocha sklepu | 3 m² |
| Vybavení | sklep |
| Umístění objektu | centrum |
| Telekomunikace | Internet |
| Topení | Ústřední - elektrické |
| Doprava | MHD |
| Voda | dálkový vodovod |
| Odpad | Městská kanalizace |
| Celková plocha | 46 m² |
| Užitná plocha | 43 m² |
| Inženýrské sítě | Vodovod Kanalizace |
| Charakter okolní zástavby | obchodní a obytná |
| Poloha objektu | řadový |




