| Číslo zakázky: | 25209 | ![]() Karta nemovitosti |
|---|---|---|
| Typ zakázky: | prodej |
Usedlost Březinka u Kokořína představuje místo, kde historie, prostor a příroda tvoří dokonalou rovnováhu.
Dnes zde stojí funkční areál s obytným domem, chlévy a stodolou, který nabízí široké možnosti dalšího využití.
Usedlost se nachází v obci Březinka, v srdci CHKO Kokořínsko, přibližně 20 km od Mělníka.
Klidná poloha uprostřed přírody zaručuje naprosté soukromí, přitom je i pro větší techniku dobře dostupná po asfaltové komunikaci po celý rok.
Areál tvoří soubor obytných a hospodářských budov s celkovou zastavěnou plochou přibližně 1 500 m2 na pozemcích o výměře 9 289 m2.
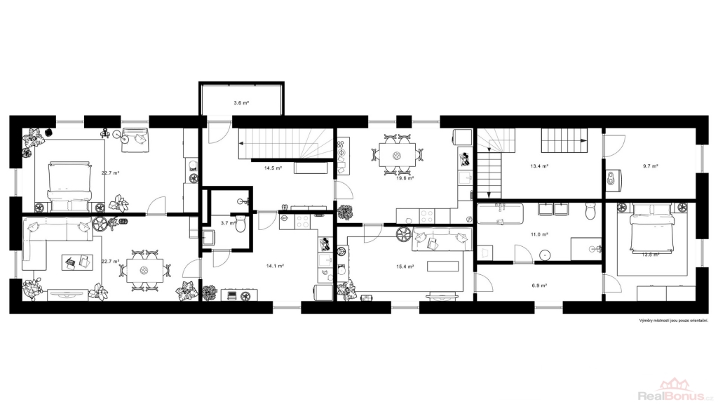
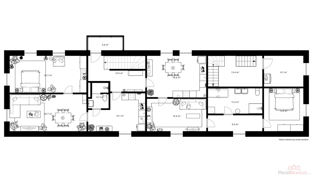
Hlavní stavbou celého areálu je objekt k bydlení č. p. 15 se třemi bytovými jednotkami.
V přízemí se nachází byt typu 2 +1 v původním stavu, vhodný k rekonstrukci.
V patře se nacházejí dvě bytové jednotky typu 2+1 po částečné rekonstrukci. Mají hotové nové rozvody, ale čekají na finální osazení kuchyňské linky a sanitárního vybavení.
V přízemí budovy se dále nacházejí dvě funkční kuchyně, které byly v minulosti využívány k výrobě domácího sýra. V domě je také přístup do suchého, klenutého, pískovcového sklepa, ideálního pro skladování potravin nebo vína.
Teplo zajišťuje kotel na pevná paliva umístěný v samostatné kotelně, v obytné části je kombinovaný bojler pro ohřev vody a ve spodním bytě jsou funkční kamna na dřevo, která dotvářejí atmosféru venkovského domu.
Areál je napojen na elektřinu a veřejný vodovod.
Odpadní vody jsou svedeny do septiku, který je umístěn na pozemku.
Naproti obytné části se nacházejí dvě hospodářské budovy ? menší a větší chlévy, které jsou v dobrém technickém stavu. Větší chlév má přibližně 320 m2, menší okolo 35 m2. Obě stavby mají pevné zdivo, jsou suché a stabilní, a nad nimi se rozkládá rozsáhlý půdní prostor vhodný pro skladování nebo další využití. Na stodolu dále navazuje vysoký otevřený přístřešek o ploše přibližně 122 m2, který nabízí další prostor například pro techniku či materiál.
Součástí areálu je také prostorná stodola, která je rozdělená na dvě části ? první má přibližně 330 m2 a druhá zhruba 130 m2., dílna a samostatná kotelna s kotlem na pevná paliva.
Tyto objekty poskytují dostatek prostoru pro menší chov, skladování, řemeslnou činnost nebo přestavbu na dílny či ateliéry.
Za stodolou se nacházejí také dva polootevřené přístřešky o celkové ploše 209 m2, které prakticky rozšiřují úložné a provozní možnosti areálu ? ideální například pro techniku, dřevo či sezónní materiál.
K areálu je možné získat do dlouhodobého pachtu přibližně 5 hektarů zemědělské půdy v blízkém okolí, což rozšiřuje možnosti například pro chov, pastviny nebo rozvoj farmářské činnosti.
Usedlost Březinka u Kokořína představuje jedinečnou příležitost pro ty, kteří hledají místo s historií, prostorem a klidem.
Areál nabízí ideální podmínky pro spojení bydlení s podnikáním, řemeslnou činností nebo venkovským projektem.
Díky své velikosti, poloze a charakteru má potenciál stát se rodinným sídlem, farmou menšího rozsahu či základem pro agroturistiku, svatební nebo komunitní místo.
| Cena: |
(za nemovitost) 18 720 000,- Kč
(včetně poplatků, včetně provize, včetně právního servisu)
|
|---|
| Počet podlaží objektu | 2 |
|---|---|
| Druh objektu | smíšená |
| Stav objektu | dobrý |
| Vybavení | sklep |
| Umístění objektu | centrum |
| Topení | Lokální - tuhá paliva |
| Doprava | silnice autobus |
| Odpad | Septik |
| Zastavěná plocha | 1 343 m² |
| Plocha parcely | 9 289 m² |
| Ostatní | Parkoviště |
| Užitná plocha | 283 m² |
| Umístění v chráněných lokalitách | ochranné pásmo |
| Poloha objektu | samostatný |
