| Číslo zakázky: | 02004 | ![]() Karta nemovitosti |
|---|---|---|
| Typ zakázky: | prodej |
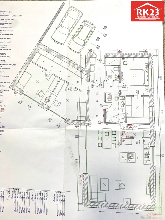
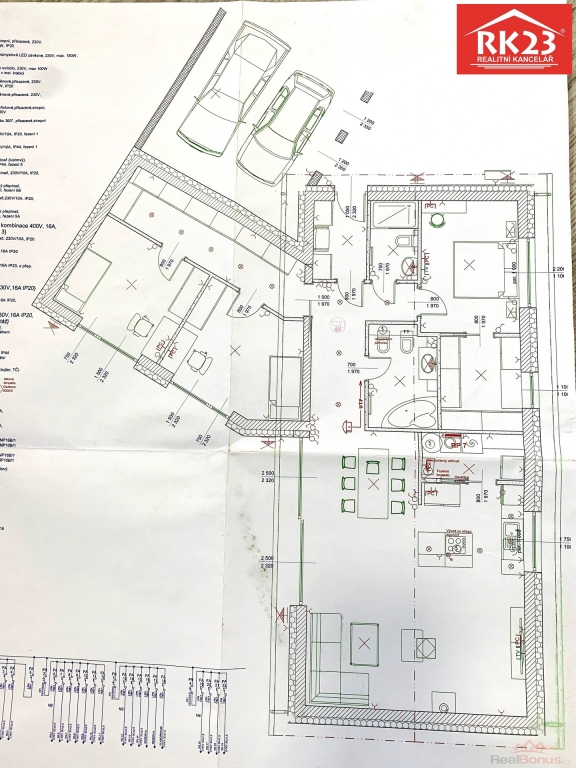
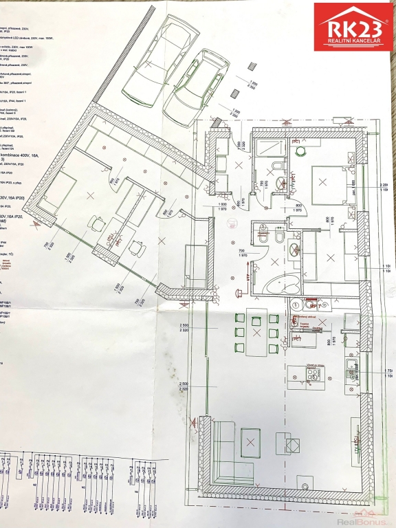
Nabízíme k prodeji výjimečnou novostavbu rodinného domu 4+kk v oblíbené lokalitě v obci Velká Hleďsebe. Tato novostavba s užitnou plochou 177 m2 se nachází na pozemku o velikosti 846 m2. Dům byl postaven v roce 2025. Objekt je jednopodlažní. V domě se nachází obývací pokoj s kuchyňským koutem a jídelnou, ložnice, dva samostatné pokoje, dvě koupelny se sprchou, vanou a toaletou, technická místnost a prostorná chodba. Ze tří pokojů je vstup na prostornou terasu a okrasnou zahradu. Celý pozemek je oplocený, což zajišťuje maximální soukromí. Vjezd na zahradu je možný z ulice přes pojízdnou bránu. Zahrada je zatravněná. Nachází se zde zahradní domek s osvětlením pro uložení zahradního nářadí. Také je zde vyvedená voda na zalévání zahrady. Dům je postaven v elegantním designu s použitím nejnovějších technologií a kvalitních materiálu. Vytápění je podlahové, které je zajištěno tepelným čerpadlem a ohřev vody bojlerem. Dům je napojen na veřejnou kanalizaci a vodovodní řad, je velmi úsporný, s nízkými náklady na provoz. Na pozemku je retenční nádrž na zadržování dešťové vody. Dům disponuje okny z trojskel, venkovními žaluziemi a venkovním osvětlením celého domu. Před domem je kryté parkovací stání pro dvě auta a také nabíjecí zásuvka na elektroauto. V domě je nainstalovaný kamerový systém a zabezpečení. Stavitel nabízí nadstandardní záruku 5 let na celý dům. Novostavba je postavená velmi precizně s důrazem na detail. Je připravená k nastěhování pro komfortní a pohodlný život celé rodiny. Je v dobré dopravní dostupnosti, cca 2 km od Mariánských Lázní. V obci je veškerá občanská vybavenost.
Doporučuji prohlídku této výjimečné nemovitosti !
S financováním samozřejmě poradíme.
Pro více informací kontaktujte makléře.
| Cena: |
(za nemovitost) 12 990 000,- Kč
(včetně provize, včetně právního servisu)
|
|---|
| Druh objektu | cihlová |
|---|---|
| Stav objektu | novostavba |
| Energetická třída | G - Mimořádně nehospodárná |
| Bezbariérový byt | ano |
| Umístění objektu | centrum |
| Ostatní rozvody | Kabelové rozvody |
| Topení | Ústřední - elektrické Jiné |
| Doprava | silnice autobus |
| Voda | dálkový vodovod |
| Odpad | Městská kanalizace |
| Stáří objektu | 1 |
| Rok kolaudace | 2 025 |
| Parkování | garáž |
| Zastavěná plocha | 177 m² |
| Plocha parcely | 846 m² |
| Ostatní | Bezbariérový přístup Garáž Parkoviště |
| Užitná plocha | 177 m² |
| Komunikace | dlážděná |
| Inženýrské sítě | Vodovod Kanalizace |
| Charakter okolní zástavby | obytná |
| Poloha objektu | samostatný |




