| Číslo zakázky: | 971115 | ![]() Karta nemovitosti |
|---|---|---|
| Typ zakázky: | prodej |
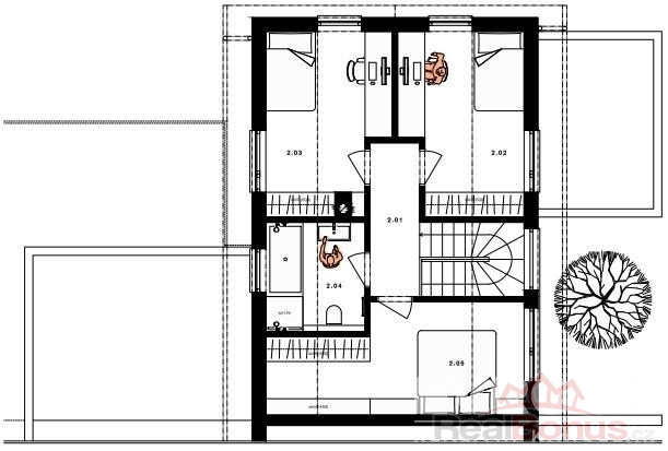
Představujeme vám okouzlující rodinný dům ve vesnici Mirotice, situovaný v krásném Jihočeském kraji, na adrese K Miškovci. Tato novostavba o dispozici 5+kk a celkové ploše 107 m nabízí komfortní bydlení v osobním vlastnictví.
Dům se pyšní dvěma nadzemními podlažími a je postaven na zahradě o rozloze 615 m, která poskytuje dostatek prostoru pro relaxaci, rodinné aktivity či pěstování zahrady.
V blízkosti domu se nachází veškerá občanská vybavenost školy, školky, obchody, restaurace a kavárny. Pro milovníky přírody a aktivní odpočinek je v blízkosti několik turistických tras a cyklostezek.
Pokud hledáte místo, kde budete moci žít v klidné a přátelské lokalitě s výbornou dostupností a zároveň moderně vybaveným a energeticky úsporným domovem, tento dům v Miroticích by mohl být tou pravou volbou pro vás.
Je to jedinečná příležitost vlastnit krásný domov v žádané lokaci, který kombinuje tradiční architekturu s moderními prvky a nabízí pohodlné bydlení pro celou rodinu. Neváhejte nás kontaktovat pro více informací nebo domluvení prohlídky.
Dům bude dokončen v létě 2026.
| Cena: |
(za nemovitost) 7 999 980,- Kč
(možnost odpočtu DPH) (+ provize RK)
|
|---|
| Počet podlaží objektu | 2 |
|---|---|
| Celková podlahová plocha | 107 m² |
| Druh objektu | dřevěná |
| Stav objektu | novostavba |
| Energetická třída | B - Velmi úsporná |
| Vlastnictví | osobní |
| Vlastní pozemek | 615 m² |
| Vybaveno | Nezařízeno |
| Odpad | Městská kanalizace |
| Zastavěná plocha | 68 m² |
| Užitná plocha | 107 m² |
| Počet bytů - celkem | 1 |
| Poloha objektu | řadový |




