| Číslo zakázky: | 907 | ![]() Karta nemovitosti |
|---|---|---|
| Typ zakázky: | prodej |
Exkluzivně nabízíme prodej vícegeneračního rodinného domu v Roudnici nad Labem, Špindlerova třída. Je ideální pro rodinné či vícegenerační bydlení nebo bydlení spojené s podnikáním. Dům je před kompletní rekonstrukcí, můžete si ho tedy upravit přesně dle Vašich představ!
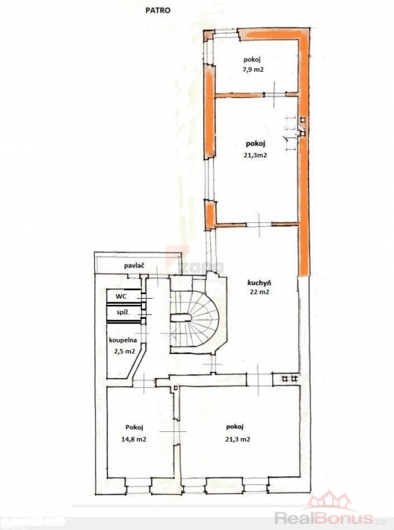
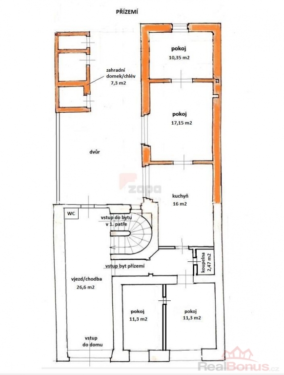
Dispozice:
- 2 samostatné oddělené bytové jednotky 4+kk (přízemí 74,5 m, patro 109 m)
- Dvůr 67 m, zahrada 342 m
- Velký půdní prostor vhodný k vestavbě
- Malý sklep pod schody
- Chodba/vjezd 26 m vhodný pro parkování 1 vozidla
Vybavení:
- Plynové nebo elektrické vytápění
- Městská voda a kanalizace
- Samostatné měření plynu a elektřiny pro každou jednotku
Zahrada
- ve vnitrobloku - prostorná, tichá a slunná
- s ovocnými a okrasnými stromy
Lokalita:
- Klidná lokalita poblíž centra, naproti VOŠ a SOŠ
- 3x základní škola v dochozí vzdálenosti
- Výborná občanská vybavenost
- Rychlé spojení do Prahy: cca 35 min. po D8, 50 min vlakem
- v roce 2031v plánu terminál vysokorychlostní železnice VTR- jízdní doma mezi Roudnicí a Prahou se zkrátí na 19 minut
Průkaz energetické náročnosti se právě zpracovává, uvádíme třídu G.
Dům je ihned volný, prohlídky jsou možné po telefonické dohodě. Uvedená cena je včetně provize, daní a právních služeb. Nemovitost lze financovat hypotékou, s vyřízením Vám rádi pomůžeme.
| Cena: |
(za nemovitost) 6 500 000,- Kč
(včetně provize a daní)
|
|---|
| Číslo podlaží v domě | 1 |
|---|---|
| Počet podlaží objektu | 3 |
| Druh objektu | smíšená |
| Stav objektu | před rekonstrukcí |
| Energetická třída | G - Mimořádně nehospodárná |
| Vlastní pozemek | 543 m² |
| Vybavení | balkon sklep |
| Umístění objektu | centrum |
| Vybaveno | Částečně zařízeno |
| Topení | Ústřední - plynové |
| Zastavěná plocha | 201 m² |
| Plocha parcely | 543 m² |
| Jiné plochy | 7 m² |
| Plocha zahrady | 342 m² |
| Druh stavby | rodinný dům, rekreační chalupa, rekreační pozemek |
| Poloha objektu | řadový |




