| Číslo zakázky: | 653744 | ![]() Karta nemovitosti |
|---|---|---|
| Typ zakázky: | pronájem |
+ poplatekty za energie je 35Kč/m2 bez DPH. Parkovací stání je za 2.500Kč bez DPH/měsíčně. , Dumrealit.cz Vám zprostředkuje pronájem komerčního - kancelářského klimatizovaného objektu o podlahové ploše od 25 m až 2.300 m s možností parkovacího stání v širším centru města České Budějovice, ul. Jeronýmova 1485/19.
K pronájmu je celý objekt, patro nebo samostatné kanceláře od 25 m.
Na každém podlaží se nachází kuchyňský kout a sociální zázemí.
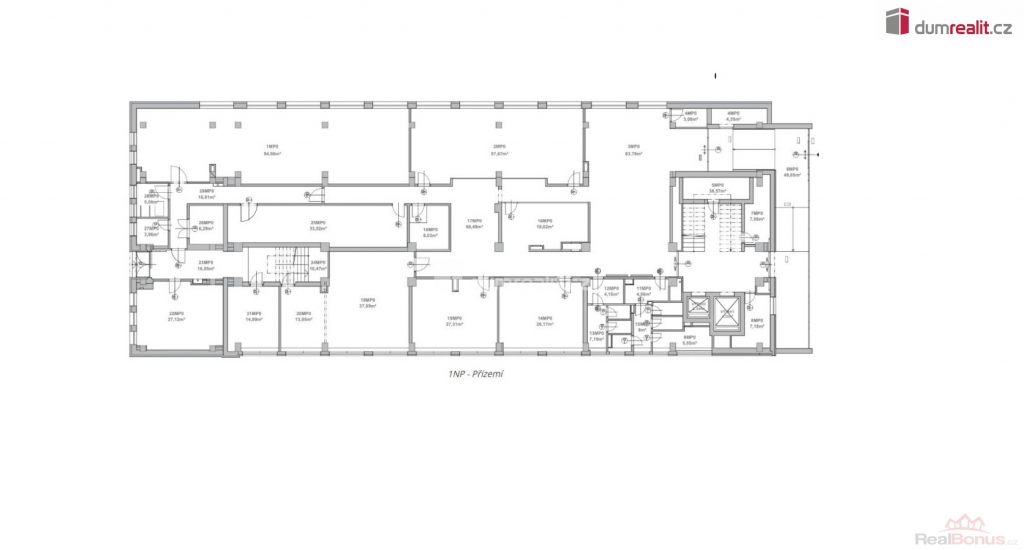
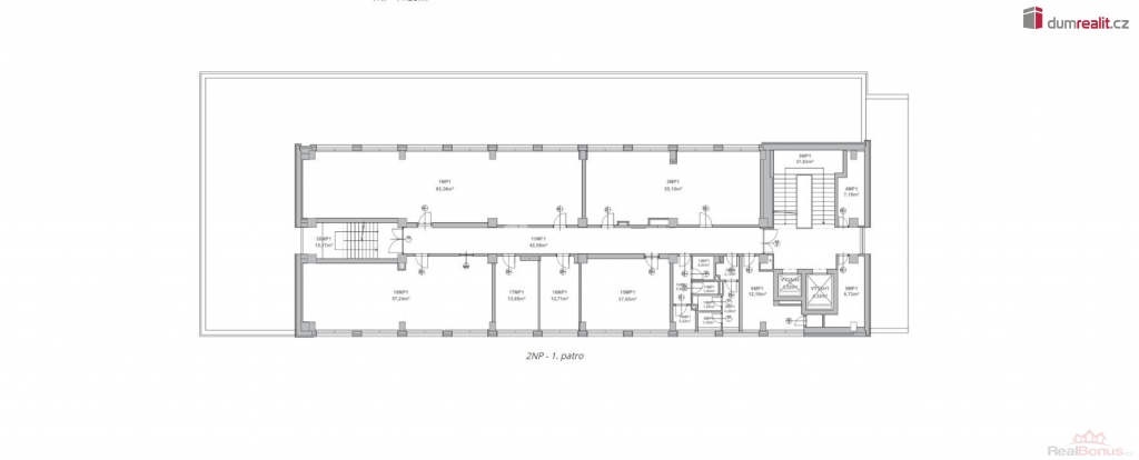
Podrobné rozkreslení jednotlivých podlaží naleznete na půdorysech mezi fotografiemi.
Osmipodlažní objekt s předokenními žaluziemi, s výhledem na historické centrum města disponuje dvěma výtahy, recepcí a zabezpečovacím přístupovým čipovým systémem. Kancelářská budova má vytápění řešené dálkově, je připojena na veřejný vodovod a městskou kanalizaci.
Paušální poplatky za energie činí 35,-Kč za m měsíčně (elektřina, vodné - stočné, vytápění). Parkování na soukromém zabezpečeném parkovišti je za 2.500,-Kč bez DPH měsíčně za automobil (52 míst).
Doporučuji prohlídku, kanceláře jsou připraveny k okamžitému užívání.
Hledáme dlouhodobé a solidní nájemníky.
Více informací Vám poskytne realitní makléřka Ivana Szepová z realitní kanceláře A TEMPO fungující pod ochrannou známkou dumrealit.cz. Ev. číslo: 653130. Energetický štítek: B
| Cena: |
(za m2 / měsíc) 240,- Kč
(+ poplatekty za energie je 35Kč/m2 bez DPH. Parkovací stání je za 2.500Kč bez DPH/měsíčně.)
|
|---|
| Počet podlaží objektu | 7 |
|---|---|
| Druh objektu | cihlová |
| Stav objektu | velmi dobrý |
| Energetická třída | B - Velmi úsporná |
| Vlastní pozemek | 2 635 m² |
| Umístění objektu | centrum |
| Vybaveno | Nezařízeno |
| Počet míst k parkování | 52 |
| Zastavěná plocha | 802 m² |
| Užitná plocha | 25 m² |
| Druh prostor | Kanceláře |
