| Číslo zakázky: | 29908 | ![]() Karta nemovitosti |
|---|---|---|
| Typ zakázky: | prodej |
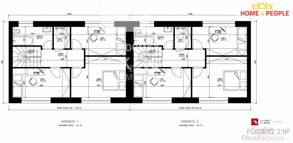
Cena včetně výstavby RD, IS, příjezdové komunikace a DPH., Zprostředkujeme Vám exkluzivní prodej zděného řadového rodinného domu typu ROW120+G o velikosti 5+kk 120 m v Uherském Brodě části Těšov. Patrový dům ROW120 je typ rodinného domu vhodný do rovinatého, ale i mírně svažitého terénu. Součásti uvedené ceny, která již zahrnuje DPH je dům na klíč, inženýrské sítě včetně připojeného místa EDG (EON), mimo plynu, příjezdová komunikace, veřejné osvětlení, pozemek a veškeré projektové práce a stavební povolení. Přípojná místa budou vyvedena na pozemku. Pozemek (číslo.7) o rozloze 636 m je na klidném místě obce. Šíře pozemku je 10,3 m. Navíc k nabízenému pozemku je i podíl na dalším pozemku za zahradou. Dle územního plánu je pozemek veden a schválen pro rodinné bydlení. Jedná se o zděnou stavbu a nabízí se ve variantě na klíč. Topení je řešeno nízko nákladovým podlahovým topením, rekuperací a fotovoltaickými panely. Uvedená cena domu obsahuje základovou desku, DPH a stavba bude provedena na klíč a předána po kolaudaci k okamžitému užívání. Parametry domu: užitná plocha 120 m zastavěná plocha domu 72 m. V přízemí domu se nachází hlavní obytný prostor s odděleným kuchyňským koutem, sklad, úložný prostor pod schodištěm, technickou místnost a 2x WC s umyvadlem dvě samostatné zařízené koupelny, pracovna a praktická místnost třeba pro zahradní nábytek. V patře se nachází 3 pokoje, koupelna s WC a šatna. V blízkosti je veškerá občanská vybavenost. Možnost vybudovat na úkor pracovny garáž. Dotaci na fotovoltaické panely vyřídíme. Projekt zahrnuje výstavbu 10 domů. (Součástí ceny není kuchyňská linka a světla dokážeme za zvýhodněných podmínek zajistit přes naše dodavatele). Financování zajišťujeme a můžete využití našich služeb, při prodeji Vaší nemovitosti. Doporučuji! Ev. číslo: 29908. Energetický štítek: A (39 kWh/m2/rok).
| Cena: |
(za nemovitost) 8 689 500,- Kč
(Cena včetně výstavby RD, IS, příjezdové komunikace a DPH.)
|
|---|
| Počet podlaží objektu | 2 |
|---|---|
| Celková podlahová plocha | 120 m² |
| Druh objektu | cihlová |
| Stav objektu | ve výstavbě (hrubá stavba) |
| Energetická třída | A - Mimořádně úsporná |
| Vlastní pozemek | 636 m² |
| Umístění objektu | klidná část obce |
| Počet míst k parkování | 2 |
| Zastavěná plocha | 72 m² |
| Užitná plocha | 120 m² |
| Poloha objektu | řadový |




